Walking distance to Slough High Street and Elizabeth Line station.
Three double bedrooms across three floors
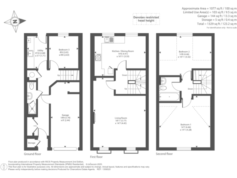
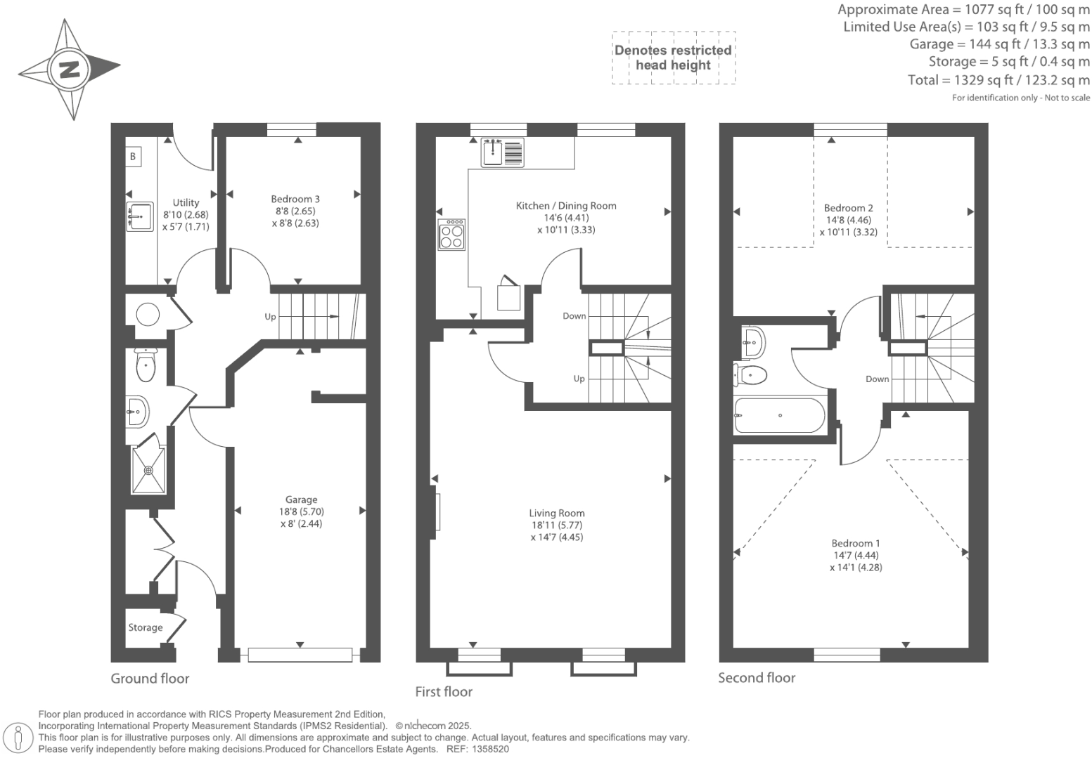
This three-storey terraced townhouse offers generous living space across three floors, with three double bedrooms and a flexible ground-floor reception that works well as a guest room or home office. At around 1,329 sq ft the layout includes a kitchen-diner, separate living room, utility room, and two bathrooms — providing comfortable space for families or sharers.
Practical benefits include a private garage with off-street parking, gas central heating, recent double glazing and excellent mobile and broadband connectivity. The property is freehold, built c.2003–2006, and is presented in good condition, reducing immediate refurbishment needs.
Location is a key asset: it’s about a 0.7-mile walk to Slough High Street and Slough Station (Elizabeth Line), with direct links into central London and fast road access via the M4/M25. With Slough’s ongoing regeneration and strong local rental demand, the house presents clear investment potential as well as family appeal.
Notable considerations: the plot is small and outdoor space is limited. The wider area is classified as deprived and described as young ethnic terraces and flats, which may affect long-term resale expectations for some buyers. Council tax is moderate; there is no flooding risk and local crime levels are low.
3 bedroom semi-detached house for sale in 10 The Grove, Slough, SL1 — £450,000 • 3 bed • 2 bath • 1238 ft²
3 bedroom terraced house for sale in Myrtle Crescent, Slough, SL2 — £485,000 • 3 bed • 1 bath • 713 ft²
3 bedroom town house for sale in Stoke Gardens, Slough, Berkshire, SL1 — £625,000 • 3 bed • 2 bath • 1129 ft²
3 bedroom terraced house for sale in Bramber Court, Slough, SL1 — £435,000 • 3 bed • 1 bath • 768 ft²
3 bedroom end of terrace house for sale in Penn Road, Slough, SL2 — £460,000 • 3 bed • 2 bath • 1137 ft²
3 bedroom end of terrace house for sale in Colonial Road, Slough, SL1 — £425,000 • 3 bed • 2 bath • 1066 ft²


























































































