Dramatic vaulted barn with planning for a 4-bed country home and garden.
Approved planning permission for residential change of use (UTT/24/1191/FUL)
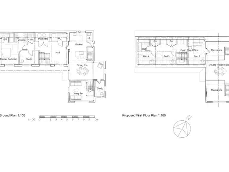
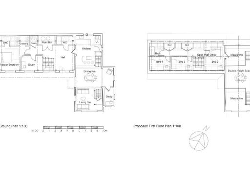
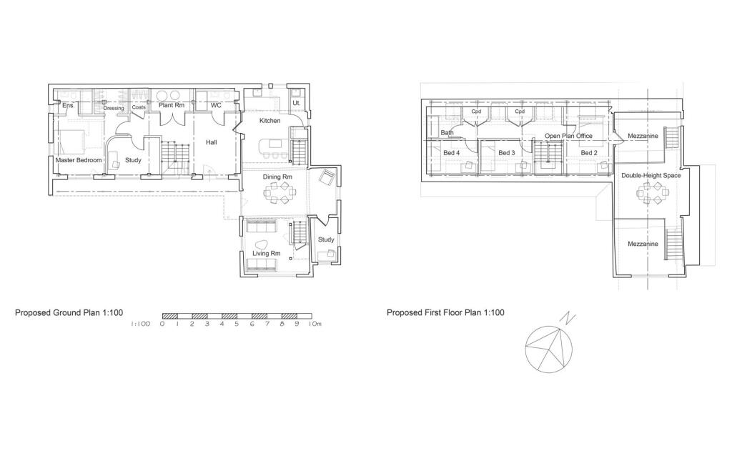
Set in a tucked-away hamlet near Thaxted, Hardings Barn is an unlisted detached barn with approved planning (Uttlesford UTT/24/1191/FUL) to convert from Class E commercial to a 4-bedroom residential dwelling of approximately 2,500 sqft. The building’s dramatic vaulted ceiling, exposed timbers and generous floor area create a memorable main living space with strong potential for a contemporary country home. The site offers a southerly garden, off-street parking for several vehicles and EV charging provision.
The proposed layout suits family life: ground-floor open plan living with two studies and a master suite, plus three first-floor bedrooms and family bathroom. Modern environmental features are already specified — air source heat pump and underfloor heating — reducing the need for major mechanical upgrades once fitted. Broadband is fast and mobile signal excellent, which supports home working and connectivity from this semi-rural setting.
Buyers should note the property remains in Class E commercial use, so the new residential layout will require completion of the approved conversion works and compliance with any planning conditions. Conversion costs, fitting-out and potential landscaping works should be factored into budgets. The current EPC is D (97), so further efficiency improvements may be needed to reach higher ratings.
This barn will most appeal to buyers wanting a character home in the countryside with substantial internal volume and planning in place — families seeking spacious rooms and studies, or purchasers wanting a sympathetic conversion project with much of the regulatory groundwork already completed. The location is peaceful and private but sits a short distance from Thaxted’s services, balancing seclusion with local convenience.
Office for sale in Hardings Barn, Bardfield End Green, Thaxted, Dunmow, Essex, CM6 — £625,000 • 1 bed • 1 bath • 2489 ft²
3 bedroom bungalow for sale in Bolford Street, Thaxted, Dunmow, Essex, CM6 — £900,000 • 3 bed • 3 bath • 2285 ft²
5 bedroom detached house for sale in Monk Street, Thaxted, Dunmow, Essex, CM6 — £895,000 • 5 bed • 3 bath • 4000 ft²
3 bedroom barn conversion for sale in Finchingfield Road, Hempstead, Saffron Walden, CB10 — £785,000 • 3 bed • 2 bath • 1725 ft²
3 bedroom barn conversion for sale in Thaxted Road, Wimbish, Saffron Walden, Essex, CB10 — £850,000 • 3 bed • 3 bath • 2320 ft²
4 bedroom detached house for sale in Cherry Street, Duton Hill, Dunmow, Essex, CM6 — £800,000 • 4 bed • 1 bath • 3700 ft²


























































































































































