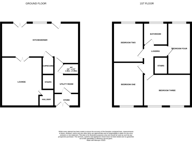
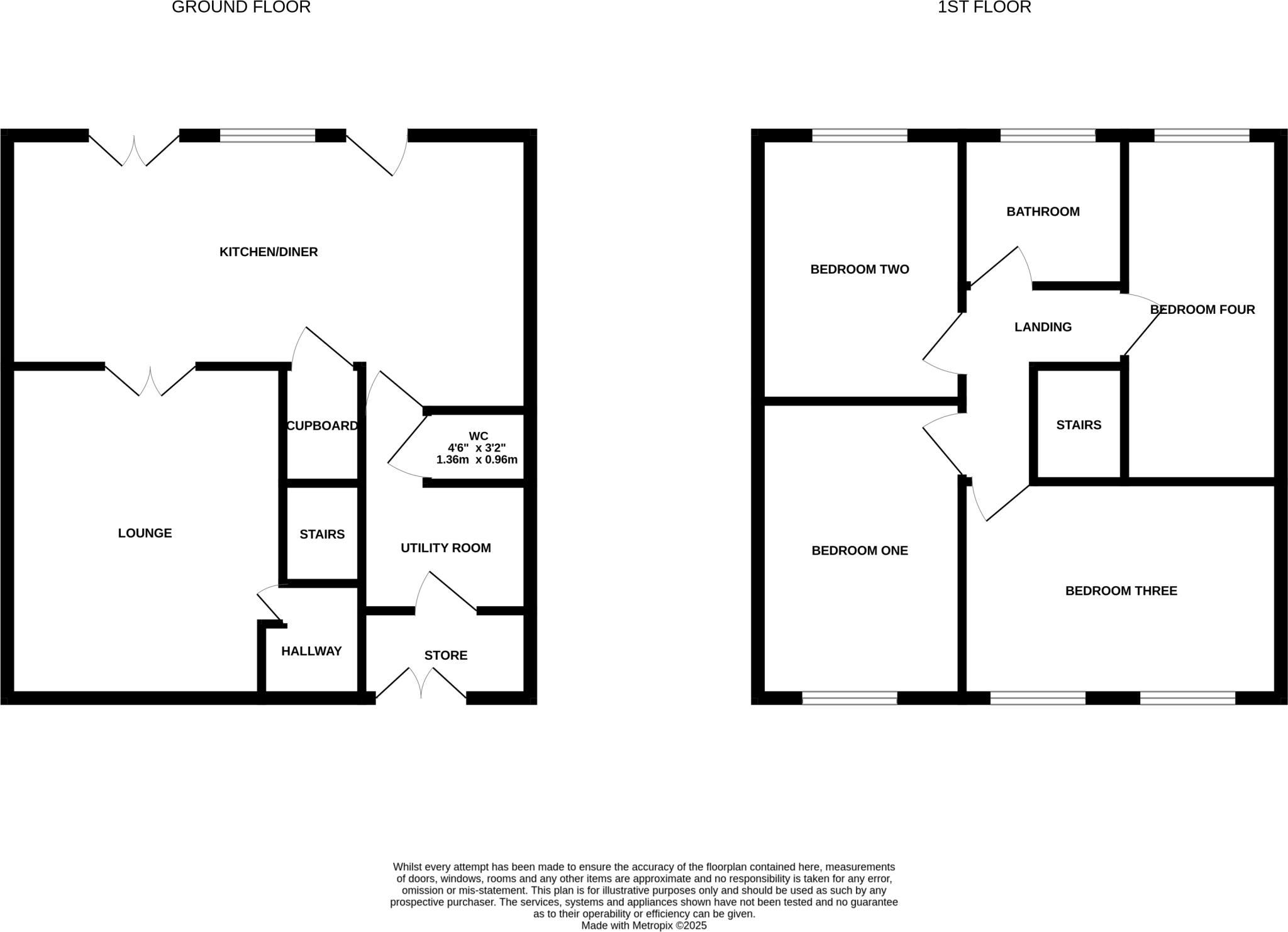
**Standout Features:**
- Four spacious bedrooms
- Private driveway and garage
- Utility room for added convenience
- Unique garden with a bar and raised decking
- Close proximity to the M1 for commuters
- Low crime rate and affordable council tax
**Summary:**
Discover your family haven in this inviting four-bedroom semi-detached home, ideally priced at £260,000. Nestled in the serene S61 2BS postcode, this property offers an abundance of living space with a modern open-plan kitchen and dining area, ideal for gatherings. The bright lounge flows into the utility room and a convenient downstairs WC, while the upstairs features four generously sized bedrooms and a family bathroom.
Step outside to your very own garden oasis, complete with a bar and raised decking area—perfect for entertaining or relaxing after a long day. With a private driveway leading to the garage, parking will never be an issue. Although the overall size is compact at 876 sq. ft., the clever layout and well-utilized rooms make for comfortable living. Enjoy excellent mobile signals and fast broadband in this affluent area, making it a perfect choice for families and professionals alike. Don’t miss this unique opportunity to make this charming property your forever home!
3 bedroom semi-detached house for sale in Brunswick Drive, Sunnyside, Rotherham, South Yorkshire, S66 — £260,000 • 3 bed • 2 bath • 1300 ft²
4 bedroom semi-detached house for sale in Hollow Gate, Chapeltown, Sheffield, S35 — £350,000 • 4 bed • 3 bath • 1443 ft²
4 bedroom semi-detached house for sale in Gallow Tree Road, Rotherham, S65 — £260,000 • 4 bed • 1 bath • 1463 ft²
4 bedroom semi-detached house for sale in Ingleborough Croft, Chapeltown, S35 — £300,000 • 4 bed • 1 bath • 1070 ft²
4 bedroom detached house for sale in Abingdon Gardens, Greasbrough, Rotherham, S61 4RF, S61 — £270,000 • 4 bed • 2 bath • 1219 ft²
4 bedroom semi-detached house for sale in Tingle Bridge Lane, Hemingfield, S73 — £280,000 • 4 bed • 1 bath • 1280 ft²


































































































