Chain-free, updated bungalow with planning permission to extend and easy commuter links..
Two double bedrooms with a modern family bathroom
Recently refitted kitchen; contemporary fixtures throughout
New combi boiler and recent full rewiring
Block-paved driveway plus single garage for secure parking
Low-maintenance, newly landscaped rear garden with shed
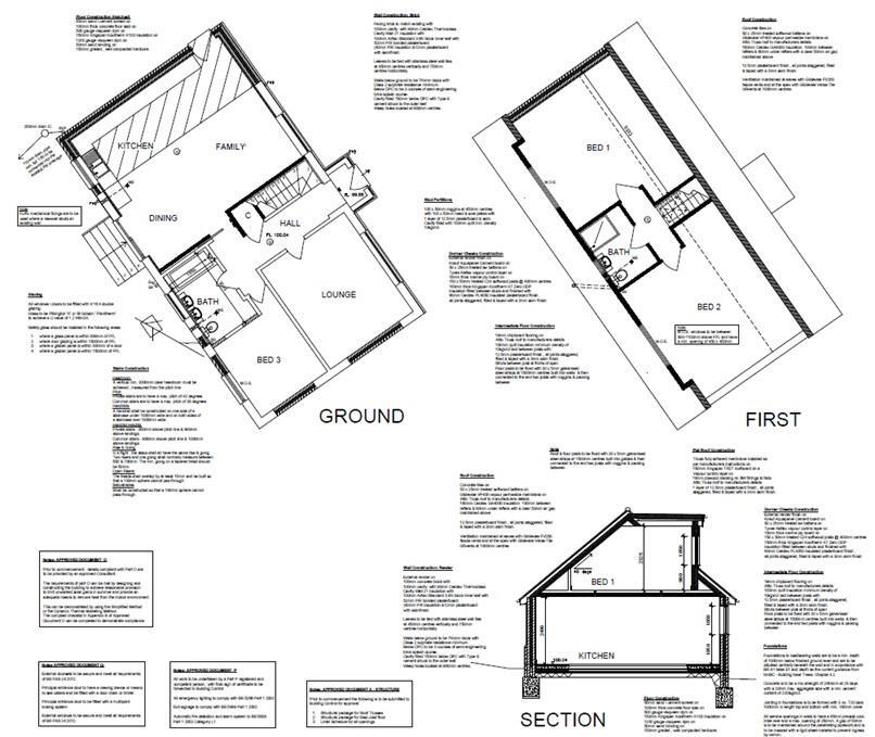
Full planning permission granted to extend (Ref: R24/0907)
Average-sized mid‑20th century bungalow; compact internal space
Single bathroom only; extension will require time and build costs
A well-presented two-bedroom detached bungalow on Everest Road that suits buyers seeking comfortable single-storey living with minimal upkeep. The property has been updated with a refitted kitchen, modern family bathroom, a new combi boiler and recent rewiring — practical improvements that reduce immediate maintenance work.
Outside, the block-paved driveway and single garage provide convenient parking, while the low-maintenance, newly landscaped rear garden offers privacy and ease of use. The location is convenient for Rugby town centre, local shops and good commuter links, making day-to-day life straightforward for retirees, downsizers or buyers wanting an easy-care base.
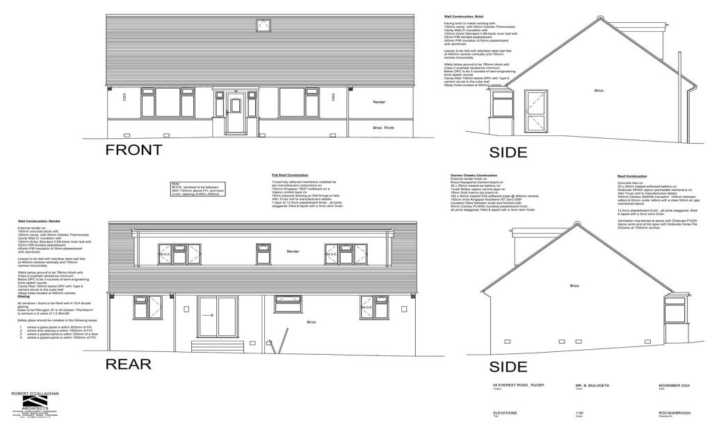
Significant value lies in the full planning permission (R24/0907) to extend: the approved scheme creates an open-plan ground-floor kitchen/dining/family area plus two first-floor bedrooms and a bathroom, retaining a ground-floor bedroom. That permission provides clear scope to increase living space and future resale value, but any build will require time and budget to complete.
Buyers should note the bungalow is an average-sized mid‑20th century property (c.1950s–1960s) with only one bathroom and standard ceiling heights; internal space is compact compared with larger homes. Although much has been renewed, fitted appliances and services have not been independently tested and any extension will involve planning-to-build costs. The sale is chain free, which helps speed completion.
2 bedroom bungalow for sale in Ravenglass, Brownsover, Rugby, CV21 — £220,000 • 2 bed • 1 bath • 516 ft²
4 bedroom detached bungalow for sale in Longrood Road, Rugby, Warwickshire, CV22 — £525,000 • 4 bed • 1 bath • 1002 ft²
3 bedroom detached bungalow for sale in Wordsworth Road, Rugby, CV22 — £425,000 • 3 bed • 1 bath • 994 ft²
2 bedroom semi-detached bungalow for sale in Boswell Road, Shakespeare, Rugby, CV22 — £250,000 • 2 bed • 1 bath • 619 ft²
2 bedroom detached bungalow for sale in Hoskyn Close, Rugby, CV21 — £295,000 • 2 bed • 1 bath • 905 ft²
3 bedroom detached bungalow for sale in Ambleside, Rugby, CV21 — £300,000 • 3 bed • 1 bath • 738 ft²














































































