Spacious penthouse with secure parking and strong rental potential in central Peterborough..
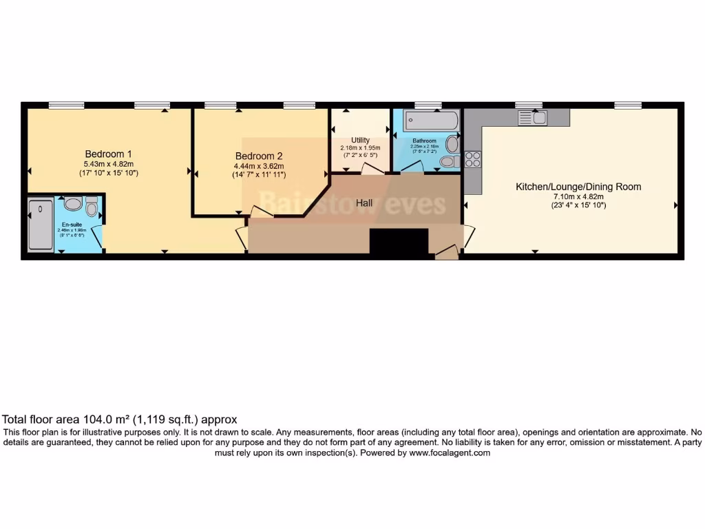
Luxury penthouse with large open-plan living and dining space
Two double bedrooms; modern en-suite to main bedroom
Secure undercroft parking for two with lift access to apartment
Long lease: 190 years remaining (from 2015)
Estimated rental income c. £1,200 pcm; no onward chain
Service charge £3,055.25 pa; ground rent £250 pa (review 2027)
Located in city centre — very high local crime and very deprived area
Utility/storage room and underfloor heating; occasional management costs possible
This luxury penthouse in central Peterborough offers spacious, move-in-ready accommodation and clear rental potential. The large open-plan living/kitchen/dining area, two double bedrooms and a modern en-suite create an attractive layout for tenants or owner-occupiers seeking easy city living. The property is offered with no onward chain and includes secure undercroft parking accessed directly by lift.
Practical benefits include a useful utility/storage room, underfloor heating from a gas boiler, and lift access from the parking area. The long lease (190 years remaining) and a stated potential rental income of approximately £1,200 pcm make this a straightforward buy-to-let opportunity. The service charge is £3,055.25 pa and ground rent £250 pa (next review due 2027).
Buyers should note important local and running-cost considerations: the immediate area scores as very deprived and local crime levels are very high. The service charge is moderate-high for a flat of this size and there is a small ground rent with an upcoming review. These factors may influence rental yields or resale values and are worth factoring into affordability and investment calculations.
Overall, this is a well-presented, generously sized penthouse in a highly central location. It will suit investors seeking a city-centre let-ready apartment or buyers who prioritise convenience, secure parking and lift access over suburban quiet and lower neighbourhood risk.
2 bedroom apartment for sale in Broadway, Peterborough, PE1 — £270,000 • 2 bed • 2 bath • 946 ft²
2 bedroom penthouse for sale in Bayard Plaza, Broadway, Peterborough, PE1 — £260,000 • 2 bed • 1 bath
2 bedroom apartment for sale in Broadway, Peterborough, PE1 — £275,000 • 2 bed • 2 bath • 752 ft²
2 bedroom flat for sale in North Street, Peterborough, PE1 — £139,995 • 2 bed • 2 bath • 689 ft²
2 bedroom flat for sale in Lincoln Road, Peterborough, PE1 — £170,000 • 2 bed • 2 bath • 840 ft²
2 bedroom penthouse for sale in Bayard Plaza, Peterborough, PE1 — £270,000 • 2 bed • 2 bath • 891 ft²














































































