Large garden, garage and studio ideal for family renovation project.
- Detached 1920s three-bed bungalow on large secluded plot
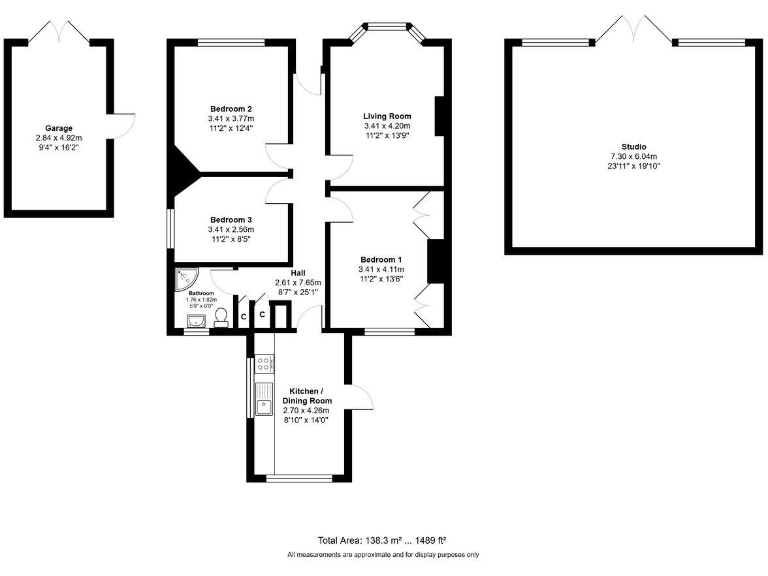
- Detached double garage plus large studio in rear garden
- Mains gas central heating and connected to mains drains
- Single shower room only; one bathroom for three bedrooms
- Requires comprehensive modernisation and updating throughout
- Quiet no-through road, short walk to village common
- Fast broadband; average mobile signal
- Freehold, no upper chain
Set back in a quiet no-through lane of Chipperfield Village, this detached 1920s bungalow sits on a large, secluded plot offering immediate privacy and established gardens. The single-storey layout includes a generous sitting room, entrance hall, kitchen/breakfast room and three bedrooms — practical for families seeking ground-floor living in a peaceful, semi-rural location.
Outside, a detached double garage and a substantial studio at the rear of the garden provide versatile space for storage, hobbies or a home office. Mains gas central heating and mains drains are already connected, and fast broadband supports home working. Nearby village amenities and well-regarded primary and secondary schools add to the appeal for local family life.
The property requires comprehensive modernisation throughout; the interior and services will need updating to contemporary standards. There is a single shower room only, and refurbishment will be needed to fully realise the home’s potential. Those seeking a finished move-in home should note the renovation commitment required.
For buyers looking to create a bespoke, single-storey home in a very affluent, quiet setting, this bungalow offers a rare plot size and scope to extend or reconfigure (subject to planning). The absence of an upper chain and the hamlet-like location make it particularly suited to buyers prioritising tranquillity and long-term value through improvement.
4 bedroom chalet for sale in Scatterdells Lane, Chipperfield, WD4 — £1,200,000 • 4 bed • 3 bath • 2411 ft²
3 bedroom detached bungalow for sale in Little Windmill Hill, Chipperfield, WD4 — £1,250,000 • 3 bed • 2 bath • 2073 ft²
3 bedroom bungalow for sale in New Road, Chipperfield, Kings Langley, Hertfordshire, WD4 — £750,000 • 3 bed • 1 bath • 1175 ft²
3 bedroom bungalow for sale in Little Windmill Hill, Chipperfield, Kings Langley, Hertfordshire, WD4 — £875,000 • 3 bed • 2 bath • 1355 ft²
3 bedroom detached bungalow for sale in Five Acres, Kings Langley, WD4 — £750,000 • 3 bed • 1 bath • 1105 ft²
3 bedroom detached bungalow for sale in Little Hill, Heronsgate, Chorleywood, WD3 — £795,000 • 3 bed • 1 bath • 981 ft²














































































