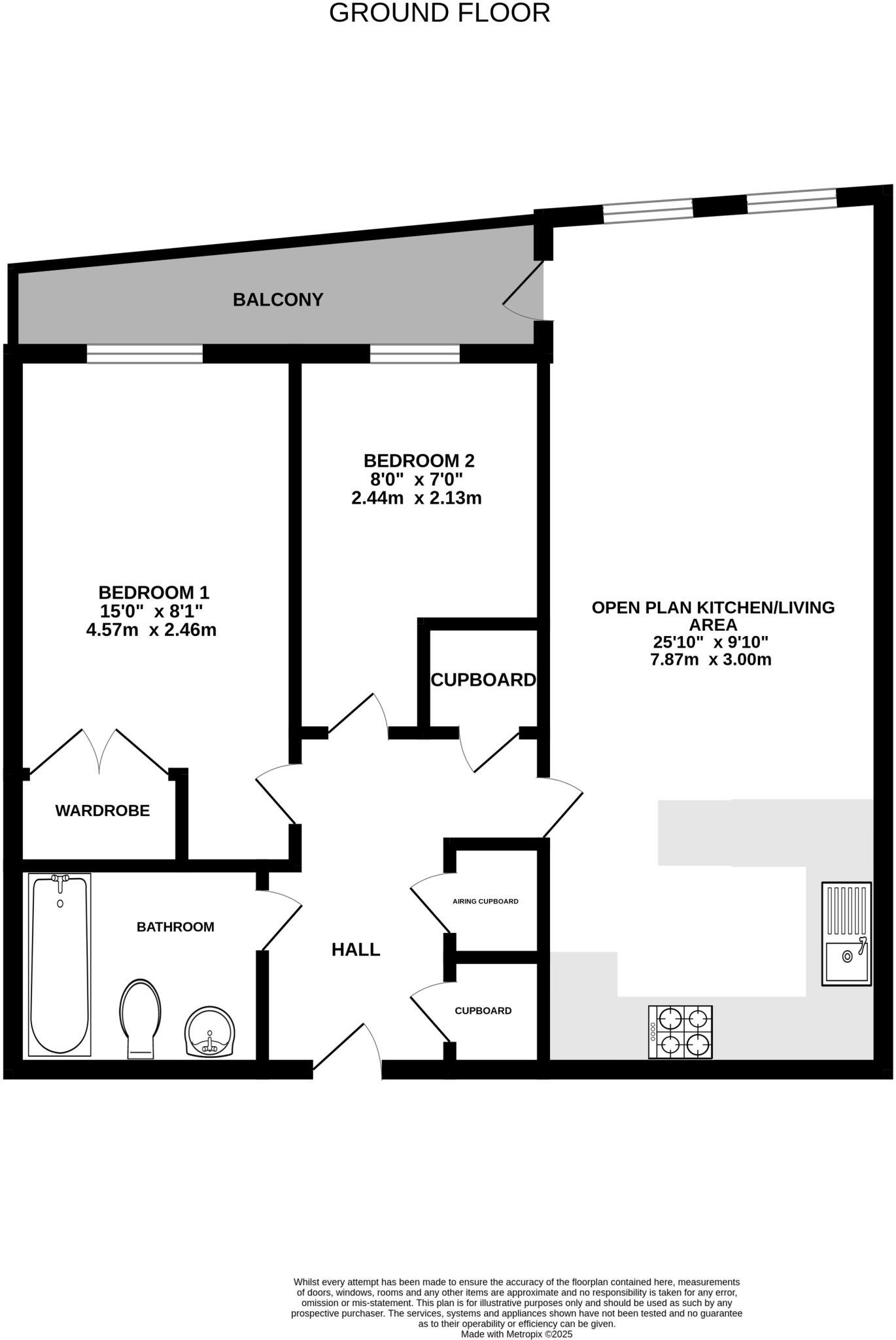
**Standout Features:**
- Two Bedrooms
- First Floor Apartment
- Private Balcony
- No Chain, ideal for quick move-in
- Ample Communal Parking
- Security Entry System
- Modern Gas Central Heating
- EPC Rating: B (82)
**Summary:**
Discover the potential of this charming first-floor apartment, perfect for first-time buyers or savvy investors. With two bedrooms and a modern open-plan lounge integrated with a kitchenette, this cozy residence emphasizes comfortable living. Step outside to enjoy your private balcony, an inviting spot for relaxation or entertaining. The property boasts ample communal parking and a secure entry system, ensuring convenience and peace of mind.
Set against a backdrop of family-friendly amenities—including nearby schools rated 'Outstanding'—this apartment promises a vibrant community atmosphere. Although the property is low-maintenance, potential buyers should note the modest size, which may be better suited to small families or professionals seeking an accessible entry point into home ownership. With no onward chain and affordable service charges, seize the opportunity to make this delightful apartment your own in a popular and connected neighborhood!
2 bedroom flat for sale in Sinclair Drive, Basingstoke, Hampshire, RG21 — £210,000 • 2 bed • 2 bath • 625 ft²
2 bedroom apartment for sale in South View, RG21 — £195,000 • 2 bed • 1 bath • 632 ft²
1 bedroom flat for sale in Winterthur Way, Basingstoke, Hampshire, RG21 — £165,000 • 1 bed • 1 bath • 565 ft²
2 bedroom flat for sale in Oxford Way, Basingstoke, Hampshire, RG24 — £221,995 • 2 bed • 2 bath • 538 ft²
2 bedroom flat for sale in Winterthur Way, Basingstoke, Hampshire, RG21 — £175,000 • 2 bed • 2 bath • 587 ft²
2 bedroom apartment for sale in Winterthur Way, Basingstoke, Hampshire, RG21 — £165,000 • 2 bed • 2 bath • 816 ft²






























































