EH15 2NA - 4 bedroom terraced house for sale in 5 Queen's Bay Cre…

View on Property Piper

4 bedroom terraced house for sale in 5 Queen's Bay Crescent, Brunstane, Edinburgh, EH15 2NA, EH15

Summary - 5, QUEEN'S BAY CRESCENT, EDINBURGH EH15 2NA

4 bed 2 bath Terraced

Spacious period townhouse with sea views and smart heating—ideal for growing families.
Victorian sandstone mid-terrace with high ceilings and bay windows|Four double bedrooms across three storeys plus attic accommodation|Rear bedrooms enjoy sea views over the Firth of Forth|Well-equipped kitchen and large utility with garden access|Gas central heating with Hive smart thermostat control|Fast broadband and full 5G mobile coverage available|Unrestricted on-street parking; no private driveway|Modest external space; limited rear garden, area classed very deprived
This Victorian sandstone mid-terrace offers generous, multi-level family living with period character and modern conveniences. High ceilings, bay windows and spacious rooms give a strong sense of scale, while south-facing and rear bedrooms capture attractive sea views over the Firth of Forth.

The ground-floor kitchen and large utility are well-equipped (Bosch double oven, gas hob, integrated white goods) with direct access to a walled rear garden. Heating is gas central heating controlled via a Hive smart thermostat, and broadband and mobile coverage are fast and reliable—good for home working or streaming.

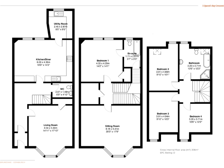
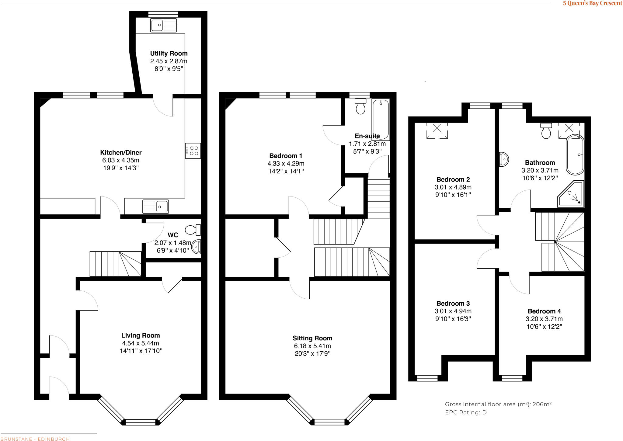
Practical layout: four double bedrooms across three floors, an en-suite, Jack-and-Jill arrangement, a large family bathroom and a ground-floor WC. Unrestricted on-street parking and freehold tenure add convenience and long-term security.

Notable drawbacks: outside space is modest—small front garden and a limited rear yard—and the property sits in an area classed as very deprived. While finished to a traditional style with modern fittings, there remains scope for personalisation and modernisation in parts to suit contemporary tastes.

Property Details

Brochure Descriptions

Image Descriptions

Floorplan Description

Rooms

Textual Property Features

Target Audience

AI Tags

Detected Visual Features

Nearest Bars And Restaurants

,,,,}

Nearest General Shops

,,}

Nearest Grocery shops

,,}

Nearest Supermarkets

,,}

Nearest Religious buildings

,,}

Nearest Medical buildings

,,,}

Nearest Airports

}

Nearest Leisure Facilities

,,,,}

Nearest Tourist attractions

,,}

Nearest Train stations

,,,,}

Nearest Bus stations and stops

,,,,}

Nearest Hotels

,,}

Tags

Local Market Stats

AirBnB Data

Similar Properties

Meta

High Res Images

Compatible Images

Low res Images

Thumbnails

Raw Images

High Res Floorplan Images

Compatible Floorplan Images

Low res Floorplan Images

FloorplanImages Thumbnail

Raw Floorplan Images