Chain-free flat with upgrade potential near transport and good broadband.
Two double bedrooms and one bathroom, 714 sq ft
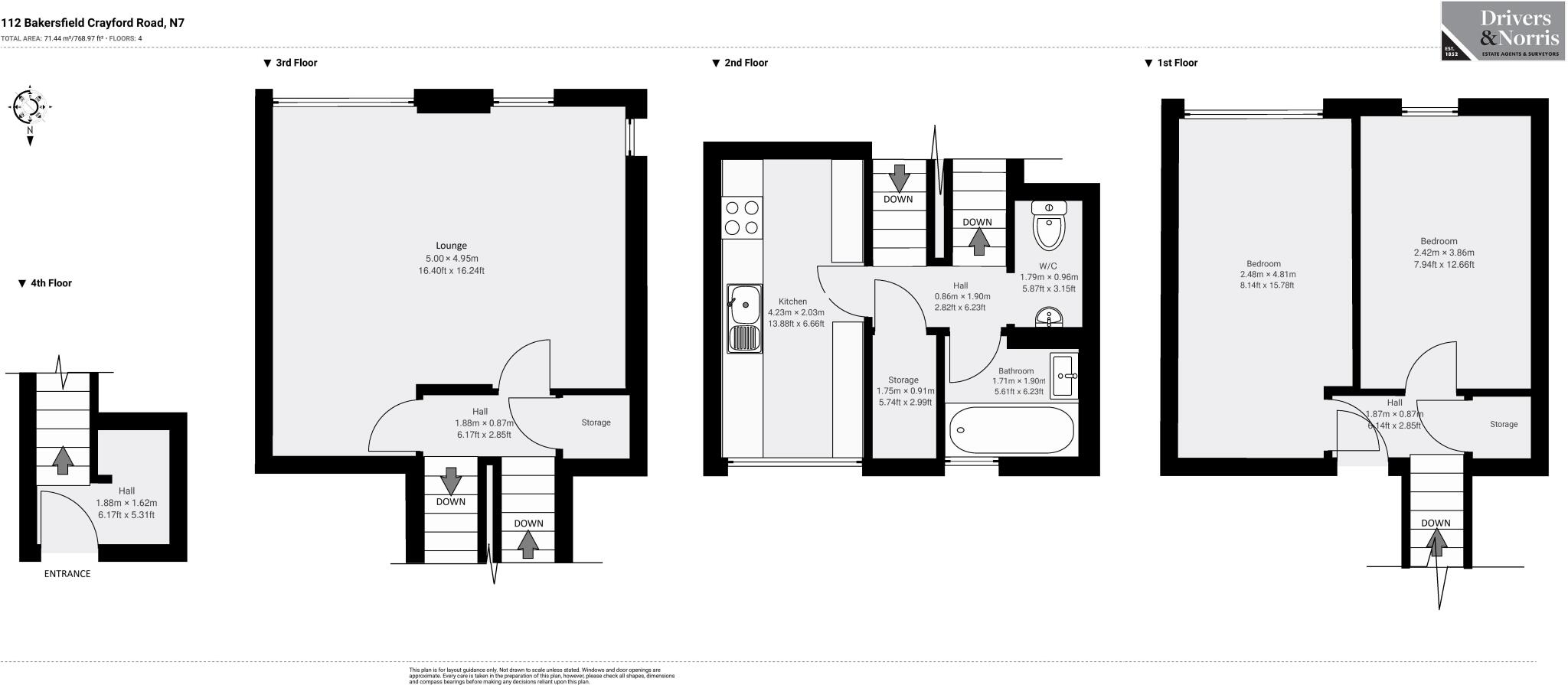
Set on Crayford Road in Tufnell Park, this 714 sq ft two-double-bedroom flat offers straightforward, chain-free entry to a well-connected inner-city neighbourhood. The layout provides a comfortable living/dining space and a separate bathroom, with generous natural light from double-glazed windows. Lift access adds convenience for everyday living.
Practical buyers will note the property’s straightforward running profile: electric room heaters, double glazing, and a remaining lease of about 90 years. The kitchen is small and shows mid-century fittings that would benefit from upgrading; walls are system-built and assumed to lack insulation, so there’s clear scope to improve thermal performance and reduce running costs.
Its location suits first-time buyers who want fast transport links (Tufnell Park and Holloway Road nearby), excellent mobile reception and fast broadband. The multicultural, student-heavy area supports rental demand, offering potential for future value uplift after refurbishment. Be aware the neighbourhood is in a deprived area with average crime levels — buyers should weigh local amenity access against these factors.
Overall this is a practical, ready-to-move-in apartment with sensible immediate use and tangible refurbishment potential for buyers who want to add value over time.
3 bedroom flat for sale in Crayford Road, Tufnell Park, London, N7 — £425,000 • 3 bed • 1 bath • 800 ft²
2 bedroom flat for sale in Tufnell Park Road, London, N7 — £550,000 • 2 bed • 1 bath • 654 ft²
2 bedroom flat for sale in Tufnell Park Road, London, N7 — £425,000 • 2 bed • 1 bath • 600 ft²
2 bedroom flat for sale in Buckhurst House, Dalmeny Avenue, London, N7 — £475,000 • 2 bed • 1 bath • 710 ft²
2 bedroom apartment for sale in Crayford Road, London, N7 — £550,000 • 2 bed • 1 bath • 771 ft²
2 bedroom apartment for sale in Carleton Gardens, London, N19 — £650,000 • 2 bed • 1 bath • 786 ft²










































