Affordable starter opportunity close to shops and transport; ideal for renovation buyers.
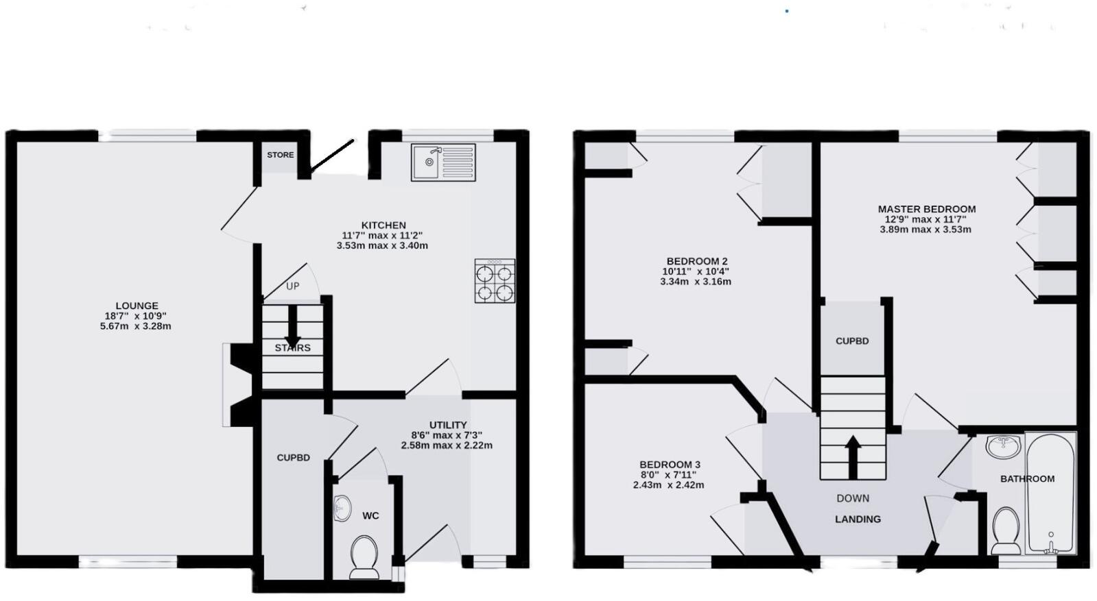
Chain-free freehold sale. | Good-sized rear garden. | Off-street parking included. | 718 sq ft total area. | Dated interior; requires modernization. | Single bathroom, three bedrooms. | Small overall plot and house size. | Close to Three Lakes Retail Park and transport links.
A traditional three-bedroom mid-terrace in Selby offered chain-free and ready for someone to add their own stamp. The house sits on a small plot with a good-sized rear garden and off-street parking — practical features for everyday living in a city location.
Internally the property is post-war and shows signs of age: dated décor, an older living room fireplace, and fixtures that will need updating. The layout and 718 sq ft give straightforward scope for sensible improvement rather than major remodelling, making it suitable as a first home or a buy-to-let with refurbishment upside.
Location is convenient: close to Three Lakes Retail Park, local shops and buses, with fast broadband and excellent mobile signal. Flood risk is very low and tenure is freehold, but buyers should note the single bathroom, small overall size and that some modernisation will be required.
This is a practical, affordable opportunity for a purchaser wanting a low-entry property in Selby. Investors and first-time buyers should factor renovation costs and scheduling into their plans, but those prepared to upgrade will benefit from location and off-street parking.
3 bedroom end of terrace house for sale in Bainbridge Drive, Selby, YO8 — £160,000 • 3 bed • 1 bath • 657 ft²
3 bedroom terraced house for sale in Londesborough Street, Selby, YO8 — £130,000 • 3 bed • 1 bath • 904 ft²
3 bedroom terraced house for sale in Recreation Road, Selby, YO8 5AL, YO8 — £180,000 • 3 bed • 1 bath • 778 ft²
3 bedroom semi-detached house for sale in Fostergate, Selby, YO8 — £150,000 • 3 bed • 1 bath • 764 ft²
2 bedroom terraced house for sale in Buller Street, Selby, YO8 — £130,000 • 2 bed • 1 bath • 893 ft²
3 bedroom terraced house for sale in Myrtle Avenue, Selby, YO8 — £215,000 • 3 bed • 1 bath • 753 ft²


















































