Low-maintenance single-floor home with enclosed garden and parking.
- One-bedroom terraced bungalow, single-storey living suited to over-60s
- Freehold with no onward chain for straightforward purchase
- Fully enclosed rear garden with AstroTurf and paved patio
- Residents off-street parking included
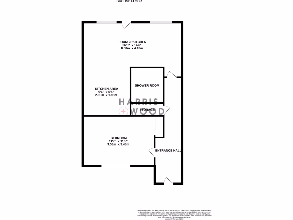
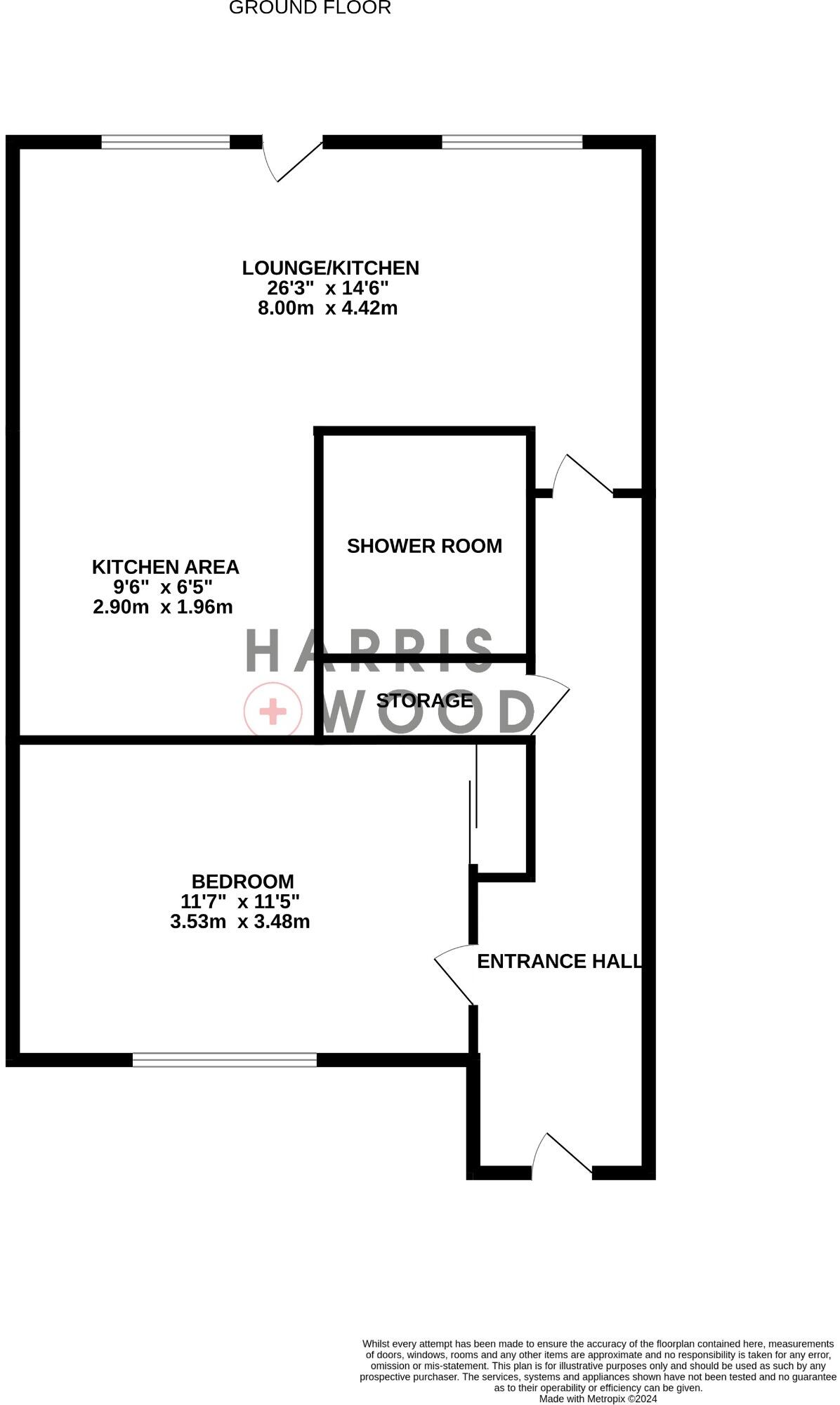
- Approx. 574 sq ft; average-sized rooms and compact layout
- Mains gas boiler and radiators; efficient heating in place
- Area classed as deprived; may affect long-term resale prospects
- Average broadband speeds; excellent mobile signal locally
A compact, purpose-suited bungalow for over-60s buyers, offered freehold with no onward chain. The single-bedroom layout and open-plan lounge/diner/kitchen provide straightforward, low-maintenance living on one level. Heating is gas-fired via boiler and radiators and the property has no flood risk.
Outside, the fully enclosed rear garden is finished with AstroTurf and a paved patio for easy upkeep, and residents’ off-street parking provides convenience. The bungalow sits in a quiet city/major town location with low crime, excellent mobile signal and a range of local shops, cafes and services within easy reach.
Practical points to note: the home is an average-sized property (approx. 574 sq ft) on a small plot and is suited to downsizers or retirees seeking simplicity rather than extensive space. Broadband speeds are average and the surrounding area scores as deprived, which may affect future resale prospects but currently contributes to lower council tax charges.
Overall this is a tidy, ready-to-move-into retirement bungalow that prioritises convenience and low upkeep. Buyers should view it as a compact, single-level home with modest rooms and strong local amenity access, rather than a larger family house.
2 bedroom detached bungalow for sale in Wade Reach, Walton On The Naze, CO14 — £280,000 • 2 bed • 1 bath
2 bedroom semi-detached bungalow for sale in Butchers Lane, Walton-on-the-Naze, CO14 — £260,000 • 2 bed • 1 bath • 445 ft²
2 bedroom detached bungalow for sale in Butchers Lane, Walton-on-the-naze, CO14 — £279,950 • 2 bed • 1 bath • 584 ft²
2 bedroom semi-detached bungalow for sale in Beatrice Road, Walton on the Naze, CO14 — £300,000 • 2 bed • 1 bath • 756 ft²
2 bedroom bungalow for sale in Louise Close, Walton on the Naze, CO14 — £318,500 • 2 bed • 1 bath • 665 ft²
1 bedroom retirement property for sale in Louise Close, Walton-on-the-Naze, CO14 — £160,000 • 1 bed • 1 bath • 393 ft²


































































