Spacious family living with west-facing garden and garage parking.
Detached three-bedroom family home in a quiet cul-de-sac
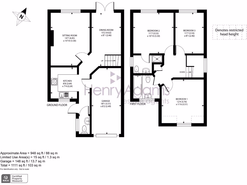
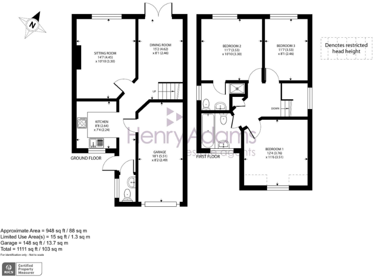
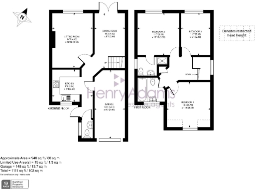
Set in a quiet cul-de-sac close to Bracklesham Bay, this modern three-bedroom detached home suits families seeking easy access to the beach and local amenities. The ground floor includes a well-fitted kitchen, a generous sitting room and a separate dining room with patio doors leading to a west-facing garden that captures afternoon and evening sun.
Upstairs, a wide landing leads to three double bedrooms, with the main bedroom served by an en-suite and the others sharing a family bathroom. Practical features include an integral garage with internal access and a private driveway providing ample off-road parking; the garage could be converted to add living space, subject to consents.
The property is freehold, chain-free and energy-rated C. It was built around 1996–2002, has double glazing and mains gas central heating. Chichester District Council Tax Band D for 2025/26 is £2,341.09. The house is average-sized (approx. 1,111 sq ft) with a decent plot and standard ceiling heights, offering scope for light cosmetic updating or garden landscaping to add value.
Practical positives — seaside proximity, low local crime, fast broadband and good mobile signal — suit families and commuters alike. Note the kitchen is small-to-medium in size, and any garage conversion or extensions would require planning permission and building consents.
4 bedroom detached house for sale in Wilton Close, Bracklesham Bay, PO20 — £500,000 • 4 bed • 2 bath • 1699 ft²
4 bedroom detached house for sale in Mere Close, Bracklesham Bay, PO20 — £585,000 • 4 bed • 2 bath • 1302 ft²
3 bedroom detached house for sale in Sandpiper Walk, West Wittering, PO20 — £465,000 • 3 bed • 2 bath • 1109 ft²
2 bedroom semi-detached house for sale in Manton Close, Bracklesham Bay, PO20 — £340,000 • 2 bed • 1 bath • 766 ft²
3 bedroom end of terrace house for sale in Tide Way, Bracklesham Bay, PO20 — £340,000 • 3 bed • 1 bath • 850 ft²
4 bedroom detached house for sale in Mere Close, Bracklesham Bay, PO20 — £499,950 • 4 bed • 2 bath • 1391 ft²


































































