Contemporary shared-ownership flat close to station and local amenities.
Two double bedrooms with two bathrooms
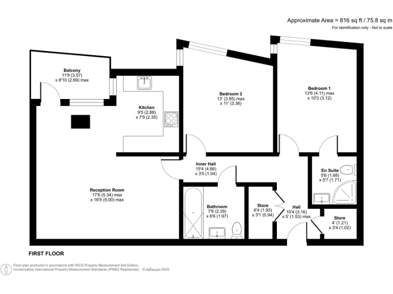
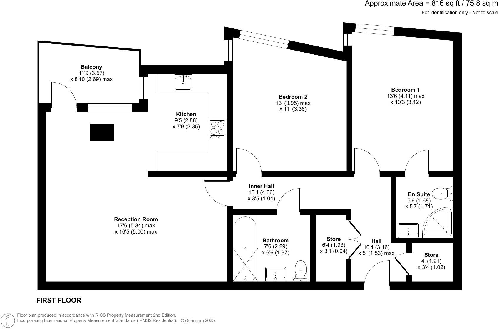
Bright, modern two-bedroom shared ownership flat in a contemporary 2018 block, a short walk from Forest Hill station and the high street. The apartment offers an open-plan living area with integrated appliances, a small balcony, two bathrooms and generous built-in storage — useful for first-time buyers seeking move-in-ready space.
The property sits on the third floor and benefits from double glazing, laminate flooring where stated and a long lease. At about 797 sq ft overall, the layout feels larger than many two-beds; the second bathroom and ample storage add practical flexibility for couples or sharers.
Practical considerations are straightforward: this is a leasehold shared-ownership home, so check eligibility and ownership split. The surrounding area is an inner-city, cosmopolitan neighbourhood with excellent mobile signal, a wide range of shops, cafes and cultural amenities (including Horniman Museum & Gardens), and a choice of well-regarded local schools.
Be candid about the downsides: local crime levels are above average and the wider area shows higher deprivation indices. Broadband speeds are average. Buyers should confirm service charges, any ground rent, and the exact shared-ownership terms before committing.
2 bedroom flat for sale in Clyde Terrace, London, SE23 — £115,000 • 2 bed • 2 bath • 792 ft²
1 bedroom flat for sale in Clyde Terrace, London, SE23 — £133,000 • 1 bed • 1 bath • 847 ft²
1 bedroom apartment for sale in Perry Vale, London, SE23 — £300,000 • 1 bed • 1 bath • 452 ft²
2 bedroom apartment for sale in Bell Green, London, SE26 — £260,000 • 2 bed • 1 bath • 788 ft²
2 bedroom flat for sale in Taymount Rise, Honor Oak, SE23 — £550,000 • 2 bed • 2 bath • 779 ft²
2 bedroom flat for sale in Thurston Road, London, SE13 — £126,000 • 2 bed • 1 bath • 667 ft²














































































