Large plot and annexe — ideal for family expansion or investor refurbishment.
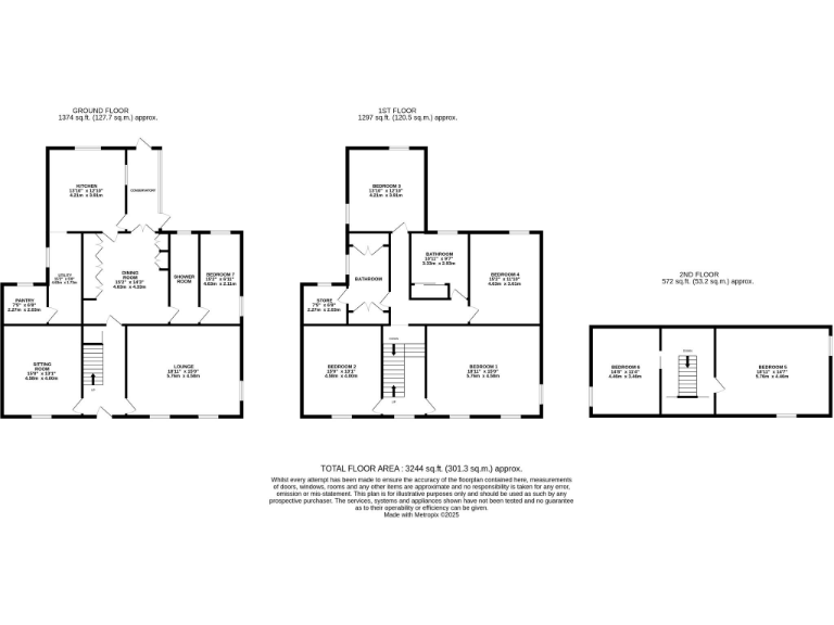
Six/seven bedrooms across three floors and flexible home-office/bedroom space
Over 3,200 sq ft of living space on a large, private plot
Detached single-storey annexe with rental or workspace potential (subject to consents)
Double garage plus attached barn offering storage or conversion opportunity
Extensive rear gardens, established lawns and landscaping potential
Requires full modernisation — kitchens, bathrooms and general refurbishment needed
Sold by Modern Method of Auction; undisclosed reserve and reservation fee apply
Freehold; council tax band is above average for the area
A substantial, characterful family home offering over 3,200 sq ft across three floors, set on a large private plot in the heart of Scotter. The house features multiple reception rooms, flexible bedroom layouts (six/seven bedrooms), a detached single-storey annexe and outbuildings including a double garage and attached barn. The annexe and barn present clear scope for ancillary income or independent living, subject to consents.
The property requires comprehensive updating and modernisation throughout; kitchens, bathrooms and general decoration will need attention. Despite this, the generous room proportions, high ceilings and versatile plan create strong potential to add value for a growing family or investor prepared to refurbish. Note: construction era is recorded as 1996–2002 and glazing details are unknown.
For sale by auction under the Modern Method of Auction. A reserve price is set but undisclosed; a non-refundable reservation fee (minimum payable) applies on completion of the Reservation Agreement. Buyers using finance should satisfy themselves with lenders before bidding and allow for the auction terms and completion timescales.
4 bedroom detached house for sale in Elizabeth Close, Scotter, Gainsborough, Lincolnshire, DN21 — £435,000 • 4 bed • 2 bath • 1511 ft²
4 bedroom detached bungalow for sale in Kirton Road,Scotter,Gainsborough,DN21 3SW, DN21 — £425,000 • 4 bed • 2 bath • 1551 ft²
4 bedroom semi-detached house for sale in High Street, Scotter, Gainsborough, DN21 — £370,000 • 4 bed • 2 bath • 1870 ft²
5 bedroom detached house for sale in Eastgate Mews, Scotton, DN21 — £650,000 • 5 bed • 3 bath • 2907 ft²
4 bedroom detached house for sale in The Green, Scotter, DN21 — £385,000 • 4 bed • 2 bath • 2595 ft²
4 bedroom detached house for sale in Scotter, DN21 — £510,000 • 4 bed • 3 bath • 2486 ft²






































































































































