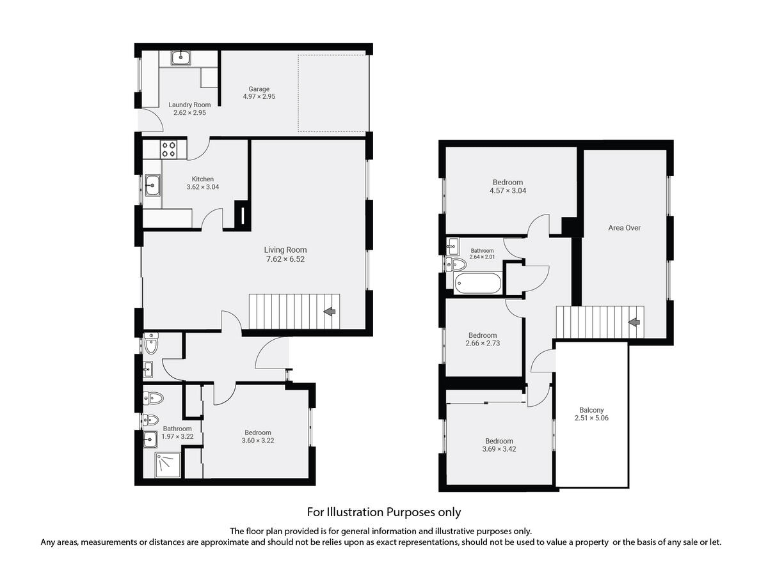
**Standout Features:**
- Unique architectural design with spacious interiors
- Large driveway and garage providing ample parking
- Beautifully maintained gardens
- Downstairs bedroom with cleverly concealed en-suite
- Expansive balcony offering tranquil views
- Ideal for families and commuters, with good transport links
**Summary:**
Discover this unique and spacious 4-bedroom detached home on Pill Row, Caldicot, perfect for modern family living and convenient commuting. Offering a thoughtfully designed layout, this property features a cozy downstairs bedroom complete with a hidden en-suite, while the open-plan living and dining area boasts a stunning double-height ceiling that brings an airy feel to the home. The modern kitchen is perfect for cooking and entertaining, with a handy utility room providing direct access to the garage.
Upstairs, three generously sized bedrooms share a stylish family bathroom, and the expansive balcony overlooks the beautifully landscaped front garden and tranquil pond — an ideal spot for relaxing with your morning coffee. The property is set on a large driveway, ensuring ample parking for multiple vehicles.
Located within a comfortable neighborhood, this home provides excellent transport links to Newport, Cardiff, and Bristol, appealing to both families and commuters. However, it's important to note the local area's high crime rate and higher council tax. With its unique charm and modern conveniences, this standout home is a must-see and won't last long on the market. Envision your family’s future here, where comfort meets potential.
4 bedroom detached house for sale in Clos Ystwyth, Caldicot, NP26 — £450,000 • 4 bed • 2 bath • 1216 ft²
3 bedroom detached house for sale in Taff Road, Caldicot, NP26 — £379,950 • 3 bed • 2 bath • 1180 ft²
3 bedroom detached house for sale in Castle Lea,Caldicot, NP26 — £375,000 • 3 bed • 2 bath • 2032 ft²
4 bedroom detached house for sale in Wentwood View, Caldicot, NP26 — £459,950 • 4 bed • 2 bath • 1667 ft²
4 bedroom detached house for sale in Deepweir,Caldicot, NP26 — £299,950 • 4 bed • 2 bath • 944 ft²
3 bedroom detached house for sale in Castle Lodge Crescent, Caldicot, NP26 — £320,000 • 3 bed • 1 bath • 872 ft²






























































































