Auction opportunity for investors seeking a value-add project near Durham city..
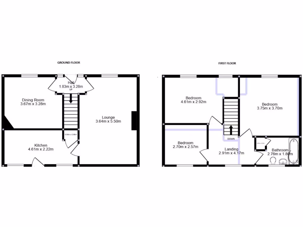
- Three bedrooms, two doubles, family bathroom (1,073 sq ft total)
- Generous front and rear gardens plus brick outbuilding
- Full refurbishment required throughout; cosmetic and systems work
- Heating details inconsistent; verify mains gas boiler and solid fuel
- Sold by modern auction: non-refundable reservation fee applies
- Fast broadband and excellent mobile signal in prosperous area
- Plot size decent; council tax very low
- Local crime above average; security improvements likely needed
Sold via modern auction, this end-terrace three-bedroom house in Bearpark offers clear upside for an investor or hands-on renovator. The layout includes lounge, separate dining room, kitchen, three bedrooms and a family bathroom across a sensible 1,073 sq ft footprint. Generous front and rear gardens and a brick outbuilding extend usable space and add scope for landscaping or rental return enhancement.
The property requires full refurbishment throughout: cosmetic works, likely improvements to insulation, and a careful check of the heating system (listing references both mains gas boiler and solid-fuel heating). Buyers should factor the auction-specific costs and timescales into offers — a non-refundable reservation fee and buyer’s pack are payable and completion is required within a 56-day reservation period.
Located a few miles from Durham city centre with regular buses, local shops and good primary schools nearby, the house sits in a prosperous rural-fringe area with fast broadband and excellent mobile signal. Council tax is very low, and the plot size and period build (c.1900–1929) give potential for good rental yield or a value-add resale once renovated.
Be transparent about limitations: the garden is overgrown and the property needs substantial work. Crime levels are above average locally, so factor security and external repairs into any refurbishment plan. This is a clear project for investors or experienced DIY buyers prepared to trade time and cash for future uplift.
2 bedroom terraced house for sale in North View, Bearpark, Co Durham, DH7 — £40,000 • 2 bed • 1 bath • 738 ft²
3 bedroom detached house for sale in 4 Aden Court, Bearpark, Durham, DH7 7TH, DH7 — £115,000 • 3 bed • 1 bath
2 bedroom semi-detached house for sale in Quarry Crescent, Bearpark, Durham, DH7 — £75,000 • 2 bed • 1 bath
2 bedroom end of terrace house for sale in Auton Stile, Bearpark, Durham, Durham, DH7 7AA, DH7 — £96,500 • 2 bed • 1 bath • 862 ft²
3 bedroom terraced house for sale in East View, West Cornforth, County Durham, DL17 — £72,000 • 3 bed • 1 bath
3 bedroom terraced house for sale in 4 Hawthorne Terrace, New Brancepeth, Durham DH7 7HU, DH7 — £45,000 • 3 bed • 1 bath • 1313 ft²






























