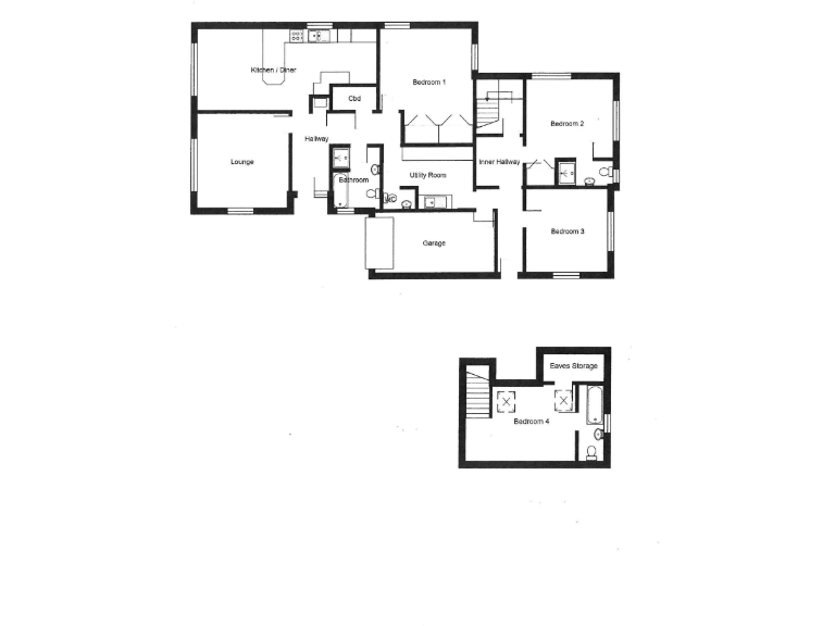
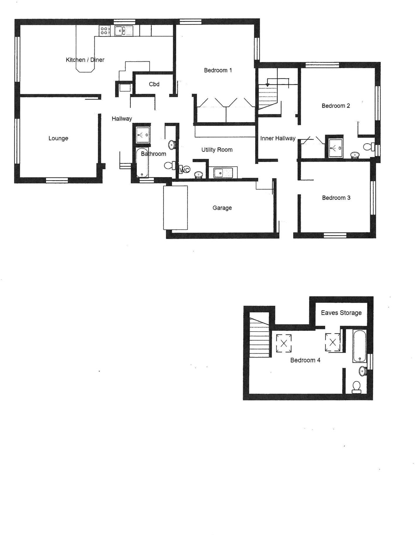
**Standout Features:**
- Spacious 4-bedroom, 3-bathroom detached bungalow
- Adaptable layout allowing for potential annex creation
- Integral garage and large brick-paved driveway offering ample off-street parking
- Beautiful cul-de-sac location close to schools and sports facilities
- Level front and rear gardens with mature trees
- Gas central heating and double-glazed windows
- Freehold tenure, chain-free sale
Explore this spacious and adaptable 4-bedroom detached bungalow set in a tranquil cul-de-sac location, minutes away from excellent schools and local amenities. With versatile accommodation that could easily be transformed into an annexe or a family guest suite, this property presents an ideal opportunity for families or investors looking for a rental potential. The light-filled lounge features a cozy woodburning stove, while the expansive kitchen/dining/family room invites gatherings around a modern kitchen setup.
The bungalow sits on a generous plot with a large brick-paved driveway and integral garage, providing secure off-street parking. Enjoy the well-maintained level gardens perfect for outdoor entertaining. Although one bedroom is located upstairs with restricted head height, the ease of single-level living makes this home highly appealing for various lifestyles.
With very low crime rates and a sense of community within a desirable area, this property is well-positioned for comfortable family living. Don't miss out on an opportunity that combines spacious design with future flexibility—properties like this are rare! Schedule your viewing today to experience it for yourself.
4 bedroom detached bungalow for sale in Higher Whiterock, Wadebridge, PL27 — £425,000 • 4 bed • 2 bath • 1138 ft²
3 bedroom detached bungalow for sale in Wadebridge PL27 — £425,000 • 3 bed • 1 bath • 991 ft²
3 bedroom bungalow for sale in St. Cleer Drive, Wadebridge, Cornwall, PL27 — £450,000 • 3 bed • 1 bath • 1329 ft²
4 bedroom detached bungalow for sale in 14 Browning Drive, Bodmin, PL31 1PW, PL31 — £343,000 • 4 bed • 1 bath • 1048 ft²
4 bedroom bungalow for sale in Oakwood Park, Bodmin, Cornwall, PL31 — £375,000 • 4 bed • 2 bath • 1798 ft²
2 bedroom terraced bungalow for sale in Higher Whiterock, Wadebridge, PL27 — £318,000 • 2 bed • 1 bath • 675 ft²


















































































