OL3 5AZ - 2 bedroom end of terrace house for sale in Delph New Road,…

View on Property Piper

2 bedroom end of terrace house for sale in Delph New Road, Dobcross, Saddleworth, OL3

Summary - 1 DELPH NEW ROAD DOBCROSS OLDHAM OL3 5AZ

2 bed 1 bath End of Terrace

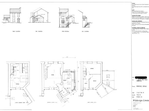
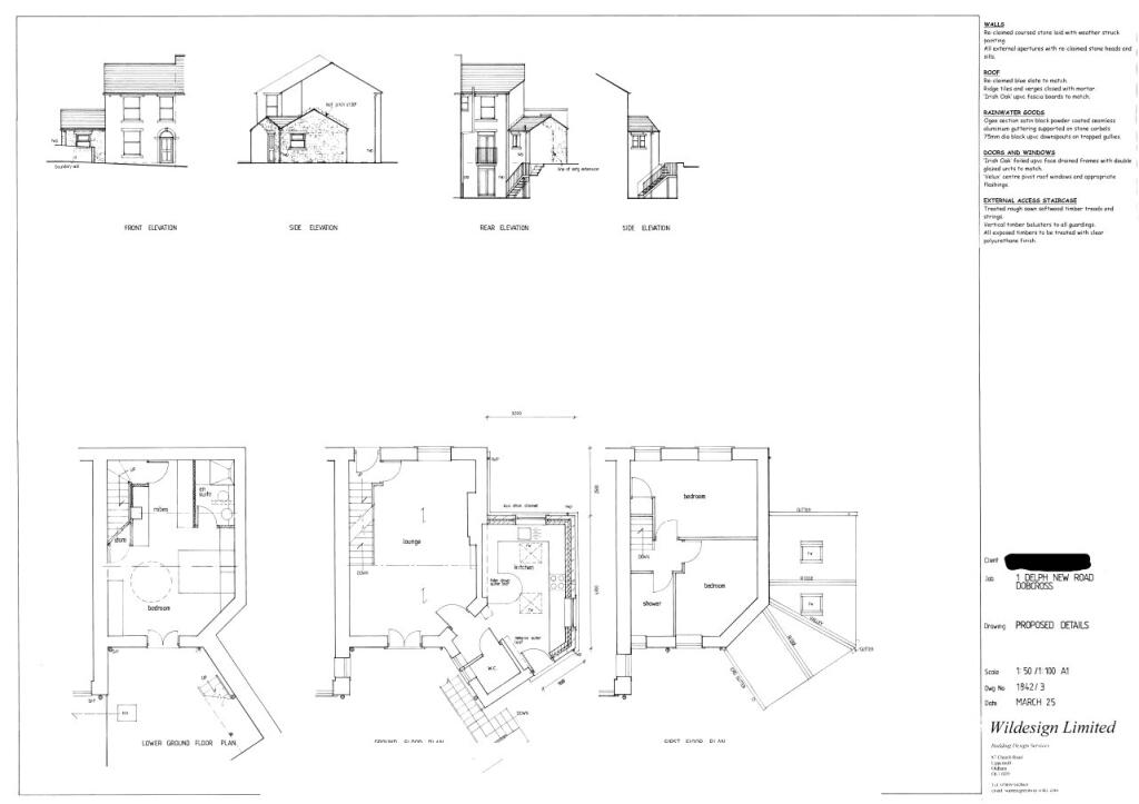
Chain-free Victorian end-terrace with parking, patio garden and planning permission to extend.
Circa 1,000 sq ft across three floors
A spacious, stone-built end-terrace in Dobcross offering almost 1,000 sq ft across three floors, private multi-car parking and an enclosed Indian stone patio garden. The property is chain-free and freehold, with planning permission granted for a single-storey extension (Oldham ref HOU/354762/25), making it appealing for buyers seeking immediate occupancy with potential to extend. Accommodation includes a through lounge with Juliette balcony, lower-ground kitchen/diner with integrated appliances, two double bedrooms and a modern three-piece shower room.

The house retains period character in its sandstone facade and sash-style windows while benefiting from gas central heating and uPVC double glazing. It sits within easy walking distance of Dobcross and Uppermill amenities, local primary schools rated Good, and pleasant local green spaces, suiting families or buyers wanting village-style living with fast broadband and excellent mobile signal.

Notable practical points: the property was built before 1900 and the original stone walls are assumed to have no cavity insulation, and the EPC is recorded as D which can mean higher running costs than newer homes. The plot is small and there is just one shower room serving two bedrooms. Prospective buyers should inspect the lower-ground level to assess light and damp-proofing and consider insulation upgrades if desired.

Property Details

Image Descriptions

Floorplan Description

Rooms

Textual Property Features

Target Audience

AI Tags

Detected Visual Features

EPC Details

Nearby Schools

Nearest Bars And Restaurants

,,,,}

Nearest General Shops

,,}

Nearest Grocery shops

,,}

Nearest Supermarkets

,,}

Nearest Religious buildings

,,}

Nearest Medical buildings

,,,}

Nearest Airports

}

Nearest Leisure Facilities

,,,,}

Nearest Tourist attractions

,,}

Nearest Train stations

,,,,}

Nearest Bus stations and stops

,,,,}

Nearest Hotels

,,}

Tags

Local Market Stats

AirBnB Data

Similar Properties

Meta

High Res Images

Compatible Images

Low res Images

Thumbnails

Raw Images

High Res Floorplan Images

Compatible Floorplan Images

Low res Floorplan Images

FloorplanImages Thumbnail

Raw Floorplan Images