Newly renovated maisonette with balcony and excellent transport links.
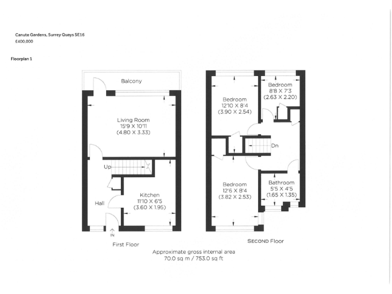
Chain free three-bedroom duplex, 753 sq ft
This three-bedroom duplex maisonette occupies 753 sq ft over two levels and has been newly renovated throughout, offering a modern fitted kitchen, contemporary bathroom and wood flooring. Two double bedrooms and a larger-than-average single provide flexible accommodation for couples, small families or sharers. A private balcony looks onto Southwark Park, ideal for morning coffee and outdoor access.
The location is a genuine convenience: Surrey Quays Overground and Canada Water Jubilee Line are within walking distance, with shops, eateries and community facilities nearby. The property is chain free and ready to occupy, so moving can be straightforward.
Buyers should note material facts clearly: this is a leasehold with 90 years remaining, an annual service charge of £1,669.24 and a ground rent of £10. The neighbourhood records very high crime and local area deprivation; purchasers should factor security and running-cost implications into their plans. The apartment is relatively small for three bedrooms and has a single bathroom, which may require planning for household routines.
3 bedroom flat for sale in Camilla Road, Bermondsey, London, SE16 — £350,000 • 3 bed • 1 bath • 758 ft²
3 bedroom ground floor flat for sale in Acorn Walk, London, SE16 — £465,000 • 3 bed • 1 bath • 913 ft²
3 bedroom duplex for sale in Canada Estate, London, SE16 — £460,000 • 3 bed • 1 bath • 787 ft²
3 bedroom flat for sale in Marine Wharf, Canada Water, SE16 — £600,000 • 3 bed • 2 bath • 988 ft²
2 bedroom flat for sale in Quebec Way, London, SE16 — £725,000 • 2 bed • 2 bath • 1000 ft²
3 bedroom flat for sale in Lockwood Square, Bermondsey, London, SE16 — £375,000 • 3 bed • 1 bath • 934 ft²






























