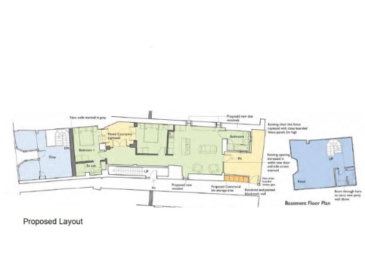
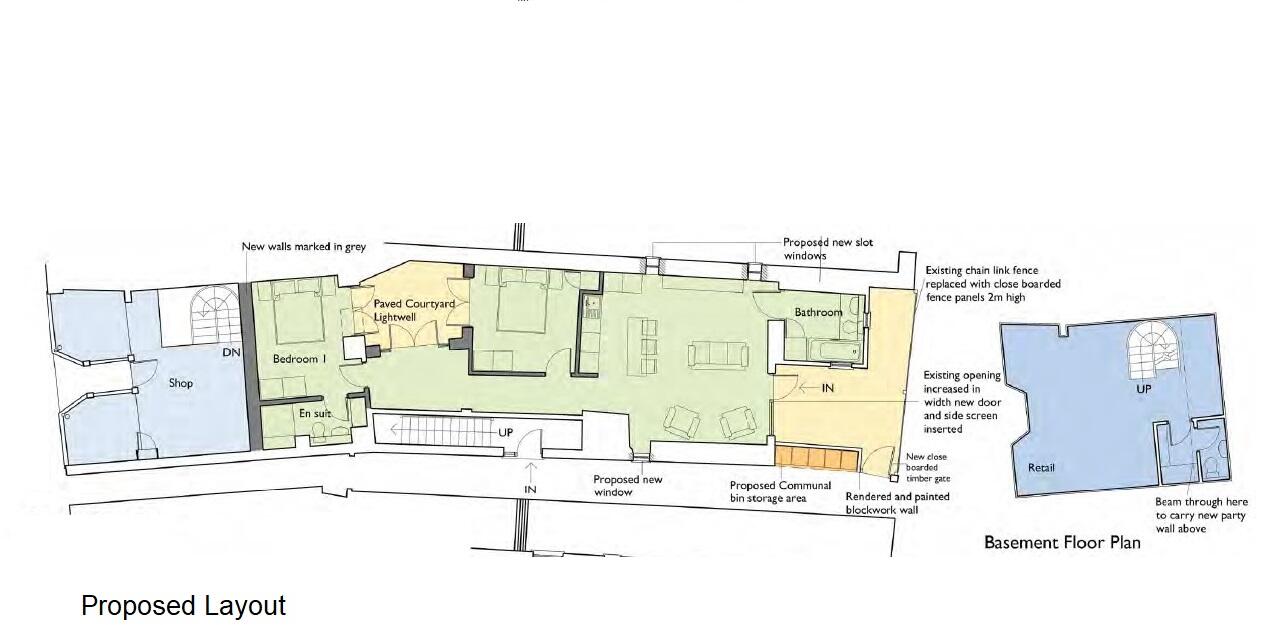
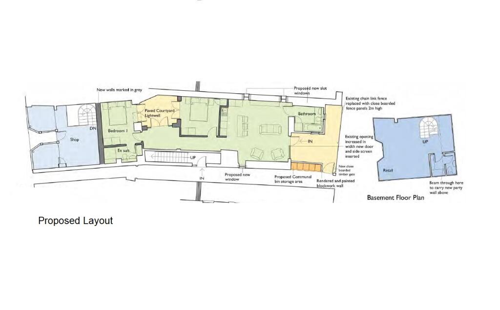
Large retail space with consent for a two-bedroom apartment in central location.
Double-fronted ground-floor retail unit, 1,559 sq ft (145 sqm)
A substantial double-fronted ground-floor unit in Penzance town centre, offered as a leasehold conversion opportunity. The 1,559 sq ft commercial space includes rear storage and basement, with planning consent already granted to convert part of the premises to a two-bedroom apartment (PA22/07273). Its large display windows and high ceilings make it suitable for retail retention or residential conversion that benefits from street-level presence.
This property appeals to investors or developers seeking a low-entry-cost project in a busy secondary retailing area. The 999-year lease and EPC rating of C (75) are practical advantages, while excellent mobile signal and fast broadband support modern living or commercial uses. The immediate availability and central location place it within walking distance of shops, transport links and local schools.
Buyers should note material considerations: the interior is in a raw/derelict state and will require renovation to complete the consented conversion or to refurbish for continued retail use. The area records high crime and high deprivation indices, which may affect rental levels and retail footfall. Copies of planning documents are available from Cornwall Council for verification.
High street retail property for sale in 99 Market Jew Street, Penzance, TR18 — £300,000 • 1 bed • 1 bath • 2792 ft²
Commercial property for sale in Market Jew Street, Penzance, Cornwall, TR18 2HR, TR18 — £179,000 • 1 bed • 1 bath
High street retail property for sale in 3-4 Market Jew Street, Penzance, Cornwall, TR18 — £140,000 • 1 bed • 1 bath • 1830 ft²
4 bedroom terraced house for sale in Chapel Street, Penzance, Cornwall, TR18 — £500,000 • 4 bed • 1 bath • 2240 ft²
Commercial property for sale in 3-4 Market Jew Street, Penzance, Cornwall, TR18 — £250,000 • 1 bed • 1 bath • 5446 ft²
High street retail property for sale in 113 Market Jew Street, Penzance, TR18 — £275,000 • 1 bed • 1 bath • 1321 ft²














































































