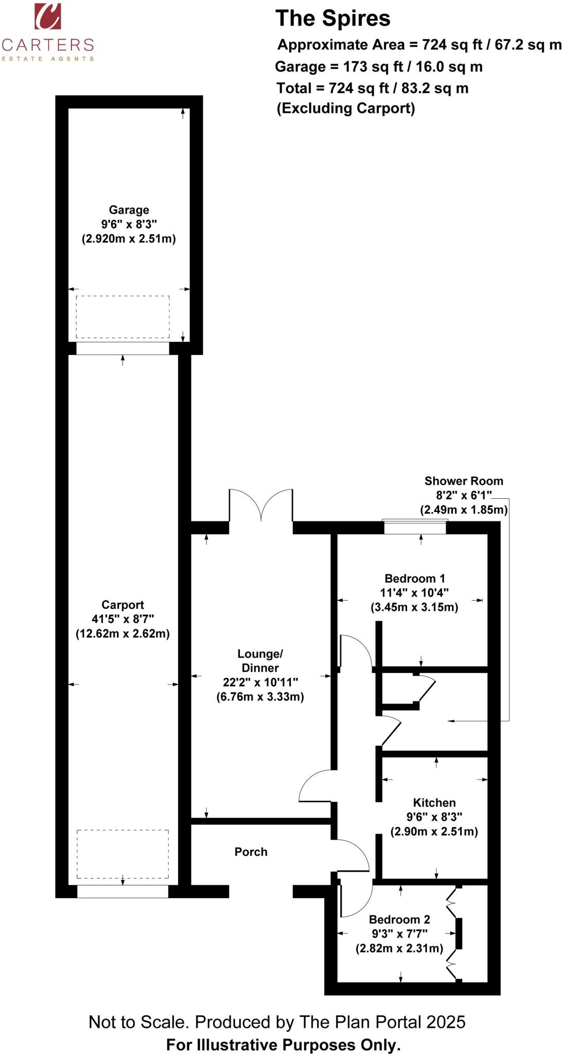
- Detached two-bedroom bungalow on a generous corner plot
- Chain free — ready for a quick sale
- Lounge/diner with patio doors to rear garden
- Tarmac driveway, car port and single garage
- Rear main bedroom for added privacy
- Some 1980s dated decor; modernization likely required
- Single shower room only; no separate bath
- Mixed secondary school performance in the area
A detached two-bedroom bungalow on a generous corner plot in The Spires, offered chain-free and suitable for single-storey living. The layout is linear and practical—central hallway, lounge/diner with patio doors to the rear garden, kitchen, two bedrooms and a modern shower room. The main bedroom sits quietly to the rear while the second bedroom benefits from built-in wardrobes.
The property includes a tarmac driveway, a sizeable car port leading through to a single garage, and a neat rear garden with paved patio and lawn. Broadband speeds are fast and mobile signal is excellent, making the home well suited to remote working or connected living. Local amenities are within easy reach, including bus links to Nuneaton town centre, Aldi, shops and pubs.
The bungalow is broadly average in size (approximately 724 sq ft) and in generally good condition, but parts of the interior show dated 1980s decor and could benefit from modernization to maximise value. Nearby schools are mixed in performance; several good primary options are local while some secondary options have lower Ofsted ratings. No flood risk and affordable council tax make running costs reasonable.
This chain-free detached bungalow will appeal to downsizers or buyers seeking a manageable single-storey home with scope to update. The garage and off-road parking add practical value; early viewing recommended to assess refurbishment potential and how best to reconfigure or modernise the interior.



























































