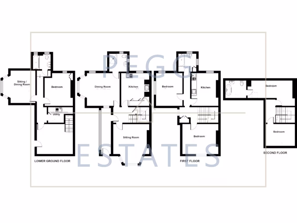
**Standout Features:**
- **Six Bedrooms & Four Bathrooms:** Ideal for large families or multi-generational living.
- **Versatile Ground Floor:** Loosely arranged as a two-bedroom annex for potential Airbnb income.
- **Lovely Period Property:** A mix of historic charm and modern comforts throughout, including new boiler and double-glazed windows.
- **Spacious Layout:** Offers three reception rooms and two kitchens, perfect for both entertaining and relaxation.
- **Tranquil Gardens:** Private front and rear gardens for outdoor enjoyment.
- **Off-Street Parking:** Convenient parking available in a desirable area.
This stunning semi-detached Victorian home seamlessly combines classic elegance with contemporary practicality, boasting six spacious double bedrooms and four well-appointed bathrooms. The thoughtful layout supports family living, featuring multiple reception areas and kitchens that cater to both relaxation and social gatherings. The unique ground floor offers the potential for a self-contained two-bedroom holiday let, making it an appealing investment opportunity for Airbnb or vacation rentals. With serene gardens for outdoor leisure and off-street parking available, this property is a true gem in a community with a strong professional presence.
While the property presents an inviting lifestyle, prospective buyers should be mindful of its age, as some sections still exhibit historic characteristics that may require insulative updates to boost energy efficiency. Overall, this charming home is a rare find that could provide both a comfortable family residence and a lucrative rental opportunity—act quickly to secure this exceptional property!
4 bedroom semi-detached house for sale in Innerbrook Road, Torquay, TQ2 — £325,000 • 4 bed • 2 bath
4 bedroom semi-detached house for sale in Windsor Close, Torquay, Devon, TQ1 — £500,000 • 4 bed • 2 bath • 3667 ft²
7 bedroom semi-detached house for sale in Warberry Road West, Torquay, Devon, TQ1 — £450,000 • 7 bed • 4 bath • 2413 ft²
4 bedroom semi-detached house for sale in Avenue Road, Torquay, TQ2 — £430,000 • 4 bed • 4 bath • 1647 ft²
9 bedroom semi-detached house for sale in Bampfylde Road, Torquay, TQ2 — £500,000 • 9 bed • 9 bath • 2745 ft²
5 bedroom semi-detached house for sale in Bridge Road, Torquay, TQ2 — £500,000 • 5 bed • 7 bath • 1198 ft²










































































































