**Standout Features:**
- Three well-proportioned bedrooms, ideal for families or home offices
- Modern kitchen with stylish fixtures and fittings
- Bright conservatory leading into a low-maintenance garden
- Detached garage and driveway for off-road parking
- Family-friendly neighborhood near local amenities
**Summary:**
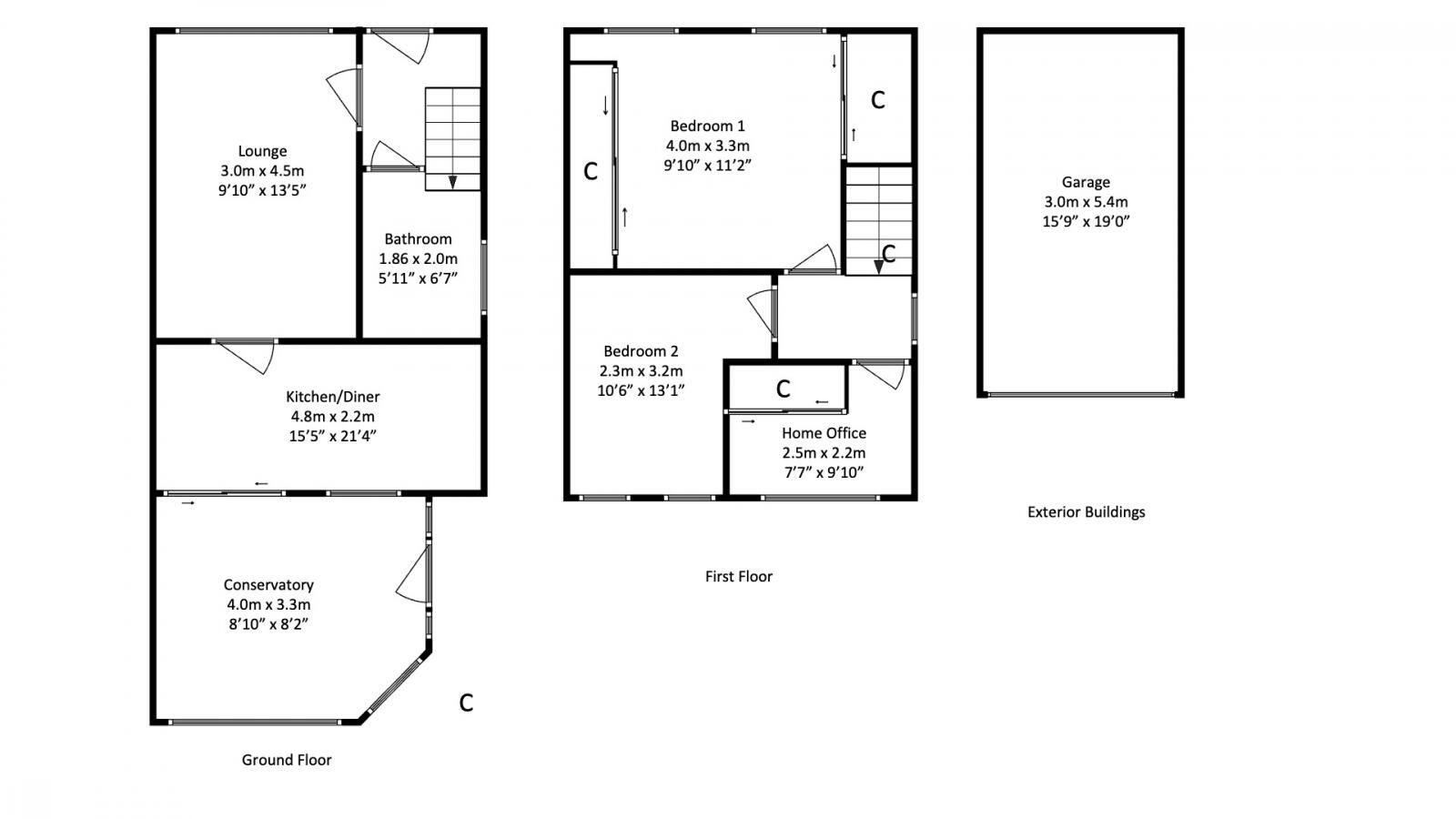
Discover this charming three-bedroom semi-detached home in Wishaw, perfect for families seeking comfort and style in a serene suburban setting. Step into a welcoming entrance hallway and bask in the warmth of the bright living room, ideal for relaxation and entertaining. The modern kitchen is equipped with contemporary fixtures and opens to a delightful conservatory, creating a seamless indoor-outdoor experience—perfect for unwinding after a long day.
With a modern family bathroom and three spacious bedrooms, this home offers ample room for growth and versatility, whether for guests, hobbies, or a home office. Enjoy the low-maintenance outdoor space featuring a slabbed garden and a detached garage, providing additional storage or workshop potential.
Set in a comfortable suburb with convenient amenities within walking distance, this property offers practicality and comfort for today’s family. While the area may face challenges linked to deprivation, the affordable council tax and fast broadband speeds enhance its appeal, making this home ready for your personal touch. Don’t miss out on a golden opportunity—this blend of modern living and serene ambiance won’t last long!
3 bedroom semi-detached house for sale in Bluebell Wynd, Wishaw, ML2 — £180,000 • 3 bed • 3 bath • 871 ft²
2 bedroom semi-detached house for sale in Lewis Avenue, Wishaw, North Lanarkshire, ML2 — £125,000 • 2 bed • 1 bath • 689 ft²
3 bedroom semi-detached house for sale in Branchalfield Drive, Cambusnethan, Wishaw, ML2 — £165,000 • 3 bed • 2 bath • 1120 ft²
4 bedroom semi-detached house for sale in Abbotsford Crescent, Wishaw, ML2 — £175,000 • 4 bed • 1 bath
2 bedroom end of terrace house for sale in Langholm Crescent, Wishaw, ML2 — £120,000 • 2 bed • 1 bath • 710 ft²
3 bedroom semi-detached house for sale in Coldstream Crescent, Wishaw, ML2 — £99,995 • 3 bed • 2 bath • 704 ft²


















































































































