Turn-key detached house near Weston seafront with garden, garage and flexible living space.
Recently renovated throughout — move-in ready condition
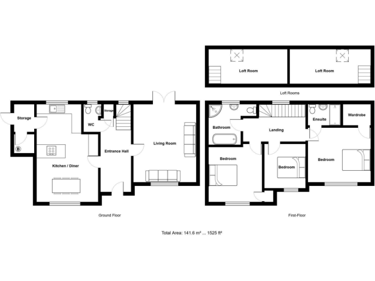
Enjoy a roomy, recently renovated detached family home minutes from Weston seafront and the town centre. The bright kitchen/diner and large living room create comfortable everyday living, while three double bedrooms plus two loft rooms offer flexible space for children, home office, or guest rooms.
Outside, a sunny rear garden, large front plot, garage and private parking make family life convenient and practical. The property is offered with no onward chain, so a straightforward move is possible for a growing household seeking a turn-key home.
Practical points to note: the house was constructed mid-20th century and cavity walls are assumed uninsulated, so owners may want to consider additional insulation works. Council tax is described as expensive, and local area data shows higher deprivation and above-average crime — weigh these factors against the strong school options nearby and good transport links.
Overall this is a spacious, well-presented detached home with genuine family appeal and room to adapt. It will suit buyers who want a ready-to-live-in property with future potential to improve thermal efficiency and personalise internal spaces.
5 bedroom detached house for sale in Arundell Road, Weston-Super-Mare - BEAUTIFULLY PRESENTED, BS23 — £535,000 • 5 bed • 2 bath • 2200 ft²
5 bedroom detached house for sale in Ashleigh Road, Milton, Weston-Super-Mare, BS23 — £500,000 • 5 bed • 2 bath • 1398 ft²
3 bedroom semi-detached house for sale in All Saints Road, Weston-super-Mare - IMMACULATE FAMILY HOME, BS23 — £465,000 • 3 bed • 1 bath • 1543 ft²
4 bedroom detached house for sale in Trawden Close, Weston-super-Mare, BS23 — £565,000 • 4 bed • 3 bath • 1734 ft²
3 bedroom semi-detached house for sale in The Wrangle, Weston-Super-Mare - FULLY RENOVATED, BS24 — £255,000 • 3 bed • 2 bath • 780 ft²
5 bedroom detached house for sale in Brean Down Avenue, Weston-super-Mare, North Somerset, BS23 — £925,000 • 5 bed • 3 bath • 3359 ft²


















































































































