Single-storey home with large wrap-around garden and driveway, ideal for easy retirement..
Large wrap-around garden ideal for entertaining or gardening
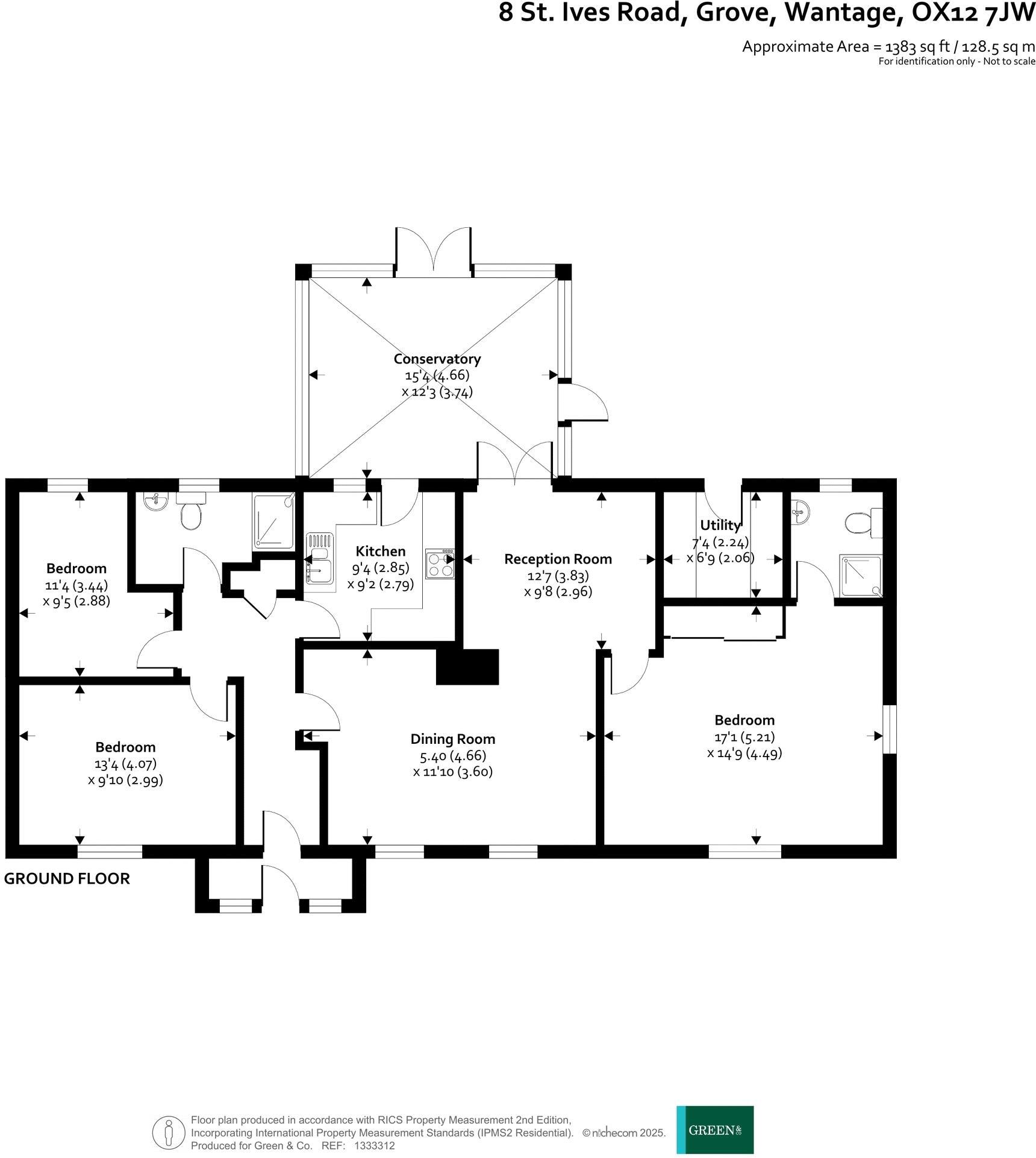
Set on a generous plot in Old Grove, this extended three-bedroom semi-detached bungalow offers comfortable single-storey living and excellent outdoor space. The large open-plan sitting/dining room flows to a fitted kitchen and a bright conservatory overlooking the wrap-around garden, perfect for relaxed afternoons or small-scale entertaining.
The master bedroom includes built-in wardrobes and an en-suite shower room; two further double bedrooms are served by a modern family shower room. Practical extras include ample driveway parking and a utility room accessed externally, useful for laundry and garden tasks but with external access only.
Positioned close to local shops, transport links and a mix of primary and secondary schools, the property suits downsizers seeking easy, low-rise living or families wanting roomy ground-floor accommodation. The frontage offers scope for further landscaping or additional parking if desired. Freehold tenure, low crime, fast broadband and excellent mobile signal add everyday convenience.
Viewings are recommended to appreciate the space and garden. Note the utility room’s external access and that one nearby primary school has a lower Ofsted rating, though other local schools are rated good or outstanding.
3 bedroom semi-detached bungalow for sale in Meadow Close, Wantage, OX12 — £370,000 • 3 bed • 1 bath • 872 ft²
2 bedroom detached bungalow for sale in Park Close, Didcot, OX11 — £400,000 • 2 bed • 2 bath • 995 ft²
3 bedroom chalet for sale in The Green, Grove, OX12 — £360,000 • 3 bed • 2 bath • 1119 ft²
2 bedroom bungalow for sale in Laurel Drive, Southmoor, Abingdon, Oxfordshire, OX13 — £325,000 • 2 bed • 1 bath • 743 ft²
3 bedroom detached bungalow for sale in Freeman Road, Didcot, OX11 — £485,000 • 3 bed • 1 bath • 1000 ft²
2 bedroom detached bungalow for sale in Abingdon, Oxfordshire, OX14 — £375,000 • 2 bed • 1 bath • 1223 ft²


























































































