Contemporary, low-maintenance three-bed ideal for first-time buyers and young families..
- Brand-new three-storey townhouse, chain free
- 1,138 sq ft internal area across three floors
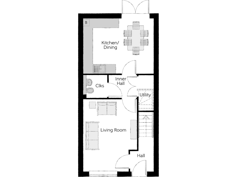
- Open-plan kitchen/diner with French doors to garden
- Principal bedroom with en suite and storage cupboard
- Covered by 10-year NHBC Buildmark warranty
- Estate management charge £360 per year
- Generally average to small room sizes (narrow footprint)
- Local broadband speeds reported as very slow
This three-bedroom, three-storey new-build townhouse (The Falkland) offers contemporary, low-maintenance living across 1,138 sq ft. The ground floor delivers a front living room, open-plan kitchen/dining opening through French doors to the rear garden, plus a handy utility and cloakroom. The top-floor principal bedroom benefits from an en suite and storage.
Finished by a 5-star HBF builder and covered by a 10-year NHBC Buildmark policy, the home is chain free and ready to move into. Its compact footprint across three levels makes efficient use of space for a first purchase or young family while external maintenance is minimal compared with older stock.
Be aware of a few practical points: internal room sizes are generally average to small due to the narrow townhouse layout, and broadband speeds in the area are reported as very slow. There is an annual estate management charge of £360 and council tax banding is yet to be confirmed. The plot is described as large for the development, but gardens are typical of new estates rather than expansive countryside grounds.
Overall this property suits first-time buyers or young families looking for a modern, low-maintenance home with good commuter links and NHBC-backed protection, provided the limited room sizes and local broadband speeds meet your needs.
4 bedroom semi-detached house for sale in Manchester Road,
Heywood,
OL10 2QD, OL10 — £369,995 • 4 bed • 1 bath • 1241 ft²
4 bedroom detached house for sale in Manchester Road,
Heywood,
OL10 2QD, OL10 — £452,995 • 4 bed • 1 bath • 1197 ft²
4 bedroom detached house for sale in Manchester Road,
Heywood,
OL10 2QD, OL10 — £449,995 • 4 bed • 1 bath • 1197 ft²
4 bedroom detached house for sale in Manchester Road,
Heywood,
OL10 2QD, OL10 — £452,995 • 4 bed • 1 bath • 1197 ft²
4 bedroom detached house for sale in Manchester Road,
Heywood,
OL10 2QD, OL10 — £449,995 • 4 bed • 1 bath • 1197 ft²
5 bedroom detached house for sale in Manchester Road,
Heywood,
OL10 2QD, OL10 — £499,995 • 5 bed • 1 bath • 1605 ft²










































