Chain‑free three-bed semi with large garden and garage — ideal for renovation buyers..
Chain free three-bedroom semi on a quiet corner plot with large wrap-around garden
Long driveway with off-street parking plus rear garage (up-and-over door)
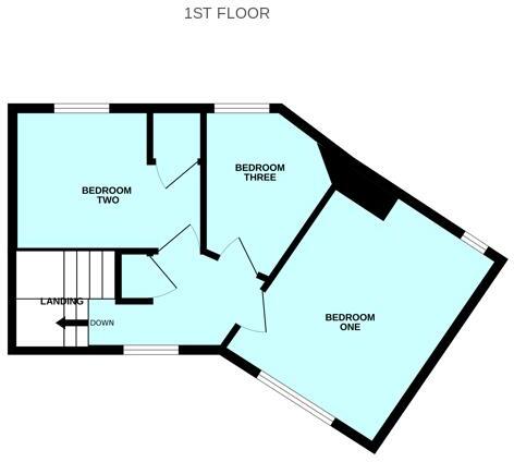
Compact living: c.787 sq ft; one ground-floor shower room only
Needs full modernisation throughout; dated kitchen, bathroom and finishes
Assumed cavity walls with no insulation — energy upgrades likely needed
Mains gas boiler and radiators present; double glazing installed (date unknown)
Central Ivybridge location near shops, amenities and highly rated schools
Freehold, low council tax band, no flood risk, fast broadband and excellent mobile signal
This three-bedroom semi-detached home in central Ivybridge sits on a quiet corner plot with a long driveway, garage and wrap‑around garden — a practical layout for family life. The lounge is dual aspect with a stone hearth, and the kitchen/diner opens to the outside, offering straightforward living spaces that will suit daily routines and entertaining.
The property is offered chain free and requires full modernisation throughout, making it well suited to buyers seeking a renovation project or investors targeting value-add opportunity. Key systems are present — mains gas boiler, radiators and uPVC double glazing — but walls are assumed to lack insulation and many fittings are dated, so budget for energy upgrades and interior refurbishment.
At about 787 sq ft with one ground-floor shower room and three bedrooms, the house is compact but sits on a large plot with extensive lawn, patio areas and mature boundaries. The location is central to local shops, schools (including highly rated local primaries) and transport links in Ivybridge, and the area has low crime, good broadband and excellent mobile signal.
Practical positives include freehold tenure, no flood risk and low council tax band. Material drawbacks are the need for modernisation, single bathroom for three bedrooms, assumed cavity walls without insulation, and uncertain dates for glazing and other fittings — plan for refurbishment costs when viewing.
3 bedroom semi-detached house for sale in Julian Road, Ivybridge, PL21 9BU, PL21 — £275,000 • 3 bed • 1 bath • 899 ft²
2 bedroom semi-detached house for sale in Fernbank Avenue, Ivybridge, Devon, PL21 — £210,000 • 2 bed • 1 bath • 595 ft²
3 bedroom semi-detached house for sale in Maton Close, Ivybridge, PL21 — £280,000 • 3 bed • 2 bath • 797 ft²
3 bedroom semi-detached house for sale in Pykes Down, Ivybridge, PL21 0BY, PL21 — £259,950 • 3 bed • 1 bath • 820 ft²
3 bedroom end of terrace house for sale in Bridge Park, Ivybridge, PL21 0AT, PL21 — £340,000 • 3 bed • 1 bath • 1407 ft²
3 bedroom semi-detached house for sale in Torre Close, Ivybridge, PL21 0BX, PL21 — £300,000 • 3 bed • 1 bath • 1197 ft²






















































