Secluded plot with countryside views, garage and abundant parking for family living.
Chain-free detached home on sizeable, private corner plot
Set on a substantial corner plot in highly desirable Tattenhall, this three-double-bedroom freehold home offers rare privacy and uninterrupted countryside views. The property is chain-free and combines an elegant interior — wooden flooring and plantation shutters — with exceptional outside space including a wraparound garden and expansive driveway for at least eight vehicles.
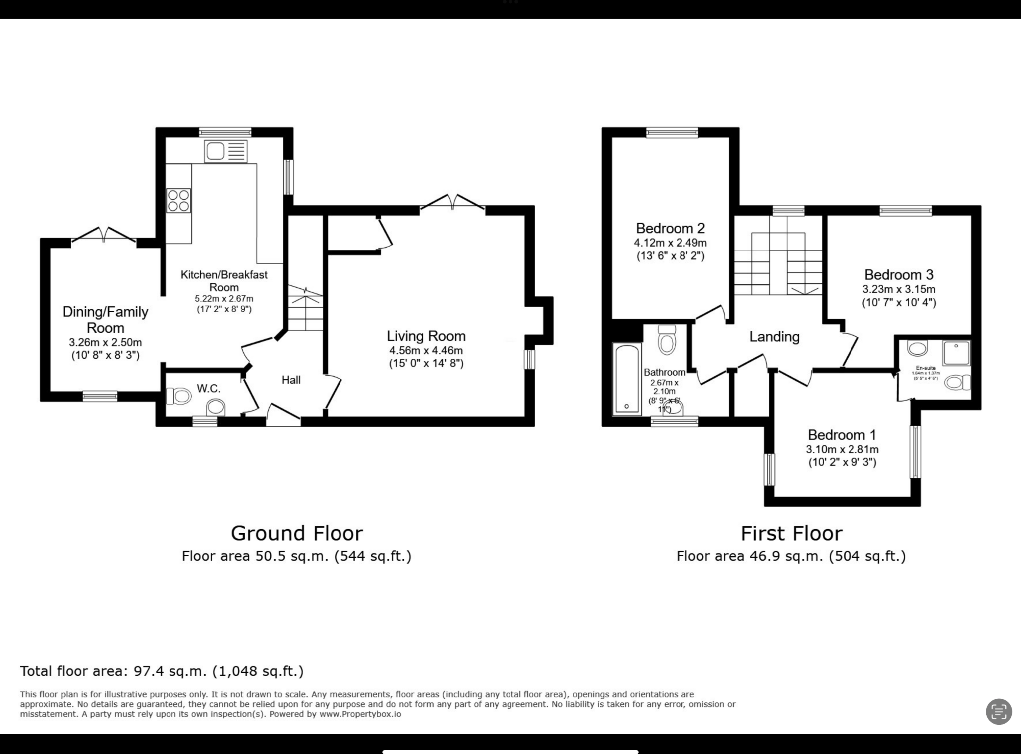
Ground-floor living is arranged for family life and entertaining. A warm lounge with feature fireplace and French doors opens to the garden; the adjoining dining area and well-equipped kitchen provide practical flow for everyday use. Upstairs all bedrooms are doubles, with the principal benefiting from an en-suite shower room and the rear rooms enjoying open-field views.
Outside space is the defining asset: secluded gardens with no properties to the rear, scope for landscaping or outbuildings (subject to planning), and a detached double garage with electric roller doors, power and lighting. The plot size and parking make the house especially convenient for families with multiple cars or regular visitors.
Practical details: the house measures approximately 1,048 sq ft — an average-sized detached home — and sits in a prospering countryside area close to local amenities and schools. Flood risk is nil and broadband and mobile signals are strong. The setting is semi-rural (hamlet/isolated dwelling), which delivers tranquillity but may mean fewer immediate transport options than urban locations.
3 bedroom detached house for sale in Rookery Drive, Tattenhall, CH3 — £425,000 • 3 bed • 1 bath • 1452 ft²
3 bedroom semi-detached house for sale in Hill Garth Road, Chester, CH3 — £270,000 • 3 bed • 2 bath • 955 ft²
4 bedroom bungalow for sale in Greenlands, Tattenhall, Chester, Cheshire, CH3 — £650,000 • 4 bed • 1 bath • 2760 ft²
2 bedroom semi-detached house for sale in Newall Close, Tattenhall, Cheshire, CH3 — £300,000 • 2 bed • 1 bath • 3500 ft²
5 bedroom bungalow for sale in Greenlands, Tattenhall, Chester., CH3 — £600,000 • 5 bed • 3 bath • 1896 ft²
4 bedroom detached house for sale in Covert Rise, Tattenhall, CH3 — £550,000 • 4 bed • 2 bath • 1601 ft²






















































































