**Standout Features:**
- Chain-free for a smooth transaction
- Character-filled Victorian semi-detached home
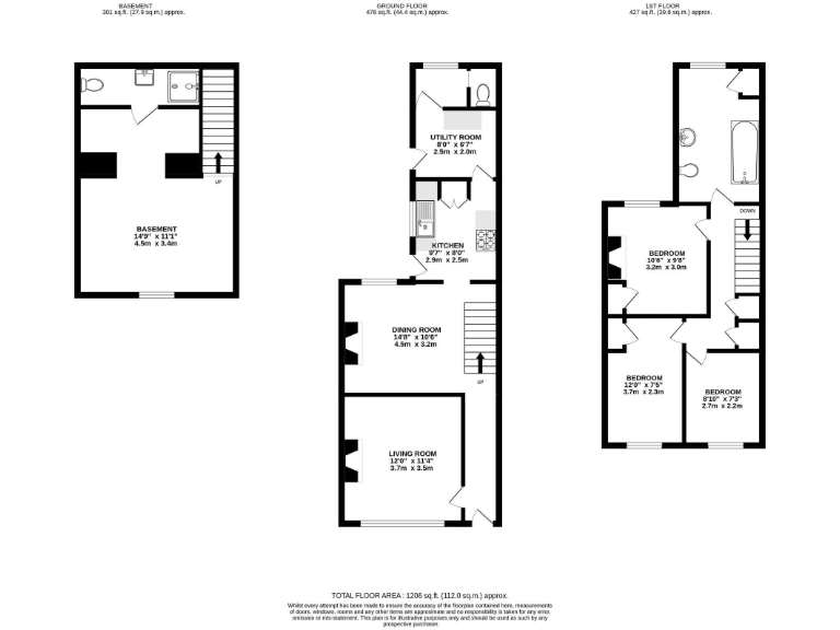
- Spacious basement with ensuite shower room—ideal for guests or a home office
- Attractive garden and easy on-road parking
- Walking distance to village shops and mainline station
- Low crime area with excellent mobile and broadband connectivity
- Close to good-rated primary and secondary schools
Nestled in the charming village of Stansted Mountfitchet, this delightful four-bedroom Victorian home is a perfect blend of character and modern convenience. From the welcoming entrance hall with original wood flooring to the cozy front lounge featuring an exposed brick fireplace, every corner exudes warmth and comfort. The shaker-style kitchen with its striking blue tones and butler sink flows seamlessly into the dining area, creating an inviting space perfect for family meals or entertaining guests. With a spacious basement offering a private shower room, it provides flexible options for a fourth bedroom or guest suite.
Step outside to enjoy a serene garden space where you can soak up the sun or even cultivate your own vegetable patch. This home is ideally situated just a short stroll from the mainline station and village amenities, making commutes and daily errands a breeze. With the potential for personalized renovations and a welcoming community atmosphere, this property is not just a house but a place to truly call home. Don’t miss out on the opportunity to make your mark in this lovely Essex village—schedule a viewing today!
4 bedroom semi-detached house for sale in Chapel Hill, Stansted Mountfitchet, Essex, CM24 — £500,000 • 4 bed • 2 bath • 1639 ft²
3 bedroom detached house for sale in Coltsfield, Stansted, CM24 — £652,000 • 3 bed • 2 bath • 1513 ft²
4 bedroom detached house for sale in High Lane, Stansted, Essex, CM24 — £650,000 • 4 bed • 1 bath • 1400 ft²
3 bedroom semi-detached house for sale in St. Johns Road, Stansted Mountfitchet, CM24 — £650,000 • 3 bed • 2 bath • 1996 ft²
4 bedroom house for sale in Recreation Ground, Stansted, CM24 — £1,000,000 • 4 bed • 3 bath • 2544 ft²
4 bedroom detached house for sale in High Lane, Stansted, Essex, CM24 — £600,000 • 4 bed • 2 bath • 1200 ft²


























































































































