New-build 3-bed end terrace with EV charging, underfloor heating and large garden in gated development.
New-build 3-bedroom end-of-terrace, approx. 1,004 sq ft
Air source heat pump and underfloor heating throughout
Electric vehicle charging point and private off-street parking
Good-sized private garden on a large plot
Gated development in village setting near Rochester and road links
Off-plan sale — certain finishes can be customised by buyer
Services connected but not tested; commission checks advised
Local area listed as deprived; confirm financing/resale implications
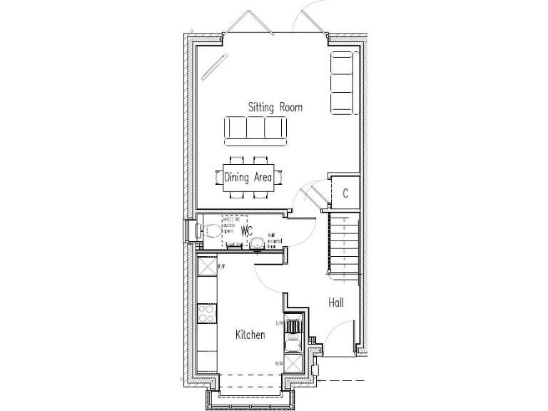
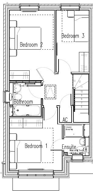
This three-bedroom end-of-terrace new-build sits in a gated development on Chattenden Lane, offering contemporary living with practical environmental features. The home includes an air-sourced heat pump, underfloor heating, and an electric vehicle charging point—good for lower running costs and modern convenience. The house is approx. 1,004 sq ft with a generous garden and private off-street parking on a large plot.
Buyers purchasing off-plan can customise certain finishes and minor aspects to suit taste, making it suitable for first-time buyers and families wanting a tailored finish. The layout is traditional and practical: a living room, kitchen/breakfast room, three bedrooms, ensuite and family bathroom. Measurements are by sonic tape and may vary.
Important practical points are stated plainly: the property is new build and services are connected but have not been tested. Tenure is not confirmed in the provided information. The local area is noted as deprived, which may affect long-term resale or financing in some cases. There are good nearby schooling options, and the development benefits from road links toward Rochester and the wider Kent routes.
Overall, this is a straightforward new three-bedroom home with modern energy features and a private garden, suited to those who want a low-maintenance property they can personalise. Viewings are by appointment; buyers should confirm service commissioning, tenure details and exact measurements during survey and legal checks.
3 bedroom semi-detached house for sale in Chattenden Lane, ME3 — £440,000 • 3 bed • 2 bath • 1004 ft²
3 bedroom end of terrace house for sale in Chattenden Lane, ME3 — £417,000 • 3 bed • 2 bath • 1023 ft²
4 bedroom detached house for sale in Chattenden Lane, ME3 — £550,000 • 4 bed • 2 bath • 1283 ft²
3 bedroom semi-detached house for sale in Chattenden Lane, ME3 — £430,000 • 3 bed • 2 bath • 1002 ft²
3 bedroom semi-detached house for sale in Chattenden Lane, ME3 — £430,000 • 3 bed • 2 bath • 1002 ft²
2 bedroom terraced house for sale in Chattenden Lane, ME3 — £335,000 • 2 bed • 2 bath • 863 ft²










































































