Large family home with attic bedroom and mountainside views, ready to move into.
Recently refurbished throughout and vacant possession (no chain)
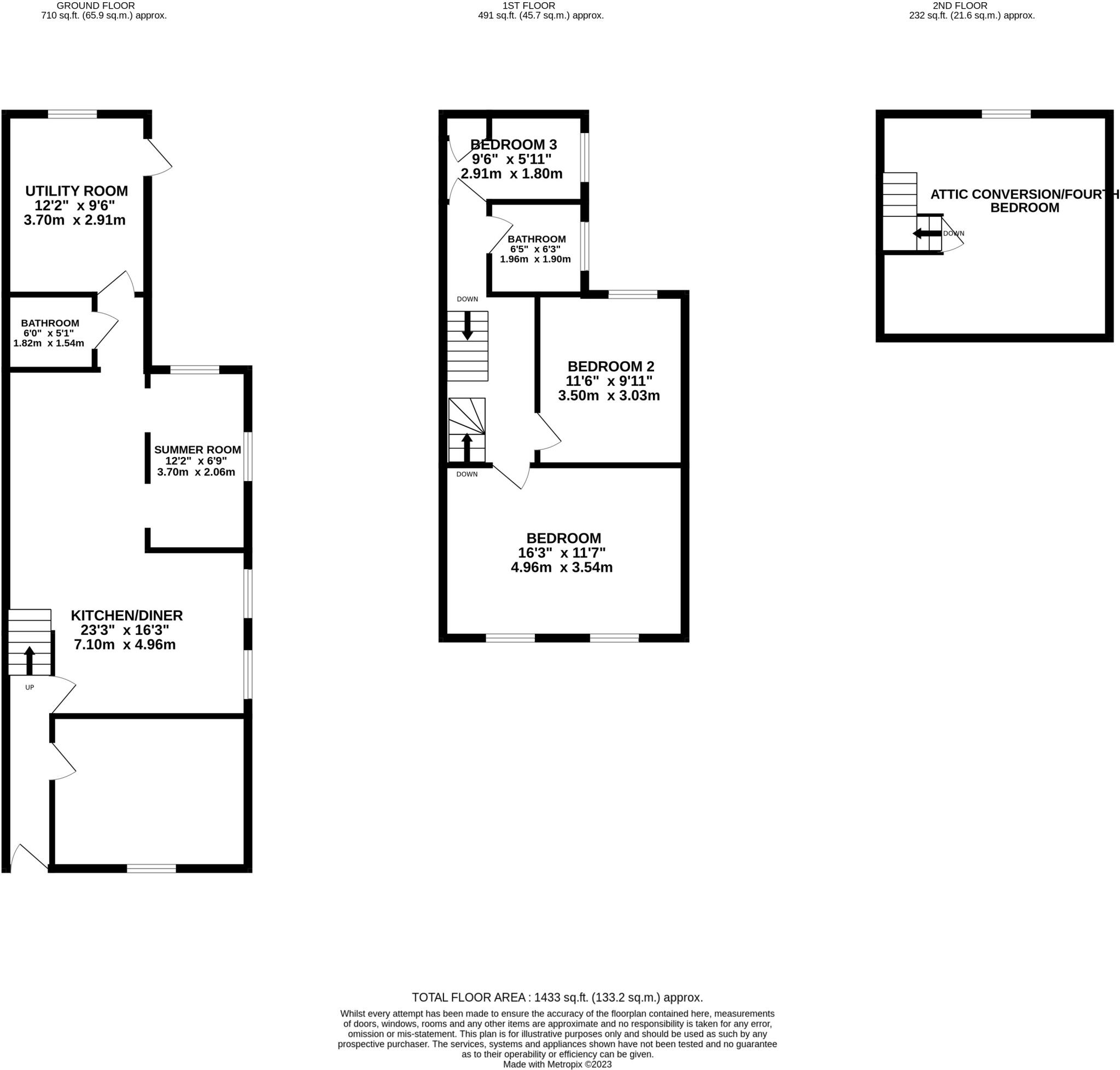
This substantial end-of-terrace offers generous living space across 1,433 sq ft, recently refurbished throughout and available with no onward chain. The house includes three main bedrooms plus an attic conversion used as a fourth bedroom, two bathrooms, a rear extension creating a utility and summer room, and a new combination boiler. Mountainside views and a position close to the town centre make it a practical family base with good transport access to Cardiff via nearby A465 and M4 links.
The property has immediate practical benefits — double glazing installed after 2002, mains gas central heating with radiators, and a sizeable footprint with potential to develop the partially demolished garage and rear area. The neutral contemporary kitchen and bright living rooms give a move-in-ready feel while still allowing scope for personalising finishes or adding value through further improvements.
Buyers should note measurable drawbacks: the stone-built walls are assumed to have no insulation, contributing to an EPC rating of E, and the area has higher-than-average crime and very deprived local indicators. The plot is small, council tax is above average, and online broadband speeds are only average. These factors may affect running costs and resale considerations.
Overall this family-sized, characterful terrace presents immediate occupancy or rental potential alongside clear renovation opportunities to improve energy performance and outdoor space. It suits a buyer seeking a large home with scope to add value and enjoy scenic views near town amenities and transport links.
3 bedroom terraced house for sale in Glandwr Street, Abertillery, NP13 — £70,000 • 3 bed • 1 bath • 926 ft²
4 bedroom terraced house for sale in Brynawel Terrace, Abertillery, NP13 — £155,000 • 4 bed • 1 bath
2 bedroom terraced house for sale in Oxford Street, Abertillery, Blaenau Gwent, NP13 1QQ, NP13 — £80,000 • 2 bed • 1 bath
3 bedroom terraced house for sale in Clynmawr Street, Abertillery, Gwent, NP13 — £144,950 • 3 bed • 1 bath • 1114 ft²
2 bedroom end of terrace house for sale in Evelyn Street, Abertillery, Gwent, Blaenau Gwent, NP13 — £139,995 • 2 bed • 1 bath • 775 ft²
3 bedroom terraced house for sale in Rhiw Parc Road, Abertillery, NP13 — £160,000 • 3 bed • 1 bath • 776 ft²






















































































