**Standout Features:**
- Expansive interior of approximately 4,338 sq ft across multiple floors
- Contemporary design with large glass elements for natural light
- Generous open-plan reception/kitchen/dining room
- Master suite with a private balcony offering skyline views
- Separate 1-bedroom self-contained annexe ideal for guests or rental
- Landscaped rear garden perfect for family activities
- Energy-efficient with underfloor heating, air conditioning, and solar panels
- Off-street parking and integral garage
**Downsides:**
- Limited insulation in walls (assumed)
- High council tax rates
**Summary Description:**
This luxurious and expansive family home in Wimbledon merges stylish design with functional spaces, perfect for modern living. The ground floor boasts a bright open-plan reception room with floor-to-ceiling glass doors that seamlessly connect to an elegantly landscaped garden, ideal for entertaining and family leisure. Featuring a state-of-the-art kitchen with a central island and integrated appliances, the property enhances daily living and entertaining experiences.
The upper levels house several well-appointed bedrooms, including a stunning master suite with a private balcony showcasing impressive views towards the London skyline. Additionally, a separate one-bedroom annexe provides excellent flexibility for guests, a nanny, or potential rental income. Eco-conscious buyers will appreciate the underfloor heating, air conditioning, and solar panels, all contributing to the home's energy efficiency.
Located within walking distance to Wimbledon town center, local shops, top-rated schools, and recreational facilities, this property is an exceptional opportunity for families seeking comfort, style, and community in a prestigious area. Don’t miss your chance to secure such a unique residence in one of London's most desirable neighborhoods!
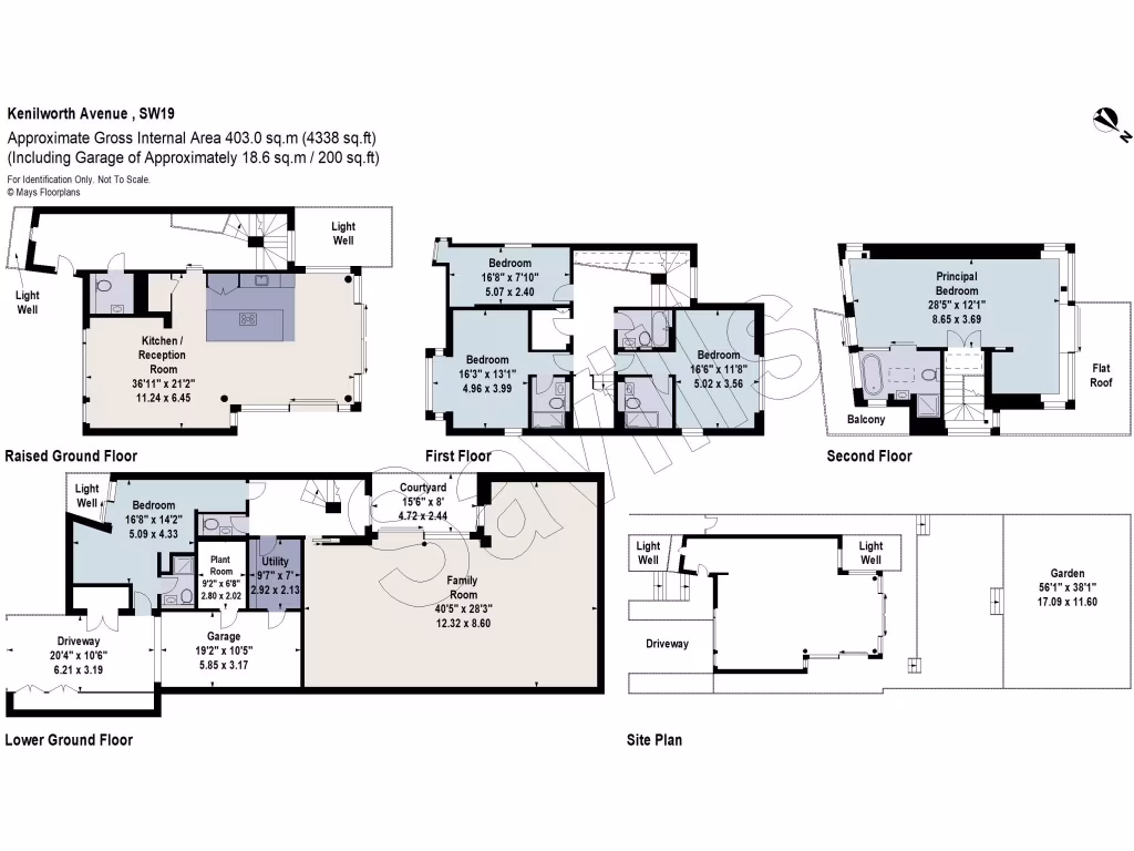
5 bedroom detached house for sale in Kenilworth Avenue, Wimbledon, London, SW19 — £3,500,000 • 5 bed • 5 bath • 4338 ft²
6 bedroom semi-detached house for sale in Holland Avenue, Wimbledon, London, SW20 — £1,900,000 • 6 bed • 4 bath • 2994 ft²
5 bedroom semi-detached house for sale in Wimbledon Hill Road, Wimbledon, London, SW19 — £2,750,000 • 5 bed • 3 bath • 2749 ft²
3 bedroom detached house for sale in Pelham Road, Wimbledon, SW19 — £1,395,000 • 3 bed • 2 bath • 1653 ft²
4 bedroom terraced house for sale in Home Park Road, Wimbledon, London, SW19 — £1,825,000 • 4 bed • 2 bath • 2229 ft²
5 bedroom terraced house for sale in Effra Road, London, SW19 — £1,650,000 • 5 bed • 3 bath • 1727 ft²






































































