**Standout Features:**
- **Building plot size:** 0.31 acres
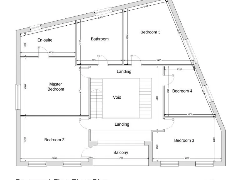
- **Planning permission:** Approved for a luxurious five-bedroom detached home (Planning Reference 25-00704-FUL)
- **Proposed living space:** Approximately 4,359 sq ft
- **Location:** Highly sought-after Darras Hall, close to top-rated schools and amenities
- **No onward chain:** Immediate availability for development
This exceptional building plot in Darras Hall presents a rare opportunity to create your dream home with plans already in place for a stunning five-bedroom detached house. Set on 0.31 acres, the proposed design highlights modern living with a grand reception, open-plan kitchen and lounge, five spacious bedrooms, and luxurious en-suite options. Imagine enjoying the sunlight filtering through large windows that illuminate every corner of this expansive space.
With planning permission secured and no onward chain, this property is ideal for families and professionals looking to immerse themselves in an affluent community known for its excellent schools and amenities. The potential for a landscaped garden, driveway, and double garage adds significant value, aligning perfectly with a vision for a comfortable and secure lifestyle. Don’t miss this unique development opportunity in a prime location; seize the chance to turn your vision into reality!
5 bedroom detached house for sale in Eastern Way, Darras Hall, NE20 — £1,100,000 • 5 bed • 2 bath • 3520 ft²
5 bedroom detached house for sale in The Rise, Darras Hall, Ponteland, Newcastle Upon Tyne, NE20 — £1,500,000 • 5 bed • 3 bath • 3444 ft²
5 bedroom detached house for sale in Edge Hill, Darras Hall , NE20 — £950,000 • 5 bed • 3 bath • 1970 ft²
5 bedroom detached house for sale in Darras Road, Darras Hall, NE20 — £1,850,000 • 5 bed • 3 bath • 3938 ft²
5 bedroom detached house for sale in Errington Road, Darras Hall, NE20 — £875,000 • 5 bed • 3 bath • 2577 ft²
4 bedroom detached house for sale in Darras Road, Ponteland, Newcastle upon Tyne, Northumberland, NE20 — £850,000 • 4 bed • 3 bath • 958 ft²














































