Affordable coastal flat with parking and long lease, ideal for investors or a compact pied-à-terre.
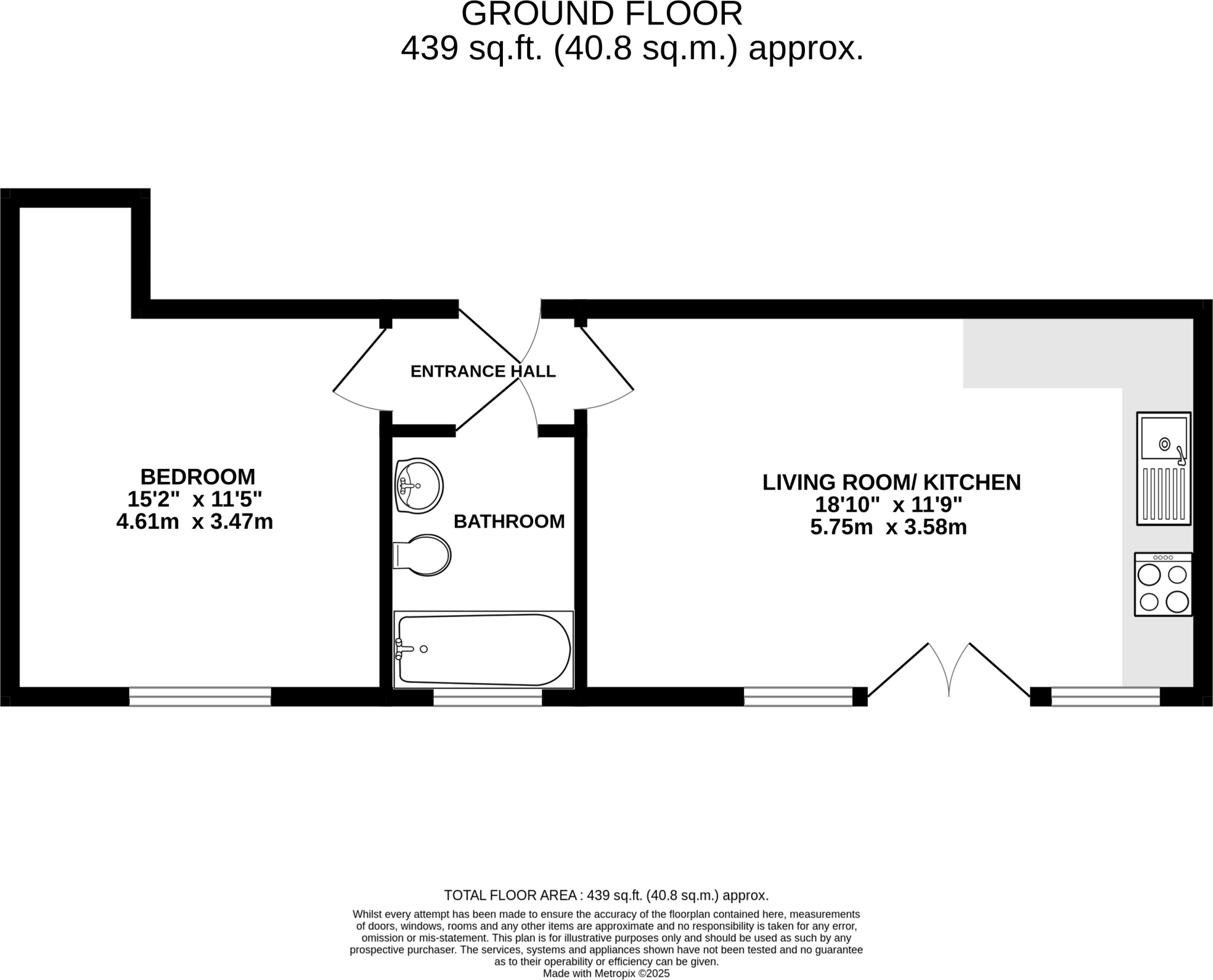
- Ground floor one-bedroom apartment, open-plan layout
- Walking distance to the beach and 0.3 miles to station
- Secure gated development with allocated parking space
- Long lease: 999 years from 2006 (c.980 years remaining)
- EPC rating C; mains gas boiler and radiators
- Small overall size (approx. 439 sq ft) — compact accommodation
- Sold at online auction; admin fee £1,200 and buyer’s premium £1,000
- Local area: high crime and very high deprivation — consider rental risk
A compact one-bedroom ground floor flat in a secure gated development, just a short walk from Margate beach and 0.3 miles from the railway station with links to London. The open-plan living room/kitchen, one bedroom and bathroom sit within a development built in the mid-2000s and benefit from an allocated parking space and communal gardens. The property has an EPC rating of C and mains gas central heating.
This is offered for sale by online auction with a guide price of £90,000. Buyers should budget for an administration fee of £1,200 (inc VAT) and a buyer’s premium of £1,000 (inc VAT) payable on exchange, and review the legal pack for any disbursements. The lease is long (999 years from December 2006 — c.980 years remaining).
Suitable for buy-to-let investors seeking a seafront rental or for a first-time buyer/owner-occupier wanting an affordable pied-à-terre, the flat is small and will suit someone looking for a low-maintenance base or a short renovation project. Note the surrounding area scores high for crime and very high for deprivation, so viewings should consider local context and rental demand accordingly.
2 bedroom flat for sale in Flat 1, 80 Eastern Esplanade, Cliftonville, Margate, Kent, CT9 2JP, CT9 — £90,000 • 2 bed • 1 bath • 1190 ft²
2 bedroom flat for sale in Flat 4B Arlington House, All Saints Avenue, Margate, Kent, CT9 1XP, CT9 — £35,000 • 2 bed • 1 bath • 476 ft²
2 bedroom flat for sale in 14(C) Arlington House, All Saints Avenue, Margate, CT9 1XS, CT9 — £30,000 • 2 bed • 1 bath • 463 ft²
1 bedroom flat for sale in Dane Hill, Margate, CT9 — £110,000 • 1 bed • 1 bath • 3296 ft²
2 bedroom flat for sale in Athelstan Road, Cliftonville, Margate, Kent, CT9 — £120,000 • 2 bed • 1 bath • 517 ft²
1 bedroom flat for sale in Northdown Road, Margate, Kent, CT9 — £80,000 • 1 bed • 1 bath • 369 ft²


































