NR21 9PF - 3 bed spacious village loft in Front Street, NR21 9PF

View on Property Piper

3 bedroom semi-detached house for sale in Front Street, South Creake, NR21

Summary - 25 Front Street, South Creake NR21 9PF

3 bed 2 bath Semi-Detached

Lock-up-and-leave character home with elevator and low-maintenance courtyard.
45ft vaulted open-plan living area with rooflights and 12kW wood-burning stove
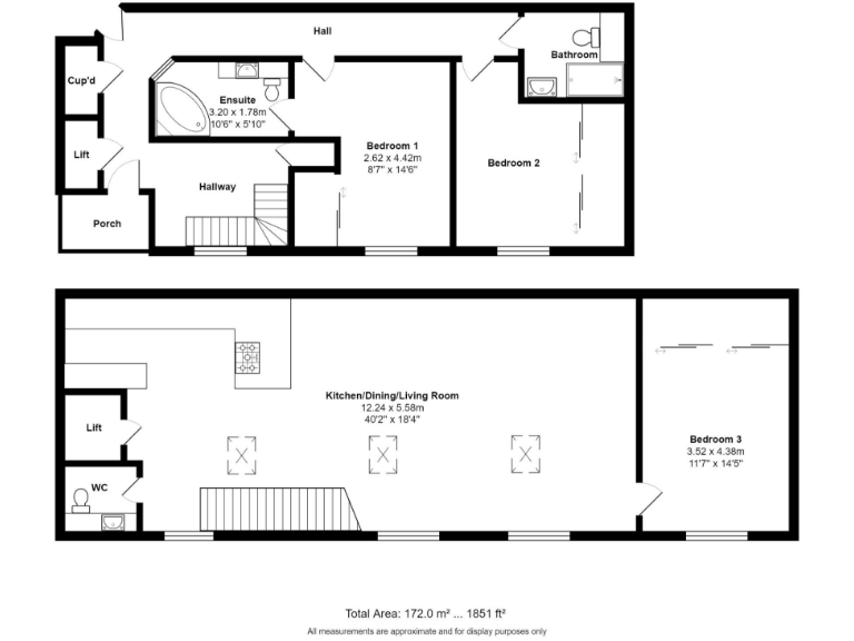
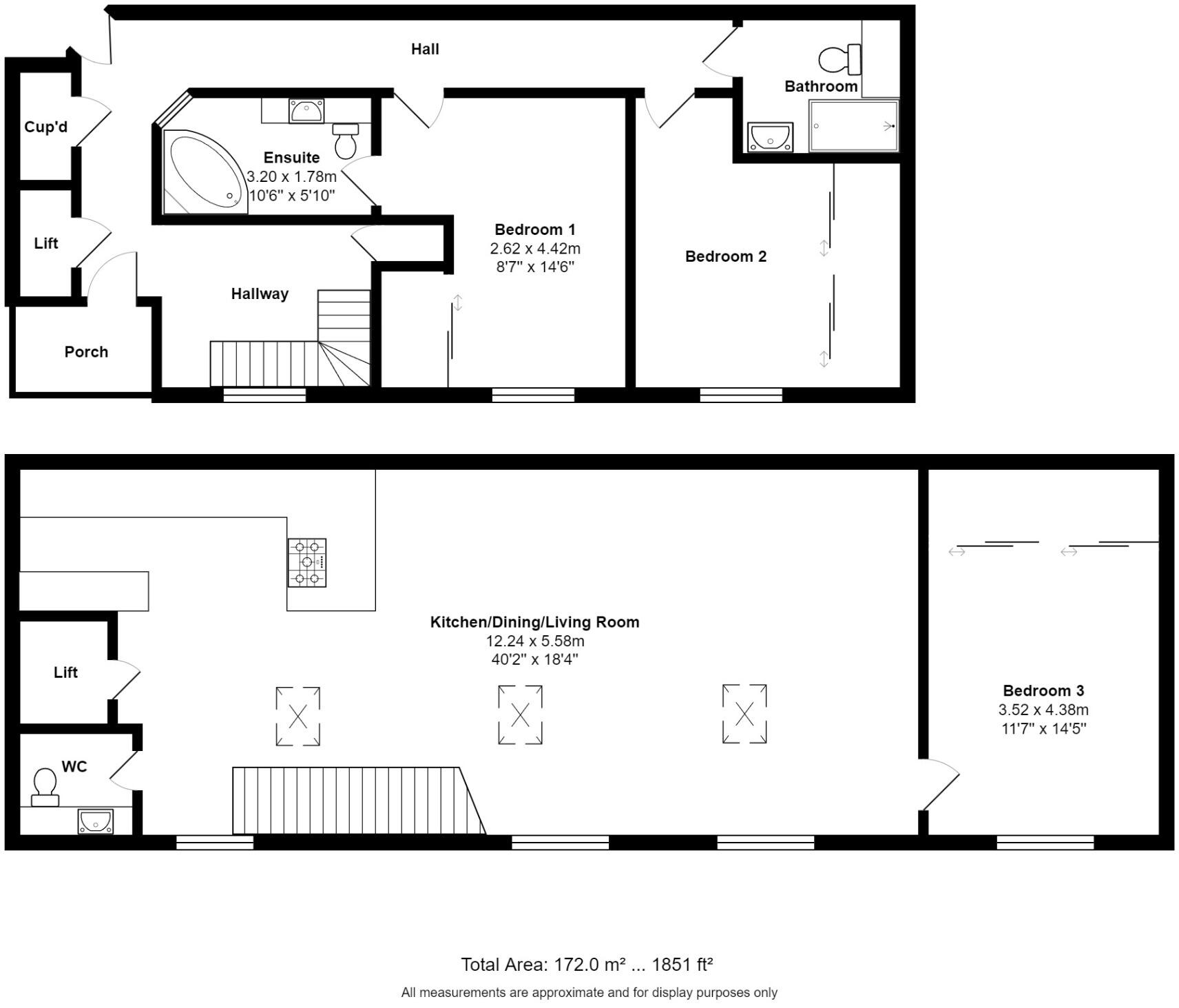
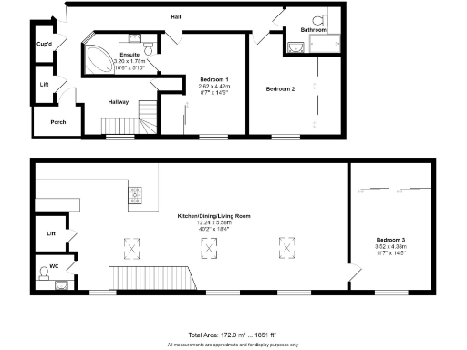
This striking three-bedroom conversion occupies a central spot in South Creake and offers loft-style, apartment living across generous floors. The showpiece is a 45ft open-plan living area with vaulted ceiling, trio of rooflights and a 12kW wood-burning stove — ideal for buyers seeking easy, stylish living without a large garden to maintain. An internal serviced elevator links the floors, making moving between levels straightforward.

The property has been extensively refurbished to a high standard with solid oak flooring, integrated kitchen appliances and built-in wardrobes in every bedroom. The enclosed courtyard uses artificial grass for a very low-maintenance outdoor space and there is on-street parking to the front. The home is offered chain free and measures about 1,851 sq ft, making it unusually large for a village centre property.

Practical considerations: heating is by electric room heaters rather than gas, which may increase running costs; the home sits over a flying freehold archway; EPC and council tax band are currently to be confirmed; and services/appliances have not been independently tested. The small courtyard and street parking suit buyers prioritising convenience and low upkeep rather than extensive outdoor space.

This property will suit downsizers, second-home buyers or anyone wanting a lock-up-and-leave Norfolk base close to local amenities and countryside walks. Its combination of character origins, contemporary finishes and unusual layout makes it a memorable and flexible home — subject to the usual pre-purchase checks and confirmation of running costs.

Property Details

Image Descriptions

Floorplan Description

Rooms

Textual Property Features

Target Audience

AI Tags

Detected Visual Features

EPC Details

Nearby Schools

Nearest Bars And Restaurants

,,,,}

Nearest General Shops

,,}

Nearest Grocery shops

,,}

Nearest Supermarkets

,,}

Nearest Religious buildings

,,}

Nearest Medical buildings

,,,}

Nearest Leisure Facilities

,,,,}

Nearest Tourist attractions

,,}

Nearest Train stations

,,,,}

Nearest Bus stations and stops

,,,,}

Nearest Hotels

,,}

Tags

Local Market Stats

AirBnB Data

Similar Properties

Meta

High Res Images

Compatible Images

Low res Images

Thumbnails

Raw Images

High Res Floorplan Images

Compatible Floorplan Images

Low res Floorplan Images

FloorplanImages Thumbnail

Raw Floorplan Images