Perfect for growing families seeking generous rooms and private outdoor space.
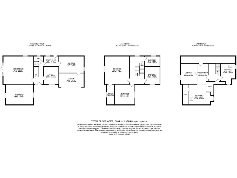
Five double bedrooms over three floors, two en-suites and principal suite
Tucked at the end of a private driveway shared with just one neighbour, this chain-free detached property offers flexible living across three well-planned floors. The contemporary kitchen/diner with central island and French doors creates a natural hub for family meals and weekend entertaining, while a separate lounge with fresh carpets and a stylish electric fire provides a comfortable retreat.
Five double bedrooms include a spacious principal suite and two en-suites, plus a second-floor suite with dressing room — plenty of room for children, guests, and home working. The converted garage currently used as a bar (“Rabbit & Fiddle”) adds social space, while the retained front garage section with electric door gives options for storage or reversion to full garage use.
Outside, the lawned rear garden, sunny patios and a south-facing side patio (hot tub included) deliver private outdoor space for gatherings and relaxation. Practical extras include a utility room, downstairs WC, off-street parking for two, gas central heating with underfloor heating in parts, double glazing and a modern build standard (post-2012).
Note the property attracts higher council tax and sits in a very affluent area; buyers should view the garage conversion details if intending resale or reconfiguration. Overall this is a stylish, substantial family residence in a sought-after Shavington location, ready to move into with scope to personalise further.
5 bedroom detached house for sale in Huntersfield, Shavington, Crewe, CW2 — £415,000 • 5 bed • 3 bath • 1475 ft²
4 bedroom detached house for sale in Richard Gilbert Drive, Shavington, CW2 — £390,000 • 4 bed • 2 bath • 1292 ft²
3 bedroom detached house for sale in Marshfern Place, Shavington, CW2 — £300,000 • 3 bed • 2 bath • 990 ft²
4 bedroom detached house for sale in Williams Drive, Shavington, CW2 — £330,000 • 4 bed • 2 bath • 1023 ft²
4 bedroom detached house for sale in Broomhall Drive, Shavington, Crewe, CW2 — £320,000 • 4 bed • 2 bath • 1257 ft²
5 bedroom detached house for sale in Huntersfield, Shavington, Crewe, CW2 — £278,000 • 5 bed • 3 bath • 1475 ft²






















































































































