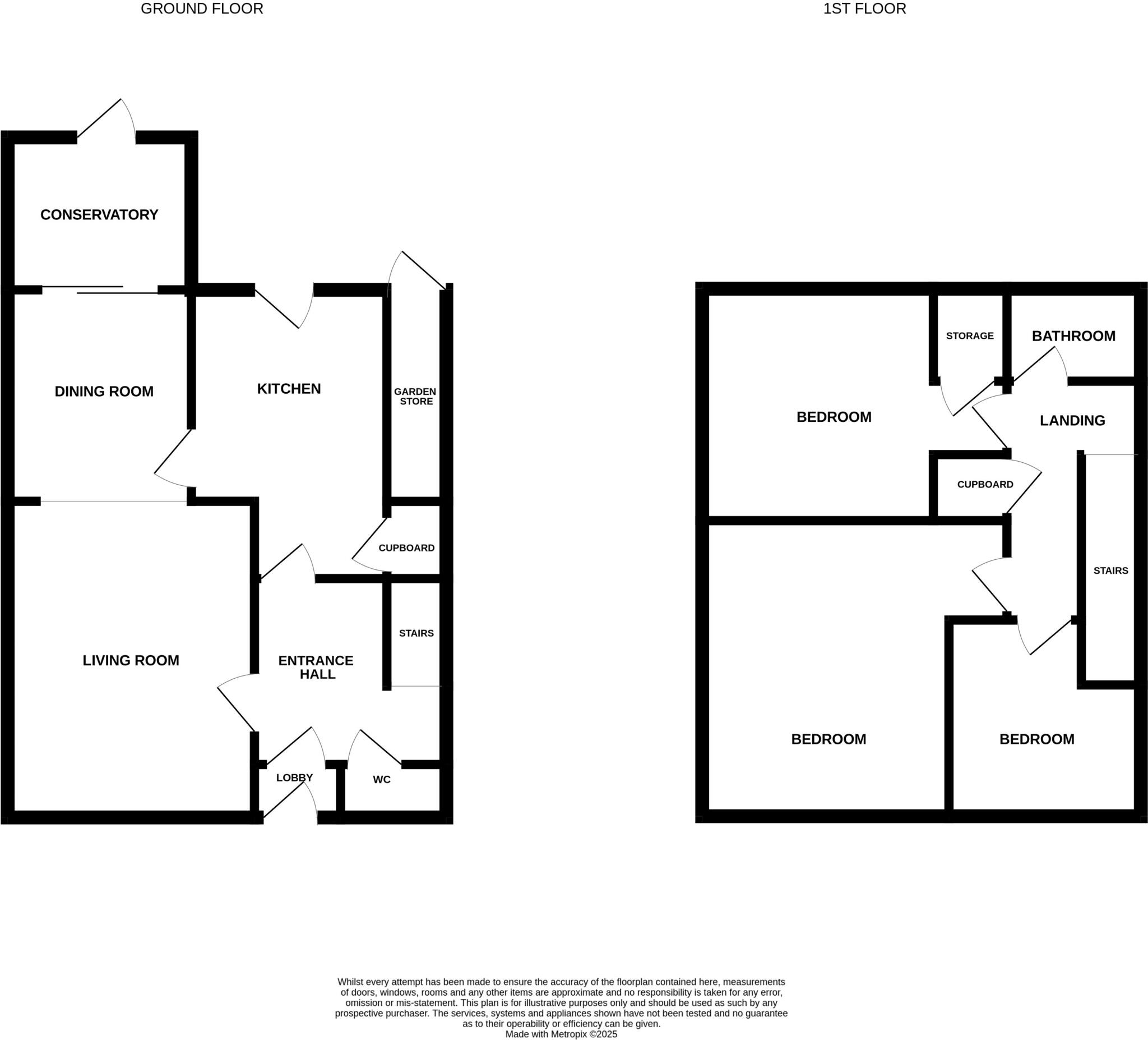
**Standout Features:**
- 3 Bedrooms, 1 Shower Room
- Freehold, Chain-Free Sale
- Conservatory facing west onto a rear garden
- Located at the end of a cul-de-sac adjoining school playing fields
- Well-planned layout with gas heating and double glazing
- Council Tax Band A, making it an affordable option
- Nearby schools with good Ofsted ratings
- Excellent mobile signal and fast broadband
**Potential Downsides:**
- Requires modernization and updates throughout
- Average crime rate in the area
- Smaller property size (688 sq. ft.)
This charming mid-20th century terraced house is a perfect opportunity for young families or first-time buyers seeking a cozy home with excellent amenities right on the doorstep. The freehold property features three spacious bedrooms and a bright living-dining area that flows seamlessly into a conservatory overlooking an enclosed west-facing garden—ideal for relaxing outdoors. Nestled at the end of a cul-de-sac and bordered by school playing fields, it offers a tranquil setting while remaining close to village shops and essential amenities.
Although it requires some modernization, this property boasts solid foundations, with a stylish layout, gas central heating, and double-glazed windows providing comfort and efficiency. With council tax rated very cheaply, it represents an affordable choice in a deprived area, making it attractive for first-time buyers and investors alike. Don't miss out on this opportunity—properties in this sought-after location rarely last long!
3 bedroom terraced house for sale in Longridge Way, Beacon Hill Glade, Cramlington, NE23 — £139,950 • 3 bed • 1 bath • 684 ft²
3 bedroom terraced house for sale in Cateran Way, Collingwood Grange, Cramlington, NE23 — £165,000 • 3 bed • 1 bath • 786 ft²
3 bedroom semi-detached house for sale in Whitelaw Place, Collingwood Chase, Cramlington, NE23 — £210,000 • 3 bed • 1 bath • 1002 ft²
3 bedroom semi-detached house for sale in Megstone Avenue, Whitelea Chase, Cramlington, NE23 — £199,950 • 3 bed • 1 bath • 699 ft²
3 bedroom semi-detached house for sale in Cambo Drive, Cramlington, NE23 — £165,950 • 3 bed • 1 bath • 521 ft²
3 bedroom terraced house for sale in Avebury Place, Cramlington, Northumberland, NE23 2UP, NE23 — £120,000 • 3 bed • 1 bath • 928 ft²


















































