**Key Features:**
- Recently refurbished, modern detached bungalow
- Spacious layout with open-plan living
- 3 well-proportioned bedrooms (1 en-suite)
- Set on approximately 3.1 acres of parkland grounds
- Detached, insulated studio for guests or office use
- Chain-free sale with potential for further customization
- Tranquil rural setting with ample outdoor space and privacy
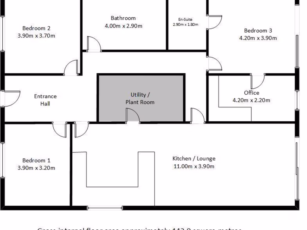
Welcome to Garden Cottage, a stylishly renovated single-storey detached bungalow nestled within approximately 3.1 acres of beautifully maintained parkland grounds. This unique property features a modern interior characterized by large open-plan living areas that fill the home with natural light, thanks to its striking glass windows and vaulted ceilings. Offering three spacious bedrooms, with one en-suite, plus a family bathroom and a versatile dressing room/office, this home is ideal for families seeking comfort and functionality.
Outside, the expansive garden is enveloped by mature trees, providing both privacy and endless opportunities for gardening and recreation. A fully insulated detached studio complements the outdoor space, perfect for guests or as a home office. Though the kitchen, utility room, and bathrooms remain unfinished, buyers have the opportunity to customize these spaces, potentially influencing the final sale price through negotiation.
This property not only promises tranquility in an affluent community but also benefits from excellent commuting links to central London and proximity to local amenities and schools, positioning it as a desirable choice for families and investors alike. Don’t miss the chance to make this exceptional home your own—properties of this caliber in such a prime location are rare and sell quickly.
3 bedroom bungalow for sale in Journeys End, Haxted Road, Edenbridge, Kent, TN8 — £650,000 • 3 bed • 1 bath • 1146 ft²
3 bedroom detached house for sale in Roman Road, Marsh Green, Edenbridge, TN8 5PN, TN8 — £950,000 • 3 bed • 2 bath • 1731 ft²
4 bedroom bungalow for sale in Lakeside Close, Bough Beech, Edenbridge, Kent, TN8 — £845,000 • 4 bed • 2 bath • 1212 ft²
4 bedroom detached house for sale in Roodlands Lane, Four Elms, Edenbridge, TN8 — £1,500,000 • 4 bed • 2 bath • 3117 ft²
4 bedroom detached house for sale in Edenbridge, Kent, TN8 — £795,000 • 4 bed • 3 bath • 1728 ft²
3 bedroom house for sale in East Hall Road, Orpington, BR5 — £750,000 • 3 bed • 1 bath • 1882 ft²


























































