Characterful family semi near Doncaster centre with driveway and garage..
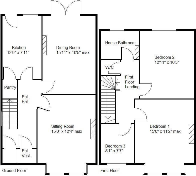
- Traditional 1930s double-bay semi with many original period features
- Two large doubles and a good third bedroom (family layout)
- Modern shaker-style kitchen and Victorian-style bathroom
- Long driveway for 2–3 cars plus detached single garage
- Small, enclosed rear garden with patio and lawn
- Solid brick walls likely uninsulated — energy upgrade opportunity
- High local crime rate to consider when purchasing
- Freehold, mains gas heating, ultra-fast broadband available
This is a well-presented 1930s double-bay semi-detached house offering comfortable, characterful living a short distance from Doncaster city centre. Period features — bay windows, cornicing, original balustrade and cast-iron fireplaces — sit alongside practical modern upgrades such as a shaker-style kitchen, a recently fitted bathroom and majority PVC double glazing. The layout suits a small family: two generous double bedrooms, a good single third bedroom, sitting and dining rooms, plus useful storage including a pantry and loft access.
Outdoor space is compact but functional. A forecourted front, long driveway with space for 2–3 cars and a detached single garage give rare urban parking convenience. The enclosed rear garden has a paved patio and lawn suitable for children or low-maintenance planting. Broadband and mobile coverage are excellent, and the property is freehold with mains gas central heating and a relatively low council tax band.
Buyers should note a few material points: the house sits in a higher-crime area and the plot is modest compared with suburban gardens. Walls are likely solid brick with no built-in insulation (typical for the period) — opportunity for insulation improvements and loft works. There is a single family bathroom plus a separate ground-floor WC; the boiler age is unspecified. Overall this home is ready to move into but also offers scope for energy upgrades or cosmetic modernisation to add value.
This property will appeal to couples or small families seeking a period home near Doncaster amenities, and to investors wanting a well-located rental with strong connectivity. Viewings will show the balance of original charm and sensible modernisation in a convenient, city-edge location.
3 bedroom semi-detached house for sale in Manor Drive, Bennettthorpe, Doncaster, DN2 — £200,000 • 3 bed • 1 bath • 842 ft²
3 bedroom semi-detached house for sale in Bramworth Road, Old Hexthorpe, Doncaster, DN4 — £160,000 • 3 bed • 1 bath • 1187 ft²
3 bedroom semi-detached house for sale in Manor Drive , Bennetthorpe, Doncaster, DN2 — £210,000 • 3 bed • 1 bath • 1217 ft²
3 bedroom semi-detached house for sale in Oversley Road, Wheatley, Doncaster, DN2 — £172,000 • 3 bed • 1 bath • 785 ft²
3 bedroom semi-detached house for sale in Arklow Road, Intake, Doncaster, DN2 — £170,000 • 3 bed • 1 bath • 708 ft²
3 bedroom semi-detached house for sale in Firbeck Road, Bennetthorpe, Doncaster, DN4 — £190,000 • 3 bed • 1 bath • 1206 ft²






















































