**Standout Features:**
- Chain-free property in a stunning coastal location
- Uninterrupted sea views with private balconies in each upstairs bedroom
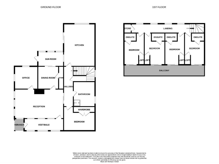
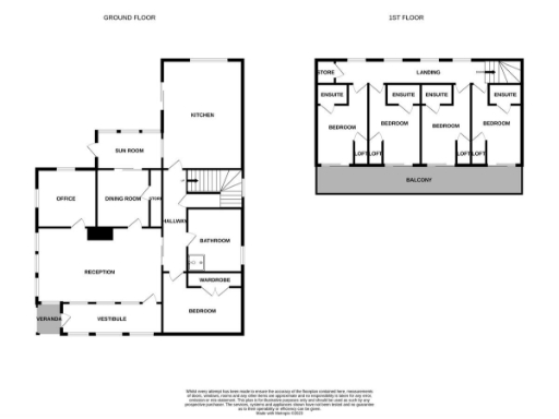
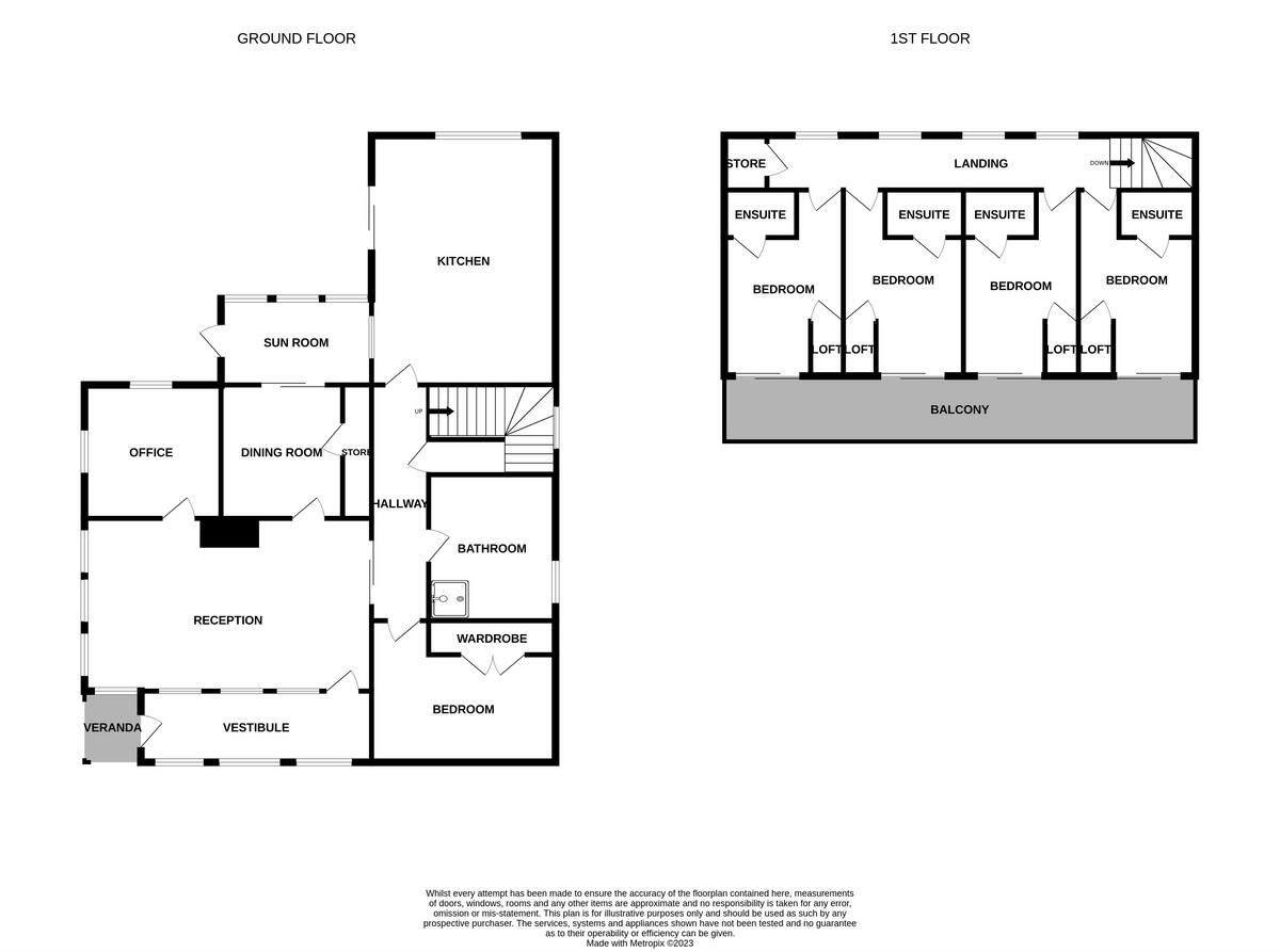
- Five spacious bedrooms, all with en suite bathrooms
- Generous living space including a dedicated office and large kitchen
- West-facing garden, perfect for evening relaxation
- Triple garage and ample driveway space
- Quiet village setting with local amenities and scenic walks
- Great investment potential for families or holiday lets
Discover your seaside sanctuary in the beautiful village of Scratby with this remarkable 5-bedroom detached home. Spanning 1,927 sq. ft., this contemporary coastal retreat boasts breathtaking sea views and impressive outdoor spaces, including private balconies accessible from each upstairs bedroom. The flexible downstairs layout features a large reception room, a dedicated office, and a guest bedroom, making it ideal for families or multi-generational living.
Enjoy the tranquility of a west-facing garden while soaking in the coastal breeze. With a triple garage that offers ample parking or conversion possibilities, this home invites endless potential for customization and expansion.
Located just steps from the picturesque Norfolk beaches, this property is not only a spectacular personal escape but also an exceptional investment opportunity for holiday rentals in a high-demand area. Scratby provides a perfect blend of peaceful village living with close proximity to amenities, while local schools have strong Ofsted ratings.
Act swiftly—properties like this, with a captivating lifestyle and remarkable views, rarely come to the market! Schedule your viewing today to fully appreciate this unique offering.
3 bedroom detached bungalow for sale in The Esplanade, Scratby, NR29 — £325,000 • 3 bed • 1 bath • 1591 ft²
4 bedroom house for sale in The Esplanade, Scratby, NR29 — £390,000 • 4 bed • 2 bath • 1936 ft²
3 bedroom detached bungalow for sale in Little Scratby Crescent, Scratby, NR29 — £160,000 • 3 bed • 1 bath • 571 ft²
2 bedroom chalet for sale in California Avenue, Scratby, Great Yarmouth, NR29 — £240,000 • 2 bed • 2 bath • 1266 ft²
3 bedroom bungalow for sale in California Avenue, Scratby, Great Yarmouth, Norfolk, NR29 — £280,000 • 3 bed • 1 bath • 1073 ft²
4 bedroom link detached house for sale in Scratby Road, Scratby, NR29 — £375,000 • 4 bed • 2 bath • 2168 ft²






























































































