Low-maintenance assisted living with balcony, communal facilities and on-site staff.
One-bedroom retirement apartment with walk-in wardrobe
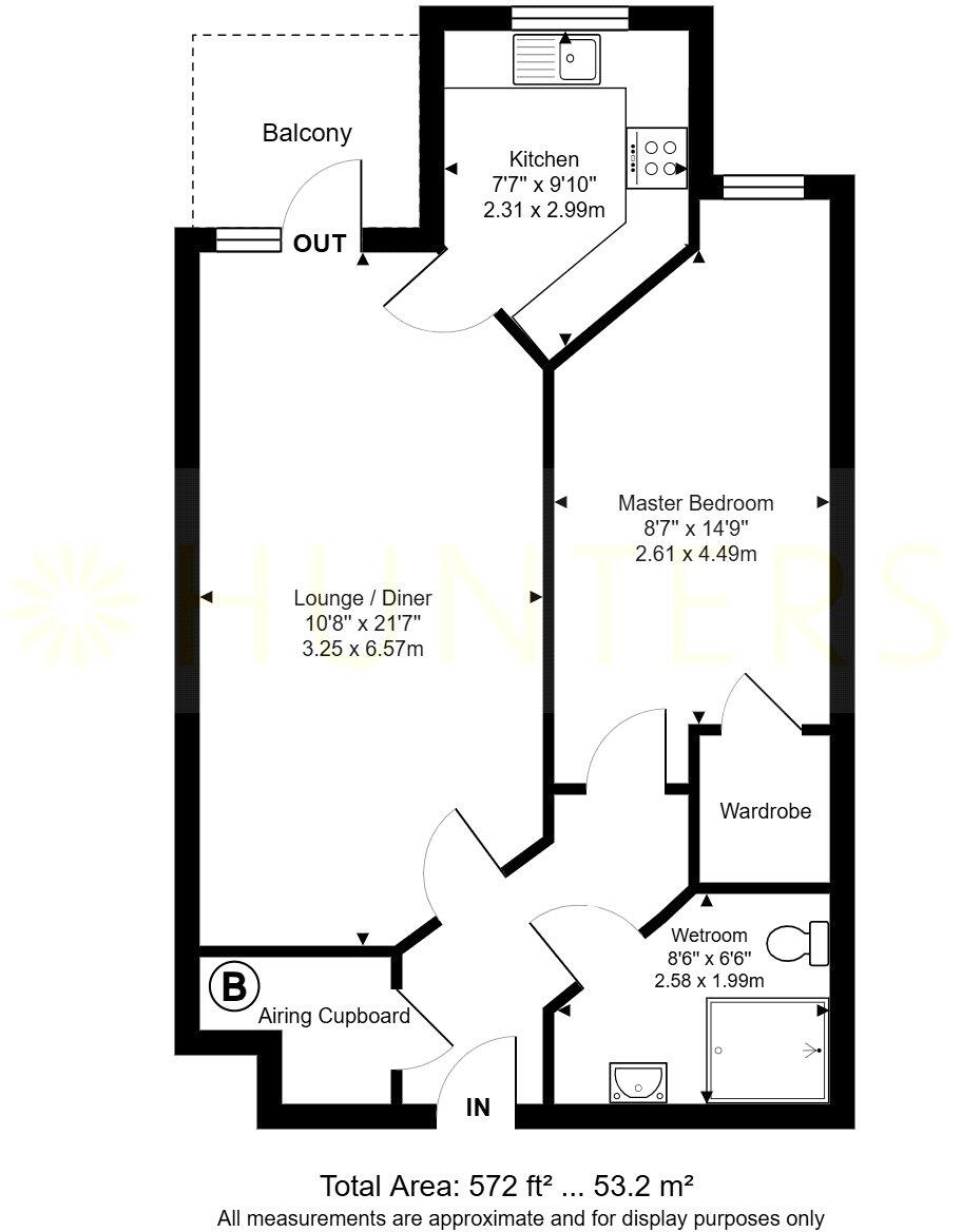
A purpose-built retirement apartment in The Brow, Burgess Hill, designed for low-maintenance living and on-site support. The second-floor, one-bedroom flat offers an open-plan living/dining room that opens onto a private balcony, a modern fitted kitchen with integrated appliances, and a wet-room style shower. Underfloor heating and a spacious walk-in wardrobe add everyday comfort.
Corbett Court is a managed development with 24-hour staff, communal lounge and restaurant, landscaped gardens, scooter charging and off-street parking. Residents receive one hour of domestic assistance per week and can book a guest suite for visitors — features that suit downsizers seeking practical, supported living without the hassles of a house.
Practical considerations: the property is leasehold with associated service charges and on-site management; prospective buyers should confirm lease length and running costs. The apartment is modest in size (approximately 572 sq ft) with limited private outside space — the balcony only — and the wider area records higher crime levels, so check security arrangements and personal needs carefully. Overall, it’s a well-maintained, contemporary retirement flat offering convenience and support for those wanting to simplify day-to-day living.
1 bedroom apartment for sale in The Brow, Burgess Hill, West Sussex, RH15 — £140,000 • 1 bed • 1 bath • 572 ft²
1 bedroom apartment for sale in Corbett Court, The Brow, Burgess Hill, RH15 — £80,000 • 1 bed • 1 bath • 593 ft²
1 bedroom apartment for sale in The Brow, Burgess Hill, West Sussex, RH15 9DD, RH15 — £255,000 • 1 bed • 1 bath • 678 ft²
1 bedroom apartment for sale in Corbett Court, The Brow, Burgess Hill, RH15 — £165,000 • 1 bed • 1 bath • 603 ft²
1 bedroom apartment for sale in Corbett Court, The Brow, Burgess Hill, RH15 — £165,000 • 1 bed • 1 bath • 608 ft²
1 bedroom apartment for sale in Corbett Court, The Brow, Burgess Hill, RH15 9DD, RH15 — £250,000 • 1 bed • 1 bath • 657 ft²










































































