NR19 2JT - 4 bed highspec rural family home in Mid Norfolk, NR19 2JT

View on Property Piper

4 bedroom detached house for sale in Linnet Loke, Crown Lane, Little Fransham, Dereham, NR19

Summary - Linnet Loke, Crown Lane, Little Fransham, Dereham, NR19 NR19 2JT

4 bed 2 bath Detached

Spacious four-bedroom new build on a large plot with field views and high-end finishes..
Generous 0.25–0.30 acre plot with open field views
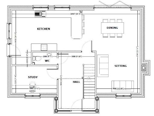
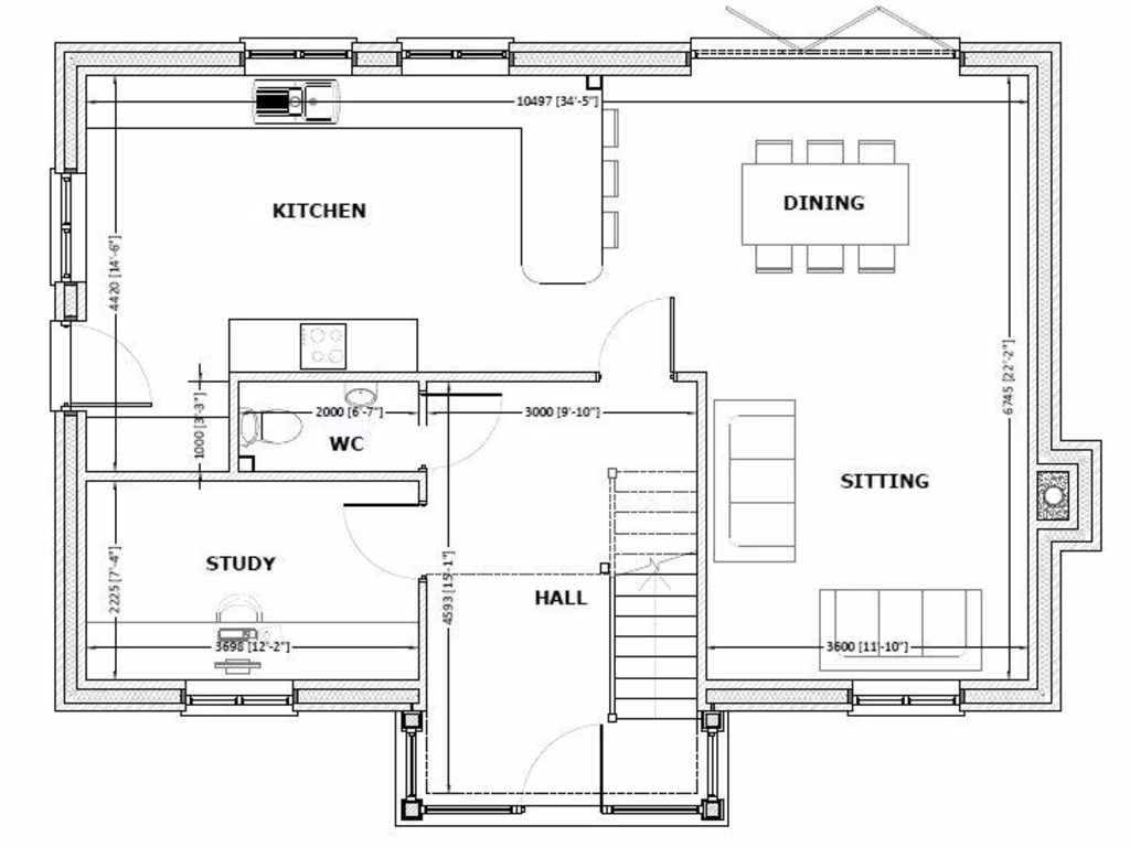
Open-plan kitchen/dining/living with large bi-fold doors
Double garage, private driveway and integrated EV charging
Air source heat pump and underfloor heating to ground floor
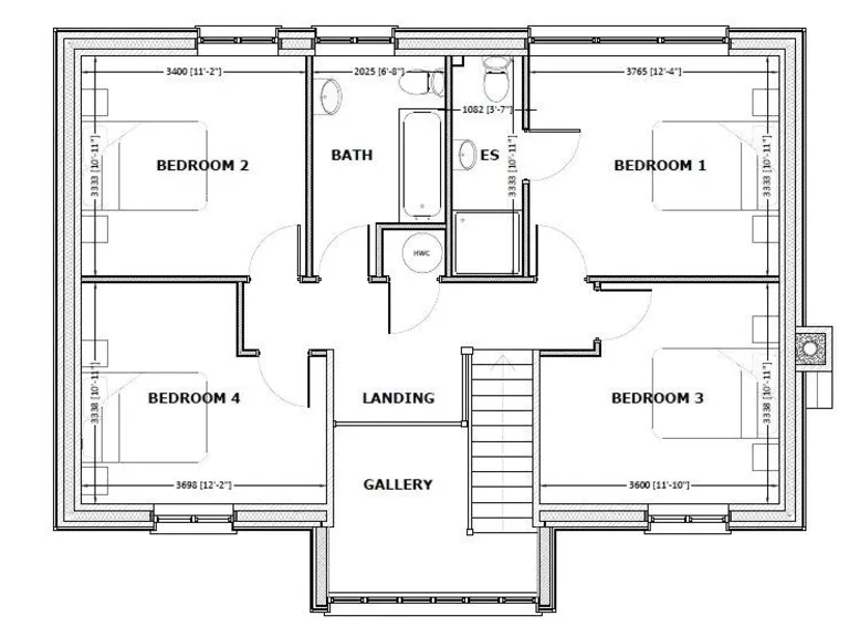
High-spec finishes: quartz worktops, Porcelanosa tiles, oak staircase
Remote hamlet location; limited local amenities on-site
Average broadband speeds may affect home-working connectivity
EPC TBC and council tax band unknown — consider running costs
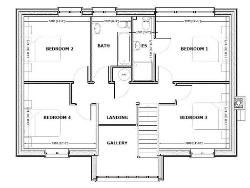
Plot 4 at Linnet Loke is a newly built four-bedroom detached house set on a generous 0.25–0.30 acre plot with uninterrupted field views to front and rear. The home centres on a bright, open-plan kitchen/dining/living space with large bi-fold doors and an elegant sitting room, designed for modern family living and entertaining. High-end finishes include quartz worktops, Porcelanosa tiling, a cantilevered oak staircase and underfloor heating on the ground floor.

Practical features include a double garage with electric roller door and integrated EV charging, air source heat pump heating, CAT6 cabling and smart thermostat controls. The property is finished to a high specification throughout and sits in a quiet hamlet with convenient road links to Dereham and Norwich—suitable for buyers wanting rural peace without giving up commuter access.

Buyers should note material positives and a few practical limitations: the development is in a remote rural community with average broadband speeds and an area classed as deprived. The EPC is TBC and council tax banding is currently unknown. These factors may affect running costs and connectivity for home working.

Overall, this is a high-spec new build on a large plot aimed at families or buyers seeking spacious rural living with modern energy-efficient systems and significant curb appeal. Viewing at the advertised open day is recommended to appreciate the plot size and finish.

Property Details

Image Descriptions

Textual Property Features

Target Audience

AI Tags

Detected Visual Features

Nearby Schools

Nearest Bars And Restaurants

,,,,}

Nearest General Shops

,,}

Nearest Grocery shops

,,}

Nearest Supermarkets

,,}

Nearest Religious buildings

,,}

Nearest Medical buildings

,,,}

Nearest Leisure Facilities

,,,,}

Nearest Tourist attractions

,,}

Nearest Train stations

,,,,}

Nearest Bus stations and stops

,,,,}

Nearest Hotels

,,}

Tags

Local Market Stats

Similar Properties

Meta

High Res Images

Compatible Images

Low res Images

Thumbnails

Raw Images