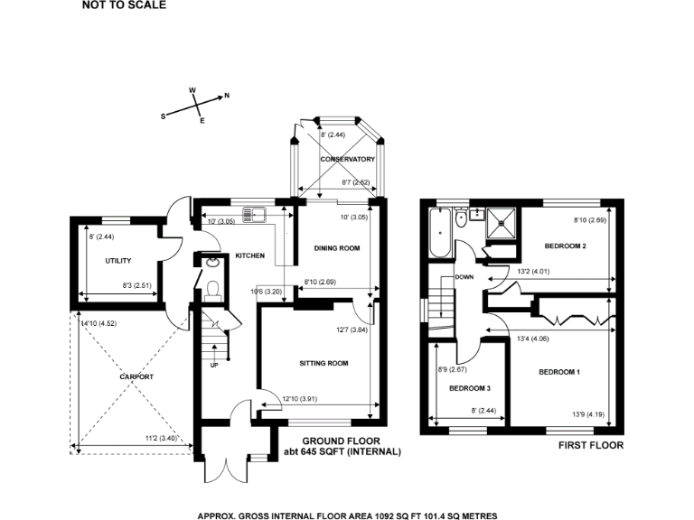
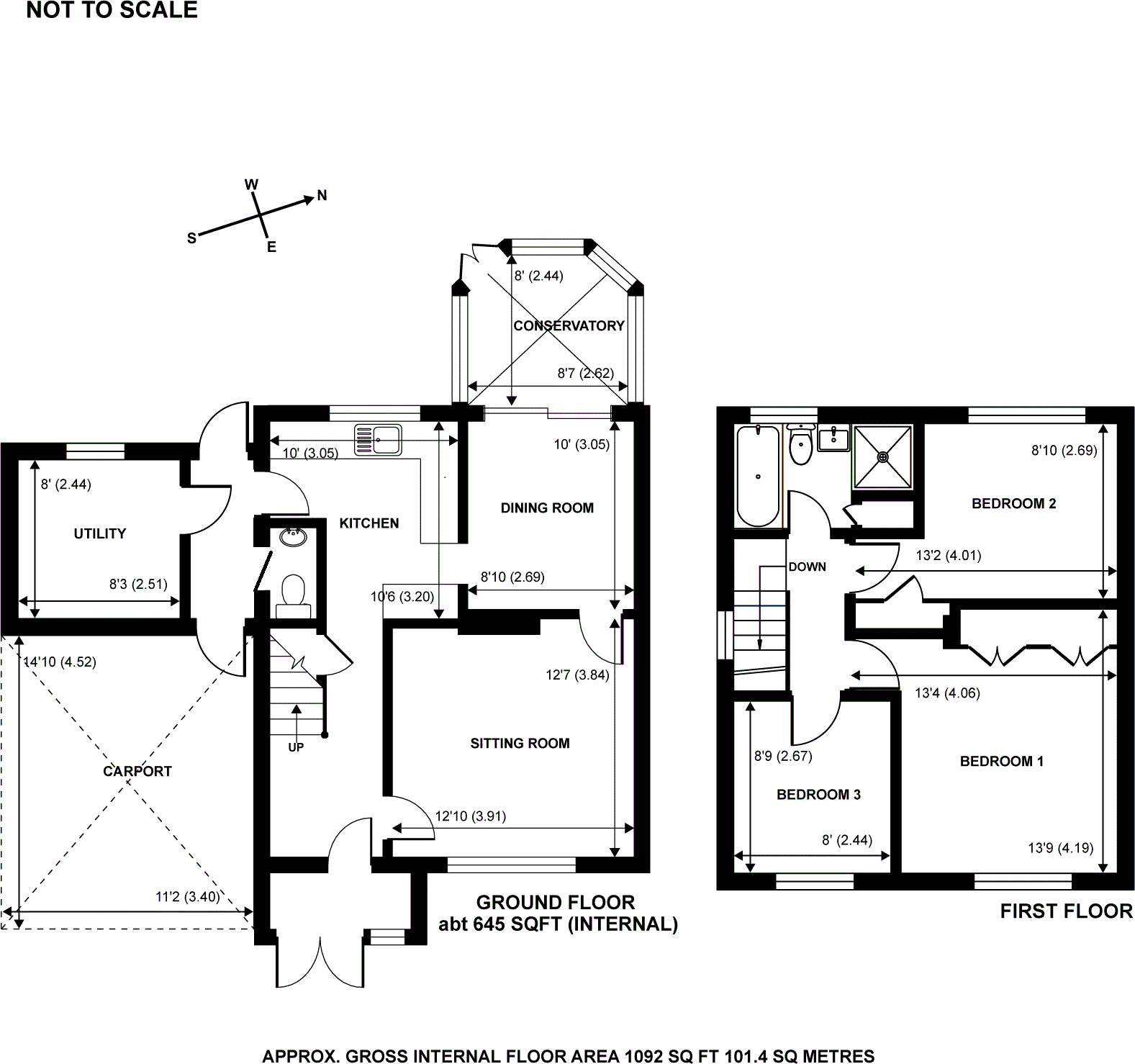
**Standout Features:**
- Three-bedroom semi-detached family house
- Good condition with a newly refurbished bathroom
- Planning permission granted for a side and rear extension
- Off-street parking for three to four vehicles
- Private, secluded west-facing garden
- Conveniently located near Cranmere Primary School and Esher High Street
This well-maintained semi-detached family home in Esher offers a fantastic blend of space, privacy, and future potential. Spanning 1,092 square feet, it features three generous bedrooms, a tastefully upgraded bathroom, and a cozy conservatory that overlooks a tranquil west-facing garden—perfect for family gatherings or simply unwinding in the sun.
Set on a double-width plot, this property comes complete with off-street parking and has planning permission in place, giving you the unique opportunity to expand and customize your living space to suit your family's needs. Enjoy the peace of mind of being located just moments from Cranmere Primary School and within walking distance to vibrant Esher High Street, providing easy access to shops, dining, and transportation.
Although the area has a crime rate above average, the comfort and potential of this home, along with the ability to extend, make it an attractive choice for families eager to create their perfect sanctuary in a thriving community. Don’t miss out on the chance to secure this property, as opportunities like this rarely stay on the market for long!
3 bedroom terraced house for sale in Farm Road, Esher, KT10 — £550,000 • 3 bed • 2 bath • 1132 ft²
4 bedroom semi-detached house for sale in Blair Avenue, Esher, Surrey, KT10 — £635,000 • 4 bed • 2 bath • 1306 ft²
3 bedroom terraced house for sale in Lower Green Road, Esher, Surrey, KT10 — £600,000 • 3 bed • 2 bath • 1000 ft²
5 bedroom semi-detached house for sale in Lower Green Road, Esher, KT10 — £1,395,000 • 5 bed • 3 bath • 2300 ft²
2 bedroom semi-detached house for sale in Lower Green Road, Esher, KT10 — £625,000 • 2 bed • 1 bath • 1022 ft²
2 bedroom semi-detached house for sale in Farm Road, Esher, Surrey, KT10 — £500,000 • 2 bed • 1 bath • 722 ft²














































