Newly renovated 2-bed end-terrace with garage, large garden and breathtaking Suffolk views..
Chain free, newly renovated two-bedroom house
Spectacular elevated views over Suffolk farmland
Open-plan kitchen/living with modern décor and blinds
Two contemporary bathrooms; air-conditioning throughout
Large private plot with landscaped garden, garage, store
Built/updated 2021; efficient air-source heat pump heating
Runs on electricity only; tariff unspecified
Rural location — average mobile signal, car recommended
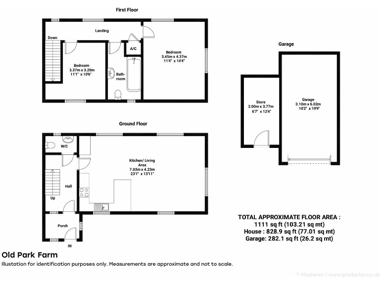
A bright, renovated two-bedroom end-of-terrace set on a hill with long, unbroken views across Suffolk farmland. The house offers open-plan living with modern finishes, two bathrooms, air-conditioning and efficient air-source heat pump heating — a low-maintenance home for someone seeking countryside calm.
Internally the layout is thoughtful: open-plan kitchen/living downstairs with a bathroom and useful under-stairs storage, and two bedrooms with a second bathroom on the first floor. At about 1,111 sq ft (103 sq m) the accommodation feels generous for a two-bed, and large windows bring the exterior landscape into every room.
Outside the sizable private plot has a landscaped lawn, a garage and a separate store room. The property is chain free and newly refurbished (constructed/updated 2021), making it ready to move into. Broadband is fast and crime is low, suited to remote working or quieter retirement living.
Note the location is rural: mobile signal is average and local services are limited, so regular travel by car is likely. The home runs wholly on electricity (air-source heat pump plus electric supply), and tariff details are unspecified. Those who value countryside seclusion and spectacular views will appreciate this property; buyers wanting immediate town-centre convenience should allow for a short drive to nearby towns.
2 bedroom terraced house for sale in Letheringham, Woodbridge, Suffolk, IP13 — £239,000 • 2 bed • 2 bath • 1100 ft²
1 bedroom end of terrace house for sale in Letheringham, Woodbridge, Suffolk, IP13 — £205,000 • 1 bed • 2 bath • 1026 ft²
2 bedroom detached house for sale in Letheringham, Woodbridge, Suffolk, IP13 — £300,000 • 2 bed • 2 bath • 847 ft²
4 bedroom detached house for sale in Cretingham, IP13 — £950,000 • 4 bed • 3 bath • 3582 ft²
3 bedroom semi-detached house for sale in Bedfield, IP13 — £395,000 • 3 bed • 2 bath • 1589 ft²
3 bedroom detached bungalow for sale in Seckford Hall Road, Woodbridge, IP13 — £950,000 • 3 bed • 3 bath • 2607 ft²


















































































