### Standout Features:
- Tudor Revival semi-detached home built in the 1920s
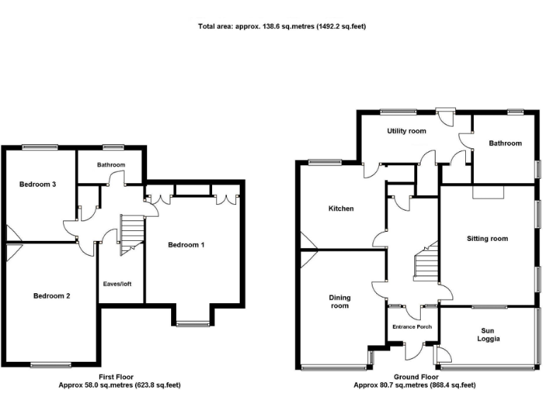
- Spacious accommodation: 3 bedrooms, 3 reception rooms, 2 bathrooms
- Retains original features: herringbone parquet flooring, leaded light windows
- Generous plot size (approximately 100' x 70') with large garden
- Ample off-street parking and a garage
- Family-friendly layout ideal for entertaining
- Located in a low-crime, desirable area
### Summary:
Discover a charming Tudor Revival semi-detached home nestled in one of Selsey's most sought-after private roads. This characterful property spans over 1,492 square feet and retains many original features, offering a unique blend of history and comfort. Ideal for families, it includes three well-proportioned bedrooms, three versatile reception rooms, and two bathrooms, providing ample living space for entertaining and relaxing.
The expansive garden, coupled with generous off-street parking, presents excellent opportunities for outdoor living and potential future extensions (subject to planning permission). While the garage may require attention, the property itself is structurally sound, featuring modern amenities such as double glazing and fast broadband.
Conveniently located near good schools and local amenities, this home combines a peaceful retreat with vibrant community living. Early viewing is highly recommended to appreciate the unique character and potential of this property, which is well-positioned for those seeking a family-oriented, spacious home with the charm of a bygone era. Don't miss out on this rare opportunity!















































































