Renovated three-bed cottage with gated parking and large patio in Upwood.
Extensively refurbished three-bedroom semi-detached cottage
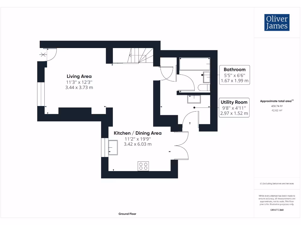
Set on a corner plot in the picturesque High Street of Upwood, this extensively refurbished three-bedroom semi-detached cottage balances period charm with contemporary fittings. The open-plan living space leads into a well-appointed kitchen with integrated appliances, while a separate utility room and two newly fitted shower rooms add family-friendly practicality.
Outside, gated off-street parking and a newly landscaped garden with a large patio provide an attractive low-maintenance outdoor space for entertaining or children to play. The property is offered freehold and chain-free, ready for a quick move or immediate rental occupancy.
Practical details are strong: mains gas central heating with a boiler and radiators, double glazing installed post-2002, fast broadband, excellent mobile signal, and no flood risk. The EPC is rated C, but the original solid brick walls (pre-1900 construction) are assumed to lack modern cavity insulation, so further insulation work could improve long-term energy performance.
Local amenities and schooling are a short walk away, making this a convenient village base for families. The house’s recent renovation reduces immediate upkeep, though buyers wanting maximum thermal efficiency should budget for potential insulation improvements in future.
2 bedroom semi-detached house for sale in High Street, Upwood, Ramsey, Huntingdon, Cambridgeshire, PE26 2QE, PE26 — £210,000 • 2 bed • 1 bath • 707 ft²
2 bedroom semi-detached bungalow for sale in Ailwine Road, Upwood, Cambridgeshire., PE26 — £250,000 • 2 bed • 1 bath • 570 ft²
3 bedroom semi-detached house for sale in Ailwine Road, Ramsey, Huntingdon, PE26 — £315,000 • 3 bed • 1 bath • 699 ft²
3 bedroom detached house for sale in High Street, Upwood, PE26 — £500,000 • 3 bed • 2 bath • 1474 ft²
4 bedroom semi-detached house for sale in Lincoln Road, Upwood, Ramsey, Huntingdon, PE26 — £375,000 • 4 bed • 2 bath • 1659 ft²
2 bedroom semi-detached house for sale in Oaklands Avenue, Wistow, Huntingdon, PE28 — £250,000 • 2 bed • 2 bath • 596 ft²






























































































































































































