Large period family home with annexe potential and private courtyard garden..
Double-fronted Victorian semi with high ceilings and bay windows
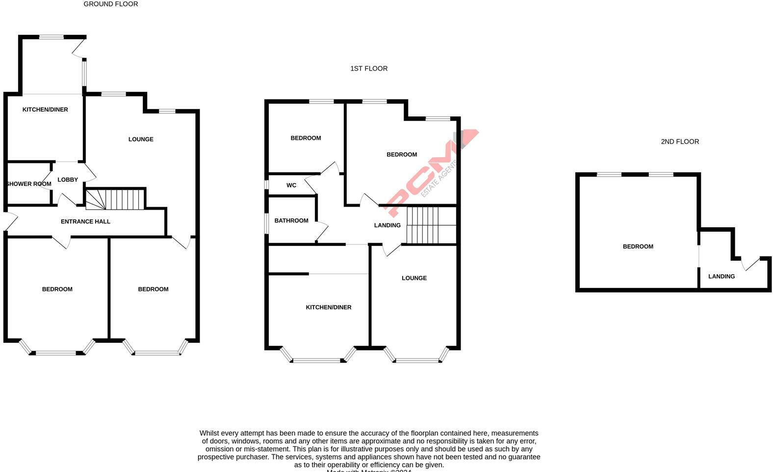
Flexible ground-floor annexe: lounge, kitchen, bedroom, shower room
Five/six bedrooms across three floors; large second-floor master
Private, secluded courtyard garden; small plot, low-maintenance
Single glazing and likely uninsulated solid walls needing upgrades
Located in popular West Hill; walking distance to town and seafront
Area noted as very deprived with very high local crime levels
Freehold, Council Tax Band D; total approx 2,110 sq ft
A double-fronted Victorian semi-detached house on West Hill offering generous, flexible accommodation over three floors. The layout already allows separate annexe accommodation on the ground floor (lounge, kitchen-breakfast, bedroom and shower room), making the property realistic for a household seeking home-and-income potential or multi-generational living.
Period features — high ceilings, bay windows, cornicing and original fireplaces — give the house character and curb appeal. The large second-floor master bedroom and several bay-fronted rooms enjoy partial sea views from the front aspect. A private, secluded courtyard garden provides an outdoor entertaining space that is easy to maintain.
Important practical points: the property retains single glazing and solid brick walls assumed to lack insulation, so buyers should allow for energy-efficiency upgrades. It sits in an urban, high-crime and very deprived area; purchasers should consider security measures and the neighbourhood context. Council Tax Band D and freehold tenure are confirmed.
This home will suit a large family who value period character and flexible layouts, or an investor looking for an owner-occupier with annexe income. The house is habitable but will benefit from targeted refurbishment to improve thermal performance and modern fittings, unlocking greater comfort or rental returns.
4 bedroom semi-detached house for sale in Wellington Road, Hastings, TN34 — £595,000 • 4 bed • 2 bath • 2084 ft²
7 bedroom semi-detached house for sale in Braybrooke Road, Hastings, TN34 — £375,000 • 7 bed • 2 bath • 1707 ft²
5 bedroom terraced house for sale in Wellington Road, Hastings, TN34 — £650,000 • 5 bed • 3 bath • 2541 ft²
4 bedroom terraced house for sale in St. Andrews Square, Hastings, TN34 — £350,000 • 4 bed • 1 bath • 1335 ft²
6 bedroom semi-detached house for sale in Priory Road, Hastings, TN34 — £850,000 • 6 bed • 3 bath • 2145 ft²
3 bedroom terraced house for sale in Manor Road, Hastings, TN34 — £325,000 • 3 bed • 1 bath • 980 ft²






























































































































