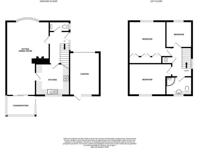
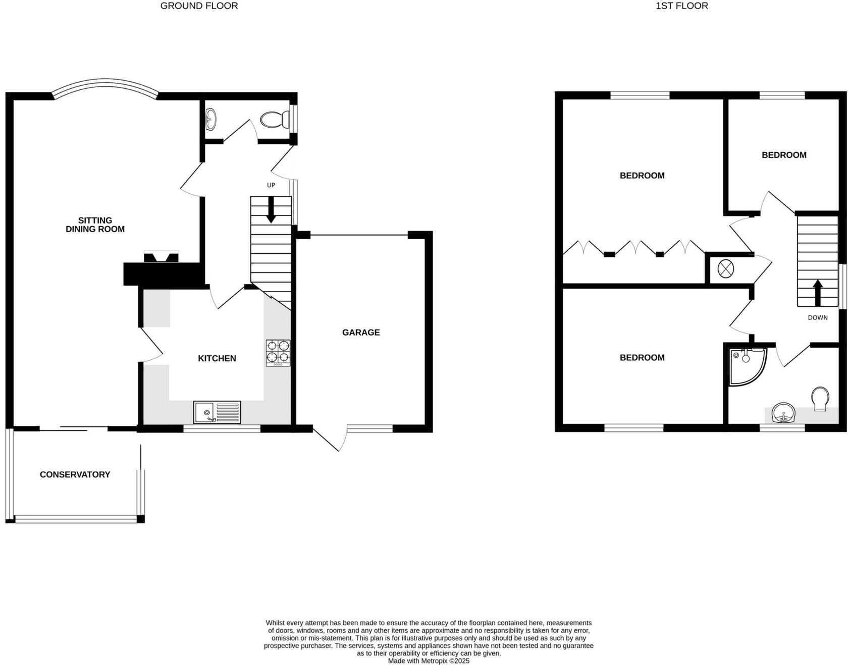
Cul‑de‑sac family house with garage and private gardens.
Three double bedrooms across two storeys
Set on a popular cul‑de‑sac in Walmer, this three‑bedroom detached home offers straightforward family living with good parking and private gardens. The ground floor features a long sitting/dining room, separate WC, kitchen and conservatory, while the first floor provides three double bedrooms and a shower room. A single garage with electric roller door and driveway add practical convenience.
The property retains 1970s character and is double glazed with gas central heating, but it would benefit from updating throughout — the living spaces are a bright blank canvas for modernisation. There is immediate potential to enhance layouts, finishes and energy performance to add value.
Practical notes: the sale is freehold with no onward chain complications, EPC rating is awaited, broadband speeds in the area are very slow and council tax is above average. Mobile signal is excellent. Viewings will show the plot size, room proportions and the scope for improvement more clearly.
3 bedroom house for sale in St Margarets Drive, Walmer, CT14 — £335,000 • 3 bed • 2 bath • 753 ft²
3 bedroom semi-detached house for sale in Havelock Road, Walmer, CT14 — £279,950 • 3 bed • 1 bath • 1066 ft²
4 bedroom detached house for sale in Dover Road, Walmer, CT14 — £465,000 • 4 bed • 2 bath • 1015 ft²
4 bedroom detached house for sale in Dover Road, Walmer, CT14 — £775,000 • 4 bed • 4 bath • 2002 ft²
3 bedroom bungalow for sale in The Shrubbery, Walmer, Deal, Kent, CT14 — £425,000 • 3 bed • 1 bath • 941 ft²
4 bedroom detached house for sale in Salisbury Road, Walmer, Deal, CT14 — £595,000 • 4 bed • 1 bath • 1375 ft²


























































