Recently updated two-bedroom home close to shops, schools and major road links.
- Newly refitted kitchen with integrated appliances
- New combination boiler and refitted shower room
- Two bedrooms with fitted wardrobes
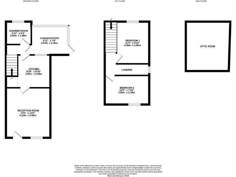
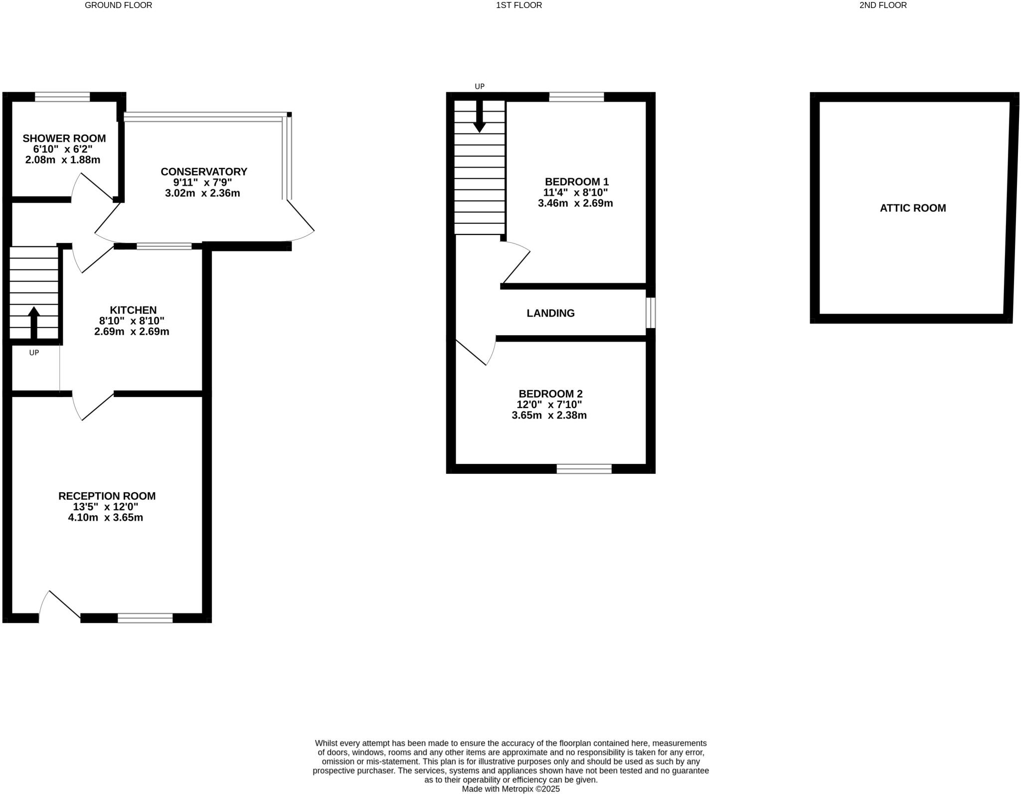
- Boarded attic room accessed by drop-down ladder
- Private, sunny low-maintenance rear garden with outbuilding
- Small overall footprint (551 sq ft) and small garden plot
- Solid brick walls likely without cavity insulation
- Located in a deprived area; average crime levels
A smartly updated two-bedroom semi-detached home in Leabrooks, offered freehold and ready to move into. The current owner has fitted a new combi boiler, refitted kitchen and shower room, and installed built-in wardrobes to both bedrooms — practical improvements that suit first-time buyers or those downsizing.
Living space is compact (about 551 sq ft) but well laid out: lounge, recently refitted kitchen with integrated appliances, conservatory giving garden access, and a boarded attic room with Velux window for occasional use or storage. The private, low-maintenance rear garden enjoys sunshine and includes a summerhouse and outbuilding for extra storage.
Practical considerations are clear: the house is an older solid-brick build (c.1900–1929) likely without wall insulation and sits in a more deprived local area with average crime levels. Plot and room sizes are small, and the attic is accessed via a loft hatch and drop-down ladder — not a full-height converted room. EPC band C and good road/bus links (A38, M1) add to the property’s everyday appeal.
This is a straightforward, recently renovated period home for buyers seeking affordability and convenience near shops, schools and transport. It offers immediate comfort with scope for targeted improvement (insulation, aesthetic upgrades) to increase long-term value.
2 bedroom end of terrace house for sale in Swanwick Road, Leabrooks, Alfreton, DE55 — £180,000 • 2 bed • 1 bath • 1088 ft²
2 bedroom terraced house for sale in Ilkeston Road, Heanor, DE75 — £147,950 • 2 bed • 1 bath • 682 ft²
2 bedroom semi-detached house for sale in Alfreton Road, Westhouses, Alfreton, DE55 — £170,000 • 2 bed • 1 bath • 815 ft²
2 bedroom semi-detached house for sale in The Common, South Normanton, Derbyshire, DE55 — £145,000 • 2 bed • 1 bath • 699 ft²
2 bedroom terraced house for sale in Charles Street, Leabrooks, DE55 — £115,000 • 2 bed • 1 bath • 676 ft²
3 bedroom semi-detached house for sale in Cressy Road, Alfreton, Derbyshire, DE55 — £220,000 • 3 bed • 1 bath • 1049 ft²






































































