Compact, low-maintenance home with two parking spaces and fast broadband.
No onward chain and NHBC warranty included
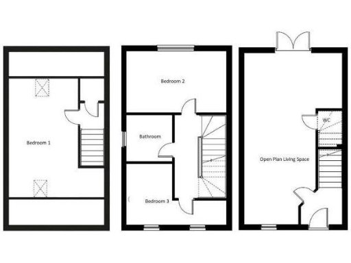
This recently built three-bedroom townhouse (2017) offers a low-hassle entry to homeownership with NHBC warranty and no onward chain. The open-plan ground floor combines kitchen, dining and living space with French doors to a modest rear garden — a practical layout for everyday living and socialising. Two allocated parking spaces are unusually generous for a property of this size.
The upstairs layout includes two mid-size bedrooms, a family bathroom, and a larger top-floor master bedroom with loft access and rooflights that lend extra daylight. The home is gas-heated with a B-rated EPC and fast broadband, making it suitable for remote working and commuting (Cambridge ~17 miles, Stansted ~30 minutes).
Buyers should note the compact overall footprint and modest plot typical of modern townhouses: room sizes are average and there is only one main bathroom plus a ground-floor WC, which may require planning for busy households. A small annual service charge (£102.69) contributes to communal upkeep.
Well suited to first-time buyers or investors seeking a low-maintenance, modern home in a growing commuter market, this freehold property presents sensible short-term value and straightforward long-term ownership. Any appliances and services should be independently checked prior to purchase.
3 bedroom terraced house for sale in Shipp Close, Haverhill, Suffolk, CB9 — £245,000 • 3 bed • 1 bath • 753 ft²
3 bedroom semi-detached house for sale in Beavis Drive, Haverhill, CB9 — £300,000 • 3 bed • 2 bath • 919 ft²
3 bedroom town house for sale in Webb Close, Haverhill, CB9 — £300,000 • 3 bed • 2 bath • 2915 ft²
3 bedroom end of terrace house for sale in Ruffles Road, Haverhill, CB9 — £280,000 • 3 bed • 1 bath • 716 ft²
3 bedroom town house for sale in Brickfields Drive, Haverhill, Suffolk, CB9 — £300,000 • 3 bed • 2 bath • 1098 ft²
3 bedroom semi-detached house for sale in Rogers Road, Haverhill, CB9 — £294,000 • 3 bed • 1 bath • 779 ft²














































